東京都新宿区南榎町(牛込柳町駅)の中古マンション・新築マンション・分譲マンション:物件詳細
交通 所在地 |
駅徒歩 |
価格 |
構造 階建/階 |
間取り 専有面積 |
物件種目 築年月 |
|
都営大江戸線/牛込柳町
東京都新宿区南榎町
|
8分
|
12,480万円
|
RC
地上3階地下1階建 / 1階
|
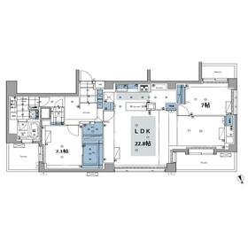
2LDK
101.93m²
|
中古マンション
1990年12月(築35年3ヶ月)
|
|
角部屋、管理人巡回
|
|
間取図
|
その他
|
その他の画像
|
| 交通 | 都営大江戸線 牛込柳町駅 徒歩8分 |
|---|
| その他の交通 | 東京メトロ東西線 神楽坂駅 徒歩11分 東京メトロ東西線 早稲田駅 徒歩13分 |
| 所在地 |
東京都新宿区南榎町
|
| 物件種目 |
中古マンション |
| 価格 |
12,480万円 |
平米単価 |
122.44万円 |
| 管理費等 |
32,400円 |
修繕積立金 |
50,680円 |
| 借地期間・地代(月額) |
- |
権利金 |
- |
| 敷金または保証金 |
- / - |
維持費等 |
- |
| その他一時金 |
なし |
|
|
| 間取り |
2LDK |
専有面積 |
101.93m²(壁芯) |
| 階建 / 階 |
地上3階地下1階建 / 1階 |
バルコニー |
3.12m² |
| 築年月 |
1990年12月(築35年3ヶ月)
|
建物構造 |
RC |
| 駐車場 |
無 |
総戸数 |
5戸 |
| 駐輪場 |
- |
バイク置き場 |
- |
| ペット |
-
|
|
|
| 土地権利 |
所有権 |
敷地面積 |
- |
| 管理形態/管理員の勤務形態 |
全部委託/巡回 |
国土法届出 |
- |
| アピールポイント |
■牛込柳町駅徒歩8分、複数路線・駅利用可、生活にも便利な高立地
■新規内装フルリノベーション済+新規エアコン付き
■外出しやすい1階部分、角部屋
■約22・8帖のLDK
■全室7帖以上
■南向きバルコニー+北向き・東向きの2面テラス
■専有面積約101・93平米
■小学校、中学校、保育園、スーパ、コンビニ、ドラッグストア徒歩10分圏内
◎ 現地集合・現地解散OK・お忙しい方もお気軽にご見学いただけます。
◎ 購入で失敗しないためのポイントは、
YouTubeチャンネル[スガ社長の不動産取引成功の極意]で解説中(※売却価格・将来性を重視した解説が好評です)
|
| 建物名・部屋番号 |
ロイヤルガーデン南榎 |
| リフォーム履歴 |
■その他:2025年11月 キッチン、浴室、トイレ、クロス張替え、床、洗面所、給湯器、建具 ※実施年月は最も古い履歴を表示 |
| リノベーション履歴 |
2025年11月 給湯器、キッチン、バス、トイレ、洗面台、クロス、床、他 ※実施年月は最も古い履歴を表示 |
| 瑕疵保証 |
- |
| 瑕疵保険 |
- |
| 評価・証明書 |
- |
| 備考 |
主要採光面:北向き
■牛込柳町駅徒歩8分
■新規内装済
■1階部分、角部屋
■専有面積約101・93平米
◎ 現地集合・現地解散OK・お忙しい方もお気軽にご見学いただけます。
◎ 購入で失敗しないためのポイントは、
YouTubeチャンネル[スガ社長の不動産取引成功の極意]で解説中(※売却価格・将来性を重視した解説が好評です)
|
| エネルギー消費性能 |
- |
| 断熱性能 |
- |
| 目安光熱費 |
- |
| バス・トイレ |
- |
| キッチン |
- |
| 設備・サービス |
ウォークインクローゼット、床暖房、室内洗濯機置場、トランクルーム、給湯、エアコン、テラス |
| その他 |
- |
| 条件等 |
- |
現況 |
空家 |
| 引渡可能時期 |
相談 |
物件番号 |
1101035714 |
| 情報公開日 |
2026年1月27日 |
次回更新予定日 |
2026年2月23日 |
| ケータイ用バーコード |
- スマートフォンでこの物件を見る
- スマートフォンからもこの物件をご覧になれます。
|
※「-」と表示されている項目については、情報提供会社にご確認ください。
ここから簡単にお問い合わせをすることができます。
(SSLでの暗号化での送信を希望されるお客さまは
こちら
よりお問い合わせください)
お問い合わせを行う前に
「個人情報の取り扱いについて」を必ずお読みください。
「個人情報の取り扱いについて」に同意いただいた場合は「上記にご同意の上 確認画面へ進む」のボタンをクリックしてください。
個人情報の取り扱いについて
皆さまが送付された個人情報はアットホーム(株)のサーバを経由し、お問い合わせ先の不動産会社にメールまたはFAXにて転送されるためアットホーム(株)にも保管されます。アットホーム(株)で保管された個人情報の取り扱いについては、【こちら】をご覧ください。
また、本画面でご記入いただいた個人情報は、お問い合わせ先の不動産会社でも保管します。 お問い合わせ先の不動産会社が保管する個人情報の取り扱いについては、不動産会社に直接お問い合わせください。
東京都知事免許(8)第63809号 |
|---|
- 交通:
- JR山手線/日暮里駅
- 東京都荒川区西日暮里2丁目39-7 GSハイム日暮里101
- TEL:
- 03-3803-5377
- FAX:
- 03-3803-5088
- 所属団体:
- (公社)東京都宅地建物取引業協会会員(公社)首都圏不動産公正取引協議会加盟
取引態様:媒介  - 99000391
|
- スマートフォンで
この不動産会社を見る

|
- 提携サイト等より掲載されている物件情報につきましては、不動産会社詳細情報にリンクされていないものがあります。
- 物件に関するお問合せは、物件詳細ページの「情報提供会社」に表示されている不動産会社へ直接お願いいたします。
- 間取図は、現況を優先させていただきます。
- 映像は物件の一部を撮影したものです。物件の契約にあたっての最終判断はご自身の判断に基づいて行ってください。
- 仲介手数料について

アットホームは物件情報の適正化に努めております。
内容に誤りがある場合にはこちらへご連絡ください。