北海道札幌市中央区大通西22丁目(円山公園駅)の中古マンション・新築マンション・分譲マンション:物件詳細
交通 所在地 |
駅徒歩 |
価格 |
構造 階建/階 |
間取り 専有面積 |
物件種目 築年月 |
|
札幌市東西線/円山公園
北海道札幌市中央区大通西22丁目
|
6分
|
430万円
|
RC
地上7階地下1階建 / 2階
|
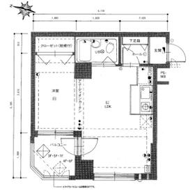
1DK
30.30m²
|
中古マンション
1990年9月(築35年7ヶ月)
|
|
管理人日勤、IT重説対応物件
|
|
間取図
|
外観
|
<
その他の画像
>
|
| 交通 | 札幌市東西線 円山公園駅 徒歩6分 |
|---|
| その他の交通 | 札幌市電 西15丁目駅 徒歩16分 |
| 所在地 |
北海道札幌市中央区大通西22丁目
|
| 物件種目 |
中古マンション |
| 価格 |
430万円 |
平米単価 |
14.20万円 |
| 管理費等 |
6,150円 |
修繕積立金 |
7,530円 |
| 借地期間・地代(月額) |
- |
権利金 |
- |
| 敷金または保証金 |
- / - |
維持費等 |
- |
| その他一時金 |
なし |
|
|
| 間取り |
1DK |
専有面積 |
30.30m²(内法) |
| 階建 / 階 |
地上7階地下1階建 / 2階 |
バルコニー |
- |
| 築年月 |
1990年9月(築35年7ヶ月)
|
建物構造 |
RC |
| 駐車場 |
空無 |
総戸数 |
44戸 |
| 駐輪場 |
- |
バイク置き場 |
- |
| ペット |
-
|
|
|
| 土地権利 |
所有権 |
敷地面積 |
- |
| 管理形態/管理員の勤務形態 |
全部委託/日勤 |
国土法届出 |
- |
| アピールポイント |
・人気エリア円山公園駅徒歩6分
・単身向け分譲マンション
・現行賃料3.0万円/月、年間36万円 |
| 建物名・部屋番号 |
セザール第二円山公園 |
| リフォーム履歴 |
- |
| リノベーション履歴 |
- |
| 瑕疵保証 |
- |
| 瑕疵保険 |
- |
| 評価・証明書 |
- |
| 備考 |
主要採光面:西向き
施工会社:東洋建設
用途地域:近隣商業
IT重説対応物件
|
| エネルギー消費性能 |
- |
| 断熱性能 |
- |
| 目安光熱費 |
- |
| バス・トイレ |
- |
| キッチン |
- |
| 設備・サービス |
収納スペース、室内洗濯機置場、給湯、都市ガス |
| その他 |
- |
| 条件等 |
- |
現況 |
所有者居住中 |
| 引渡可能時期 |
相談 |
物件番号 |
1102020714 |
| 情報公開日 |
2026年2月26日 |
次回更新予定日 |
2026年3月26日 |
| ケータイ用バーコード |
- スマートフォンでこの物件を見る
- スマートフォンからもこの物件をご覧になれます。
|
※「-」と表示されている項目については、情報提供会社にご確認ください。
| 周辺施設 |
フードセンター円山店 |
| 距離 |
265m |
写真を見る |
| 周辺施設 |
セブンイレブン札幌円山裏参道店 |
| 距離 |
371m |
写真を見る |
| 周辺施設 |
ツルハドラッグ円山店 |
| 距離 |
481m |
写真を見る |
| 周辺施設 |
マルヤマクラス |
| 距離 |
748m |
写真を見る |
| 周辺施設 |
札幌市立円山小学校 |
| 距離 |
516m |
写真を見る |
| 周辺施設 |
札幌市立向陵中学校 |
| 距離 |
1445m |
写真を見る |
| 周辺施設 |
北洋銀行円山公園支店 |
| 距離 |
339m |
写真を見る |
| 周辺施設 |
札幌円山郵便局 |
| 距離 |
463m |
写真を見る |
ここから簡単にお問い合わせをすることができます。
(SSLでの暗号化での送信を希望されるお客さまは
こちら
よりお問い合わせください)
お問い合わせを行う前に
「個人情報の取り扱いについて」を必ずお読みください。
「個人情報の取り扱いについて」に同意いただいた場合は「上記にご同意の上 確認画面へ進む」のボタンをクリックしてください。
個人情報の取り扱いについて
皆さまが送付された個人情報はアットホーム(株)のサーバを経由し、お問い合わせ先の不動産会社にメールまたはFAXにて転送されるためアットホーム(株)にも保管されます。アットホーム(株)で保管された個人情報の取り扱いについては、【こちら】をご覧ください。
また、本画面でご記入いただいた個人情報は、お問い合わせ先の不動産会社でも保管します。 お問い合わせ先の不動産会社が保管する個人情報の取り扱いについては、不動産会社に直接お問い合わせください。
北海道知事免許 石狩(3)第8223号 |
|---|
- 交通:
- 札幌市東西線/宮の沢駅
- 北海道札幌市手稲区西宮の沢四条1丁目11-26
- TEL:
- 011-215-8703
- FAX:
- 011-215-7313
- 所属団体:
- (公社)北海道宅地建物取引業協会会員(一社)北海道不動産公正取引協議会加盟
取引態様:専任媒介  - 99000774
|
- スマートフォンで
この不動産会社を見る

|
- 提携サイト等より掲載されている物件情報につきましては、不動産会社詳細情報にリンクされていないものがあります。
- 物件に関するお問合せは、物件詳細ページの「情報提供会社」に表示されている不動産会社へ直接お願いいたします。
- 間取図は、現況を優先させていただきます。
- 映像は物件の一部を撮影したものです。物件の契約にあたっての最終判断はご自身の判断に基づいて行ってください。
- 仲介手数料について

アットホームは物件情報の適正化に努めております。
内容に誤りがある場合にはこちらへご連絡ください。