兵庫県西宮市枝川町(鳴尾・武庫川女子大前駅)の中古マンション・新築マンション・分譲マンション:物件詳細
交通 所在地 |
駅徒歩 |
価格 |
構造 階建/階 |
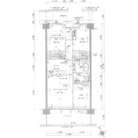
間取り 専有面積 |
物件種目 築年月 |
阪神本線/鳴尾・武庫川女子大前
兵庫県西宮市枝川町
|
21分
|
3,980万円
|
RC
7階建 / 2階
|
3LDK
71.43m²
|
中古マンション
2021年2月(築4年9ヶ月)
|
ペット相談、24時間換気システム、管理人日勤
|
間取図
|
外観
|
その他の画像
|
交通 | 阪神本線 鳴尾・武庫川女子大前駅 徒歩21分 |
---|
その他の交通 | 阪神本線 甲子園駅 徒歩23分 |
所在地 |
兵庫県西宮市枝川町
|
物件種目 |
中古マンション |
価格 |
3,980万円 |
平米単価 |
55.72万円 |
管理費等 |
7,000円 |
修繕積立金 |
12,140円 |
借地期間・地代(月額) |
- |
権利金 |
- |
敷金または保証金 |
- / - |
維持費等 |
ネット使用料:1,540円/月、エリアマネジメント費:500円/月 |
その他一時金 |
なし |
|
|
間取り |
3LDK |
専有面積 |
71.43m²(内法) |
階建 / 階 |
7階建 / 2階 |
バルコニー |
13.80m² |
築年月 |
2021年2月(築4年9ヶ月)
|
建物構造 |
RC |
駐車場 |
空無 |
総戸数 |
172戸 |
駐輪場 |
- |
バイク置き場 |
- |
ペット |
相談 |
|
|
土地権利 |
所有権 |
敷地面積 |
- |
管理形態/管理員の勤務形態 |
全部委託/日勤 |
国土法届出 |
- |
アピールポイント |
総戸数172戸の大規模物件
ペット飼育可(規約あり)
当社について
「常にお客様の目線で分かりやすく、透明性の高い不動産取引を行う」をコンセプトに
不動産のことなら、どのようなことでもお気軽にご相談ください。
店舗には駐車場・キッズスペースもございます。
小さなお子様がいらっしゃるご家庭もお気軽にご来店下さい!
現地待ち合わせや物件最寄り駅までの送迎も可能です。
住宅ローンに強い!多くの銀行の住宅ローンを取り扱っております。
自己資金0円、諸経費もリフォームもお借り入れしたい!
最も安い金利の銀行をご提案させていただきます!
様々なお客様の状況に対して最適な金融機関をご提案させていただきます!
また、過去に審査が通らなかったお客様も、ぜひご相談ください!
|
建物名・部屋番号 |
ルネ西宮甲子園 |
リフォーム履歴 |
- |
リノベーション履歴 |
- |
瑕疵保証 |
- |
瑕疵保険 |
- |
評価・証明書 |
- |
備考 |
主要採光面:南西向き
施工会社:株式会社長谷工コーポレーション
用途地域:1種中高
内覧予約受付中
◆当日ご予約でも当社スタッフが心を込めてご対応させていただきます!
◇お客様のご都合に合わせてご案内させていただきますので、お気軽にお問い合わせください。
◆ご見学だけでも大丈夫です!ご遠慮なくまずは物件をご覧ください♪
◇ご希望条件をお伺いし、他の物件もあわせてご紹介させていただきます♪
【住宅ローンはお任せください】
自己資金0円、諸経費もリフォームもお借り入れしたい!
可能な限り最も安い金利で!ガン・三大疾病保証無料サービス有り!
様々なお客様の状況に対して最適な金融機関をご提案させていただきます!
また、過去に審査が通らなかったお客様も、ぜひご相談ください!
40年50年の長期ローン有り
|
エネルギー消費性能 |
- |
断熱性能 |
- |
目安光熱費 |
- |
バス・トイレ |
- |
キッチン |
浄水器 |
設備・サービス |
床暖房、アルコーブ |
その他 |
- |
条件等 |
- |
現況 |
所有者居住中 |
引渡可能時期 |
相談 |
物件番号 |
1102604403 |
情報公開日 |
2025年4月13日 |
次回更新予定日 |
2025年10月23日 |
ケータイ用バーコード |
- スマートフォンでこの物件を見る
- スマートフォンからもこの物件をご覧になれます。
|
※「-」と表示されている項目については、情報提供会社にご確認ください。
ここから簡単にお問い合わせをすることができます。
(SSLでの暗号化での送信を希望されるお客さまは
こちら
よりお問い合わせください)
お問い合わせを行う前に
「個人情報の取り扱いについて」を必ずお読みください。
「個人情報の取り扱いについて」に同意いただいた場合は「上記にご同意の上 確認画面へ進む」のボタンをクリックしてください。
個人情報の取り扱いについて
皆さまが送付された個人情報はアットホーム(株)のサーバを経由し、お問い合わせ先の不動産会社にメールまたはFAXにて転送されるためアットホーム(株)にも保管されます。アットホーム(株)で保管された個人情報の取り扱いについては、【こちら】をご覧ください。
また、本画面でご記入いただいた個人情報は、お問い合わせ先の不動産会社でも保管します。 お問い合わせ先の不動産会社が保管する個人情報の取り扱いについては、不動産会社に直接お問い合わせください。
兵庫県知事免許(2)第204360号 |
---|
- 交通:
- 阪神本線/甲子園駅
- 兵庫県西宮市甲子園高潮町7-20 アーデン甲子園
- TEL:
- 0798-46-0021
- FAX:
- 0798-46-0121
- 所属団体:
- (一社)兵庫県宅地建物取引業協会会員(公社)近畿地区不動産公正取引協議会加盟
取引態様:媒介  - 99001079
|
- スマートフォンで
この不動産会社を見る

|
- 提携サイト等より掲載されている物件情報につきましては、不動産会社詳細情報にリンクされていないものがあります。
- 物件に関するお問合せは、物件詳細ページの「情報提供会社」に表示されている不動産会社へ直接お願いいたします。
- 間取図は、現況を優先させていただきます。
- 映像は物件の一部を撮影したものです。物件の契約にあたっての最終判断はご自身の判断に基づいて行ってください。
- 仲介手数料について

アットホームは物件情報の適正化に努めております。
内容に誤りがある場合にはこちらへご連絡ください。