大阪府大阪市中央区安土町2丁目(堺筋本町駅)の中古マンション・新築マンション・分譲マンション:物件詳細
交通 所在地 |
駅徒歩 |
価格 |
構造 階建/階 |
間取り 専有面積 |
物件種目 築年月 |
地下鉄中央線/堺筋本町
大阪府大阪市中央区安土町2丁目
|
5分
|
12,980万円
|
RC
48階建 / 13階
|
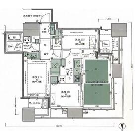
3LDK
66.24m²
|
中古マンション
2021年12月(築3年11ヶ月)
|
ペット相談、フロントサービス、クリーニングサービス、常時ゴミ出し可能、24時間セキュリティー、免震構造、アウトフレーム工法、24時間換気システム、管理人常駐
|
間取図
|
外観
|
その他の画像
|
交通 | 地下鉄中央線 堺筋本町駅 徒歩5分 |
---|
その他の交通 | 地下鉄堺筋線 堺筋本町駅 徒歩5分 地下鉄御堂筋線 本町駅 徒歩8分 |
所在地 |
大阪府大阪市中央区安土町2丁目
|
物件種目 |
中古マンション |
価格 |
12,980万円 |
平米単価 |
195.96万円 |
管理費等 |
17,506円 |
修繕積立金 |
10,180円 |
借地期間・地代(月額) |
- |
権利金 |
- |
敷金または保証金 |
- / - |
維持費等 |
- |
その他一時金 |
なし |
|
|
間取り |
3LDK |
専有面積 |
66.24m²(壁芯) |
階建 / 階 |
48階建 / 13階 |
バルコニー |
8.14m² |
築年月 |
2021年12月(築3年11ヶ月)
|
建物構造 |
RC |
駐車場 |
有 39,000円/月 |
総戸数 |
855戸 |
駐輪場 |
- |
バイク置き場 |
- |
ペット |
相談 |
|
|
土地権利 |
所有権 |
敷地面積 |
- |
管理形態/管理員の勤務形態 |
全部委託/常駐 |
国土法届出 |
- |
建物名・部屋番号 |
シティタワー大阪本町 |
リフォーム履歴 |
- |
リノベーション履歴 |
- |
瑕疵保証 |
- |
瑕疵保険 |
- |
評価・証明書 |
- |
備考 |
主要採光面:北西向き
施工会社:清水建設株式会社
用途地域:商業地域
|
エネルギー消費性能 |
- |
断熱性能 |
- |
目安光熱費 |
- |
バス・トイレ |
ミストサウナ、浴室暖房、浴室乾燥機、オートバス、追焚機能、シャワー付洗面化粧台、温水洗浄便座 |
キッチン |
システムキッチン、食器洗浄乾燥機、ディスポーザー、3口以上コンロ |
設備・サービス |
モニター付オートロック、床暖房、室内洗濯機置場、シューズインクローゼット、クローゼット、オートロック、モニター付インターホン、防犯カメラ、給湯、都市ガス、火災警報器(報知機)、光ファイバー、ケーブルTV、マルチメディアコンセント、複層ガラス |
その他 |
宅配BOX、フィットネス施設、エレベーター2基以上、共用ゲストルーム、エレベーター |
条件等 |
- |
現況 |
空家 |
引渡可能時期 |
相談 |
物件番号 |
1103089103 |
情報公開日 |
2025年10月2日 |
次回更新予定日 |
2025年10月31日 |
ケータイ用バーコード |
- スマートフォンでこの物件を見る
- スマートフォンからもこの物件をご覧になれます。
|
※「-」と表示されている項目については、情報提供会社にご確認ください。
ここから簡単にお問い合わせをすることができます。
(SSLでの暗号化での送信を希望されるお客さまは
こちら
よりお問い合わせください)
お問い合わせを行う前に
「個人情報の取り扱いについて」を必ずお読みください。
「個人情報の取り扱いについて」に同意いただいた場合は「上記にご同意の上 確認画面へ進む」のボタンをクリックしてください。
個人情報の取り扱いについて
皆さまが送付された個人情報はアットホーム(株)のサーバを経由し、お問い合わせ先の不動産会社にメールまたはFAXにて転送されるためアットホーム(株)にも保管されます。アットホーム(株)で保管された個人情報の取り扱いについては、【こちら】をご覧ください。
また、本画面でご記入いただいた個人情報は、お問い合わせ先の不動産会社でも保管します。 お問い合わせ先の不動産会社が保管する個人情報の取り扱いについては、不動産会社に直接お問い合わせください。
大阪府知事免許(1)第63929号 |
---|
- 交通:
- 地下鉄御堂筋線/昭和町駅
- 大阪府大阪市阿倍野区阪南町3丁目35-3
- TEL:
- 0120-728-426
- FAX:
- 06-6621-2238
- 所属団体:
- (一社)大阪府宅地建物取引業協会会員(公社)近畿地区不動産公正取引協議会加盟
取引態様:一般媒介  - 99001124
|
- スマートフォンで
この不動産会社を見る

|
- 提携サイト等より掲載されている物件情報につきましては、不動産会社詳細情報にリンクされていないものがあります。
- 物件に関するお問合せは、物件詳細ページの「情報提供会社」に表示されている不動産会社へ直接お願いいたします。
- 間取図は、現況を優先させていただきます。
- 映像は物件の一部を撮影したものです。物件の契約にあたっての最終判断はご自身の判断に基づいて行ってください。
- 仲介手数料について

アットホームは物件情報の適正化に努めております。
内容に誤りがある場合にはこちらへご連絡ください。