大阪府大阪市住之江区南港北1丁目(コスモスクエア駅)の中古マンション・新築マンション・分譲マンション:物件詳細
交通 所在地 |
駅徒歩 |
価格 |
構造 階建/階 |
間取り 専有面積 |
物件種目 築年月 |
地下鉄中央線/コスモスクエア
大阪府大阪市住之江区南港北1丁目
|
5分
|
4,300万円
|
SRC
地上23階地下1階建 / 7階
|
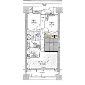
3LDK
83.13m²
|
中古マンション
2009年2月(築16年9ヶ月)
|
ペット相談、管理人日勤
|
間取図
|
外観
|
その他の画像
|
交通 | 地下鉄中央線 コスモスクエア駅 徒歩5分 |
---|
その他の交通 | 南港ポートタウン線 コスモスクエア駅 徒歩5分 南港ポートタウン線 トレードセンター前駅 徒歩10分 |
所在地 |
大阪府大阪市住之江区南港北1丁目
|
物件種目 |
中古マンション |
価格 |
4,300万円 |
平米単価 |
51.73万円 |
管理費等 |
9,390円 |
修繕積立金 |
10,610円 |
借地期間・地代(月額) |
- |
権利金 |
- |
敷金または保証金 |
- / - |
維持費等 |
- |
その他一時金 |
なし |
|
|
間取り |
3LDK |
専有面積 |
83.13m²(壁芯) |
階建 / 階 |
地上23階地下1階建 / 7階 |
バルコニー |
12.07m² |
築年月 |
2009年2月(築16年9ヶ月)
|
建物構造 |
SRC |
駐車場 |
有 21,000円/月 |
総戸数 |
600戸 |
駐輪場 |
- |
バイク置き場 |
- |
ペット |
相談 |
|
|
土地権利 |
所有権 |
敷地面積 |
- |
管理形態/管理員の勤務形態 |
全部委託/日勤 |
国土法届出 |
- |
アピールポイント |
80平米超のゆとりのある3LDK◆ペット飼育OK★
ご希望やご質問などお気軽にご相談くださいませ♪
◇◆ご内覧ご希望のお客様◆◇
資料請求ボタンまたはお電話にてご連絡下さい。
当日予約も可能です。
女性スタッフも対応可能♪
◆ローン相談
◆住み替え相談
◆相続相談
◆リースバック相談
◆家、土地 売却査定相談 等
こんな物件探してるんやけどあるかなー?
のお問い合わせも大歓迎です♪
ポータルサイトには掲載していない物件情報も当社HPにて多数掲載しておりますので、ぜひご覧くださいませ。
『センチュリー21 シズラホーム』Googleで検索♪
★☆★売却物件募集中★☆★
即金買取強化中♪
|
建物名・部屋番号 |
シーサイドレジデンスコスモスクエア駅前 |
リフォーム履歴 |
■その他:2025年6月 キッチン、トイレ、クロス張替え、床、洗面所 ※実施年月は最も古い履歴を表示 |
リノベーション履歴 |
- |
瑕疵保証 |
- |
瑕疵保険 |
- |
評価・証明書 |
- |
備考 |
主要採光面:南西向き
施工会社:五洋建設
用途地域:準工業
|
エネルギー消費性能 |
- |
断熱性能 |
- |
目安光熱費 |
- |
バス・トイレ |
- |
キッチン |
オープンキッチン |
設備・サービス |
トランクルーム、アルコーブ |
その他 |
- |
条件等 |
- |
現況 |
空家 |
引渡可能時期 |
相談 |
物件番号 |
1104718003 |
情報公開日 |
2025年9月11日 |
次回更新予定日 |
2025年10月25日 |
ケータイ用バーコード |
- スマートフォンでこの物件を見る
- スマートフォンからもこの物件をご覧になれます。
|
※「-」と表示されている項目については、情報提供会社にご確認ください。
ここから簡単にお問い合わせをすることができます。
(SSLでの暗号化での送信を希望されるお客さまは
こちら
よりお問い合わせください)
お問い合わせを行う前に
「個人情報の取り扱いについて」を必ずお読みください。
「個人情報の取り扱いについて」に同意いただいた場合は「上記にご同意の上 確認画面へ進む」のボタンをクリックしてください。
個人情報の取り扱いについて
皆さまが送付された個人情報はアットホーム(株)のサーバを経由し、お問い合わせ先の不動産会社にメールまたはFAXにて転送されるためアットホーム(株)にも保管されます。アットホーム(株)で保管された個人情報の取り扱いについては、【こちら】をご覧ください。
また、本画面でご記入いただいた個人情報は、お問い合わせ先の不動産会社でも保管します。 お問い合わせ先の不動産会社が保管する個人情報の取り扱いについては、不動産会社に直接お問い合わせください。
大阪府知事免許(1)第63929号 |
---|
- 交通:
- 地下鉄御堂筋線/昭和町駅
- 大阪府大阪市阿倍野区阪南町3丁目35-3
- TEL:
- 0120-728-426
- FAX:
- 06-6621-2238
- 所属団体:
- (一社)大阪府宅地建物取引業協会会員(公社)近畿地区不動産公正取引協議会加盟
取引態様:一般媒介  - 99001124
|
- スマートフォンで
この不動産会社を見る

|
- 提携サイト等より掲載されている物件情報につきましては、不動産会社詳細情報にリンクされていないものがあります。
- 物件に関するお問合せは、物件詳細ページの「情報提供会社」に表示されている不動産会社へ直接お願いいたします。
- 間取図は、現況を優先させていただきます。
- 映像は物件の一部を撮影したものです。物件の契約にあたっての最終判断はご自身の判断に基づいて行ってください。
- 仲介手数料について

アットホームは物件情報の適正化に努めております。
内容に誤りがある場合にはこちらへご連絡ください。