神奈川県横浜市瀬谷区橋戸3丁目(瀬谷駅)の中古マンション・新築マンション・分譲マンション:物件詳細
交通 所在地 |
駅徒歩 |
価格 |
構造 階建/階 |
間取り 専有面積 |
物件種目 築年月 |
|
相鉄本線/瀬谷
神奈川県横浜市瀬谷区橋戸3丁目
|
20分
|
1,680万円
|
RC
2階建 / 1階
|
3LDK
89.07m²
|
中古マンション
1980年11月(築45年7ヶ月)
|
|
ペット相談、角部屋、南向き、2面採光、閑静な住宅街
|
|
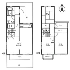
間取図
|
外観
外観は明るい印象です
|
<
その他の画像
>
|
| 交通 | 相鉄本線 瀬谷駅 徒歩20分 |
| 所在地 |
神奈川県横浜市瀬谷区橋戸3丁目
|
| 物件種目 |
中古マンション |
| 価格 |
1,680万円 |
平米単価 |
18.87万円 |
| 管理費等 |
15,000円 |
修繕積立金 |
なし |
| 借地期間・地代(月額) |
- |
権利金 |
- |
| 敷金または保証金 |
- / - |
維持費等 |
自治会費:400円/月 |
| その他一時金 |
なし |
|
|
| 間取り |
3LDK(LDK17洋室7.5洋室6和室6) |
専有面積 |
89.07m²(壁芯) |
| 階建 / 階 |
2階建 / 1階 |
バルコニー |
5.79m² |
| 築年月 |
1980年11月(築45年7ヶ月)
|
建物構造 |
RC |
| 駐車場 |
有 5,000円/月 |
総戸数 |
100戸 |
| 駐輪場 |
- |
バイク置き場 |
- |
| ペット |
小型犬可・ 猫可 |
|
|
| 土地権利 |
所有権 |
敷地面積 |
- |
| 管理形態/管理員の勤務形態 |
自主管理/不在 |
国土法届出 |
- |
| アピールポイント |
タウンハウス瀬谷は、閑静な住宅地に位置する、落ち着いた雰囲気の中古マンションです。1、2階の戸建て風のメゾネットになり、南向きの角部屋で、2面からの採光により明るい室内が実現しています。3LDKの間取りはファミリーにも適しており、広々としたフローリングのお部屋が魅力です。生活に便利な設備も充実しており、システムキッチンや独立洗面台、温水洗浄便座などが整っています。また、リラックスタイムにぴったりのテラスや専用庭も完備されています。快適な住環境を求める方におすすめの物件です。ぜひ一度ご覧ください。 |
| 建物名・部屋番号 |
タウンハウス瀬谷 |
| リフォーム履歴 |
- |
| リノベーション履歴 |
- |
| 瑕疵保証 |
- |
| 瑕疵保険 |
- |
| 評価・証明書 |
- |
| 備考 |
主要採光面:南向き
用途地域:1種低層
|
| エネルギー消費性能 |
- |
| 断熱性能 |
- |
| 目安光熱費 |
- |
| バス・トイレ |
追焚機能、温水洗浄便座 |
| キッチン |
システムキッチン |
| 設備・サービス |
収納スペース、室内洗濯機置場、クローゼット、給湯、都市ガス、エアコン、専用庭、テラス |
| その他 |
- |
| 条件等 |
- |
現況 |
空家 |
| 引渡可能時期 |
即時 |
物件番号 |
1105332403 |
| 情報公開日 |
2025年7月11日 |
次回更新予定日 |
2026年5月31日 |
| ケータイ用バーコード |
- スマートフォンでこの物件を見る
- スマートフォンからもこの物件をご覧になれます。
|
※「-」と表示されている項目については、情報提供会社にご確認ください。
ここから簡単にお問い合わせをすることができます。
(SSLでの暗号化での送信を希望されるお客さまは
こちら
よりお問い合わせください)
お問い合わせを行う前に
「個人情報の取り扱いについて」を必ずお読みください。
「個人情報の取り扱いについて」に同意いただいた場合は「上記にご同意の上 確認画面へ進む」のボタンをクリックしてください。
個人情報の取り扱いについて
皆さまが送付された個人情報はアットホーム(株)のサーバを経由し、お問い合わせ先の不動産会社にメールまたはFAXにて転送されるためアットホーム(株)にも保管されます。アットホーム(株)で保管された個人情報の取り扱いについては、【こちら】をご覧ください。
また、本画面でご記入いただいた個人情報は、お問い合わせ先の不動産会社でも保管します。 お問い合わせ先の不動産会社が保管する個人情報の取り扱いについては、不動産会社に直接お問い合わせください。
東京都知事免許(5)第82359号 |
|---|
- 交通:
- JR山手線/田町駅
- 東京都港区芝浦3丁目1-32 なぎさテラス501
- TEL:
- 03-5427-3031
- FAX:
- 03-5427-3032
- 所属団体:
- (公社)東京都宅地建物取引業協会会員(公社)首都圏不動産公正取引協議会加盟
取引態様:専属専任媒介  - 99000878
|
- スマートフォンで
この不動産会社を見る

|
- 提携サイト等より掲載されている物件情報につきましては、不動産会社詳細情報にリンクされていないものがあります。
- 物件に関するお問合せは、物件詳細ページの「情報提供会社」に表示されている不動産会社へ直接お願いいたします。
- 間取図は、現況を優先させていただきます。
- 映像は物件の一部を撮影したものです。物件の契約にあたっての最終判断はご自身の判断に基づいて行ってください。
- 仲介手数料について

アットホームは物件情報の適正化に努めております。
内容に誤りがある場合にはこちらへご連絡ください。