滋賀県大津市皇子が丘2丁目(大津京駅)の中古マンション・新築マンション・分譲マンション:物件詳細
交通 所在地 |
駅徒歩 |
価格 |
構造 階建/階 |
間取り 専有面積 |
物件種目 築年月 |
|
JR湖西線/大津京
滋賀県大津市皇子が丘2丁目
|
1分
|
3,280万円
|
RC
地上38階地下1階建 / 9階
|
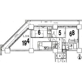
3LDK
83.59m²
|
中古マンション
2002年1月(築24年2ヶ月)
|
|
ペット相談、角部屋、3面採光、管理人日勤
|
|
間取図
|
外観
|
<
その他の画像
>
|
| 交通 | JR湖西線 大津京駅 徒歩1分 |
|---|
| その他の交通 | 京阪石山坂本線 京阪大津京駅 徒歩5分 |
| 所在地 |
滋賀県大津市皇子が丘2丁目
|
| 物件種目 |
中古マンション |
| 価格 |
3,280万円 |
平米単価 |
39.24万円 |
| 管理費等 |
8,800円 |
修繕積立金 |
14,210円 |
| 借地期間・地代(月額) |
- |
権利金 |
- |
| 敷金または保証金 |
- / - |
維持費等 |
- |
| その他一時金 |
なし |
|
|
| 間取り |
3LDK |
専有面積 |
83.59m²(壁芯) |
| 階建 / 階 |
地上38階地下1階建 / 9階 |
バルコニー |
26.67m² |
| 築年月 |
2002年1月(築24年2ヶ月)
|
建物構造 |
RC |
| 駐車場 |
有 3,000円/月 |
総戸数 |
587戸 |
| 駐輪場 |
- |
バイク置き場 |
- |
| ペット |
相談 |
|
|
| 土地権利 |
所有権 |
敷地面積 |
- |
| 管理形態/管理員の勤務形態 |
全部委託/日勤 |
国土法届出 |
- |
| アピールポイント |
2025年6月リフォーム済
9階部分の角部屋
全居室がバルコニーに面し陽当り・通風良好
即入居可 |
| 建物名・部屋番号 |
ファーストタワー大津MARY |
| リフォーム履歴 |
■その他:2025年6月 キッチン、トイレ、クロス張替え、床、洗面所、全室 ※実施年月は最も古い履歴を表示 |
| リノベーション履歴 |
- |
| 瑕疵保証 |
- |
| 瑕疵保険 |
- |
| 評価・証明書 |
- |
| 備考 |
主要採光面:北西向き
施工会社:(株)フジタ
用途地域:商業地域
*ガス漏れ警報器積立金250円/月
*リフォーム内容:ウォシュレット交換 浴室・キッチン・洗面台マイスターコーティング
コンロ取替 全室クロス・フローリング貼替 洗濯バン新調 クッションフロア一部貼替
畳表替え・襖・障子・網戸張替 ハウスクリーニング等
*駐輪場:100円/月
*バイク置場:500円/月
|
| エネルギー消費性能 |
- |
| 断熱性能 |
- |
| 目安光熱費 |
- |
| バス・トイレ |
浴室暖房、浴室乾燥機、追焚機能、温水洗浄便座 |
| キッチン |
カウンターキッチン、システムキッチン |
| 設備・サービス |
モニター付オートロック、全居室収納、床暖房、収納スペース、室内洗濯機置場、クローゼット、オートロック、全居室フローリング、都市ガス、二面バルコニー、光ファイバー、ケーブルTV、CS、BS端子 |
| その他 |
宅配BOX、キッズルーム、フィットネス施設、エレベーター |
| 条件等 |
- |
現況 |
空家 |
| 引渡可能時期 |
即時 |
物件番号 |
1106018703 |
| 情報公開日 |
2025年8月2日 |
次回更新予定日 |
2026年2月18日 |
| ケータイ用バーコード |
- スマートフォンでこの物件を見る
- スマートフォンからもこの物件をご覧になれます。
|
※「-」と表示されている項目については、情報提供会社にご確認ください。
| 周辺施設 |
イオン西大津店 |
| 距離 |
264m |
写真を見る |
| 周辺施設 |
バロー茶が崎店 |
| 距離 |
610m |
写真を見る |
| 周辺施設 |
業務スーパー西大津店 |
| 距離 |
561m |
写真を見る |
| 周辺施設 |
西松屋西大津店 |
| 距離 |
531m |
写真を見る |
| 周辺施設 |
キリン堂大津京店 |
| 距離 |
1145m |
写真を見る |
| 周辺施設 |
イオンスタイル大津京 |
| 距離 |
264m |
写真を見る |
| 周辺施設 |
サンドラッグ茶が崎店 |
| 距離 |
606m |
写真を見る |
| 周辺施設 |
ケーズデンキ西大津店 |
| 距離 |
1441m |
写真を見る |
ここから簡単にお問い合わせをすることができます。
(SSLでの暗号化での送信を希望されるお客さまは
こちら
よりお問い合わせください)
お問い合わせを行う前に
「個人情報の取り扱いについて」を必ずお読みください。
「個人情報の取り扱いについて」に同意いただいた場合は「上記にご同意の上 確認画面へ進む」のボタンをクリックしてください。
個人情報の取り扱いについて
皆さまが送付された個人情報はアットホーム(株)のサーバを経由し、お問い合わせ先の不動産会社にメールまたはFAXにて転送されるためアットホーム(株)にも保管されます。アットホーム(株)で保管された個人情報の取り扱いについては、【こちら】をご覧ください。
また、本画面でご記入いただいた個人情報は、お問い合わせ先の不動産会社でも保管します。 お問い合わせ先の不動産会社が保管する個人情報の取り扱いについては、不動産会社に直接お問い合わせください。
滋賀県知事免許(6)第2705号 |
|---|
- 交通:
- JR東海道本線/膳所駅
- 滋賀県大津市におの浜2丁目2-5-110
- TEL:
- 077-521-8555
- FAX:
- 077-521-8558
- 所属団体:
- (公社)滋賀県宅地建物取引業協会会員(公社)近畿地区不動産公正取引協議会加盟
取引態様:媒介  - 99000413
|
- スマートフォンで
この不動産会社を見る

|
- 提携サイト等より掲載されている物件情報につきましては、不動産会社詳細情報にリンクされていないものがあります。
- 物件に関するお問合せは、物件詳細ページの「情報提供会社」に表示されている不動産会社へ直接お願いいたします。
- 間取図は、現況を優先させていただきます。
- 映像は物件の一部を撮影したものです。物件の契約にあたっての最終判断はご自身の判断に基づいて行ってください。
- 仲介手数料について

アットホームは物件情報の適正化に努めております。
内容に誤りがある場合にはこちらへご連絡ください。