東京都江戸川区東小松川4丁目(船堀駅)の中古マンション・新築マンション・分譲マンション:物件詳細
交通 所在地 |
駅徒歩 |
価格 |
構造 階建/階 |
間取り 専有面積 |
物件種目 築年月 |
都営新宿線/船堀
東京都江戸川区東小松川4丁目
|
11分
|
6,080万円
|
RC
15階建 / 14階
|
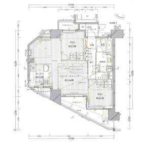
2LDK
75.31m²
|
中古マンション
2008年11月(築17年)
|
角部屋、管理人巡回
|
交通 | 都営新宿線 船堀駅 徒歩11分 |
所在地 |
東京都江戸川区東小松川4丁目
|
物件種目 |
中古マンション |
価格 |
6,080万円 |
平米単価 |
80.74万円 |
管理費等 |
12,280円 |
修繕積立金 |
17,660円 |
借地期間・地代(月額) |
- |
権利金 |
- |
敷金または保証金 |
- / - |
維持費等 |
- |
その他一時金 |
なし |
|
|
間取り |
2LDK |
専有面積 |
75.31m²(壁芯) |
階建 / 階 |
15階建 / 14階 |
バルコニー |
17.18m² |
築年月 |
2008年11月(築17年)
|
建物構造 |
RC |
駐車場 |
無 |
総戸数 |
70戸 |
駐輪場 |
- |
バイク置き場 |
- |
ペット |
-
|
|
|
土地権利 |
所有権 |
敷地面積 |
- |
管理形態/管理員の勤務形態 |
全部委託/巡回 |
国土法届出 |
- |
アピールポイント |
■船堀駅徒歩11分
■空室
■14階部分・西向きバルコニー
■角部屋
■EV
■モニター付オートロック
■小学校、中学校、スーパー徒歩10分圏内
■物件見学はお気軽に現地集合・現地解散OKです!
●このような不安はありませんか?
①「住宅ローンの本当に無理のない組み方とは(住宅ローンで失敗しないため)」
②「残念な物件を購入しないためのチェックポイント(この物件だけは買わないで)」
③「マイホームは欲しいけどなにからしたらいいかわからない」(不動産業者のペースで話をすすめられ後悔だけはしないで)
このような不安があるのであれば【必ず購入前に解決】してください!
ご自身で解決が難しい場合は、私、不動産YouTuberの「スガ社長」【チャンネル登録者1万人達成】が(YouTubeで「スガ社長」検索!)弊社にお問合せいただきました方限定無料の個別zoom相談(30分)を行います。
なお、無料個別相談ではYouTubeでは話せない内容をお伝えしています。
|
建物名・部屋番号 |
レノス船堀ブライトタワー |
リフォーム履歴 |
- |
リノベーション履歴 |
- |
瑕疵保証 |
- |
瑕疵保険 |
- |
評価・証明書 |
- |
備考 |
主要採光面:北向き
■船堀駅徒歩11分
■空室
■14階・西向きバルコニー
■角部屋
■EV
■オートロック
■物件見学はお気軽に現地集合・現地解散OKです!
弊社公式YouTubeチャンネルで知って得する不動産情報発信中!
「スガ社長の不動産取引成功の極意」【チャンネル登録者1万人達成】(YouTubeで「スガ社長」検索!)
|
エネルギー消費性能 |
- |
断熱性能 |
- |
目安光熱費 |
- |
バス・トイレ |
浴室暖房、浴室乾燥機、温水洗浄便座 |
キッチン |
IHクッキングヒーター、3口以上コンロ |
設備・サービス |
モニター付オートロック、室内洗濯機置場、クローゼット、給湯 |
その他 |
宅配BOX、エレベーター |
条件等 |
- |
現況 |
空家 |
引渡可能時期 |
相談 |
物件番号 |
1106878303 |
情報公開日 |
2025年9月4日 |
次回更新予定日 |
2025年11月1日 |
ケータイ用バーコード |
- スマートフォンでこの物件を見る
- スマートフォンからもこの物件をご覧になれます。
|
※「-」と表示されている項目については、情報提供会社にご確認ください。
ここから簡単にお問い合わせをすることができます。
(SSLでの暗号化での送信を希望されるお客さまは
こちら
よりお問い合わせください)
お問い合わせを行う前に
「個人情報の取り扱いについて」を必ずお読みください。
「個人情報の取り扱いについて」に同意いただいた場合は「上記にご同意の上 確認画面へ進む」のボタンをクリックしてください。
個人情報の取り扱いについて
皆さまが送付された個人情報はアットホーム(株)のサーバを経由し、お問い合わせ先の不動産会社にメールまたはFAXにて転送されるためアットホーム(株)にも保管されます。アットホーム(株)で保管された個人情報の取り扱いについては、【こちら】をご覧ください。
また、本画面でご記入いただいた個人情報は、お問い合わせ先の不動産会社でも保管します。 お問い合わせ先の不動産会社が保管する個人情報の取り扱いについては、不動産会社に直接お問い合わせください。
東京都知事免許(8)第63809号 |
---|
- 交通:
- JR山手線/日暮里駅
- 東京都荒川区西日暮里2丁目39-7 GSハイム日暮里101
- TEL:
- 03-3803-5377
- FAX:
- 03-3803-5088
- 所属団体:
- (公社)東京都宅地建物取引業協会会員(公社)首都圏不動産公正取引協議会加盟
取引態様:媒介  - 99000391
|
- スマートフォンで
この不動産会社を見る

|
- 提携サイト等より掲載されている物件情報につきましては、不動産会社詳細情報にリンクされていないものがあります。
- 物件に関するお問合せは、物件詳細ページの「情報提供会社」に表示されている不動産会社へ直接お願いいたします。
- 間取図は、現況を優先させていただきます。
- 映像は物件の一部を撮影したものです。物件の契約にあたっての最終判断はご自身の判断に基づいて行ってください。
- 仲介手数料について

アットホームは物件情報の適正化に努めております。
内容に誤りがある場合にはこちらへご連絡ください。