神奈川県横浜市磯子区坂下町(根岸駅)の中古マンション・新築マンション・分譲マンション:物件詳細
交通 所在地 |
駅徒歩 |
価格 |
構造 階建/階 |
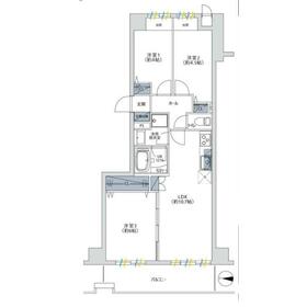
間取り 専有面積 |
物件種目 築年月 |
|
JR根岸線/根岸
神奈川県横浜市磯子区坂下町
|
12分
|
2,898万円
|
RC
6階建 / 2階
|
3LDK
55.22m²
|
中古マンション
1994年3月(築31年10ヶ月)
|
|
バス1坪以上、閑静な住宅街、管理人日勤
|
|
間取図
|
外観
|
<
その他の画像
>
|
| 交通 | JR根岸線 根岸駅 徒歩12分 |
|---|
| その他の交通 | ブルーライン 吉野町駅 徒歩29分 京急本線 上大岡駅 【バス】 25分 坂下公園前 停歩3分 |
| 所在地 |
神奈川県横浜市磯子区坂下町
|
| 物件種目 |
中古マンション |
| 価格 |
2,898万円 |
平米単価 |
52.49万円 |
| 管理費等 |
12,700円 |
修繕積立金 |
3,310円 |
| 借地期間・地代(月額) |
- |
権利金 |
- |
| 敷金または保証金 |
- / - |
維持費等 |
- |
| その他一時金 |
なし |
|
|
| 間取り |
3LDK |
専有面積 |
55.22m²(壁芯) |
| 階建 / 階 |
6階建 / 2階 |
バルコニー |
7.71m² |
| 築年月 |
1994年3月(築31年10ヶ月)
|
建物構造 |
RC |
| 駐車場 |
空無 |
総戸数 |
69戸 |
| 駐輪場 |
有 200円/月 |
バイク置き場 |
空無 |
| ペット |
-
|
|
|
| 土地権利 |
所有権 |
敷地面積 |
- |
| 管理形態/管理員の勤務形態 |
全部委託/日勤 |
国土法届出 |
- |
| アピールポイント |
【センチュリー21の物件情報】
◇頭金0円で購入が可能
◇JR根岸線「根岸」駅徒歩12分
◇2025年8月新規リフォーム済み物件
◇各居室クローゼット・玄関収納等収納豊富!
◇食洗機付きシステムキッチンで家事のサポート♪
◇リビングにはエアコンがあり夏でも快適空間(*^^*)
◇お子様のお留守番も安心オートロック付きマンション
◇小学校やスーパーが徒歩圏内!生活しやすい環境◎
◇お客様のご都合に合わせてご案内致します!
◇当日の内見も可能
◇どうぞお気軽にお問い合わせ下さい◇ |
| 建物名・部屋番号 |
ワコーレ横浜根岸 |
| リフォーム履歴 |
■その他:2025年8月 内装全面、キッチン、浴室、トイレ、クロス張替え、床、洗面所、給湯器、建具、ハウスクリーニング等 ※実施年月は最も古い履歴を表示 |
| リノベーション履歴 |
- |
| 瑕疵保証 |
- |
| 瑕疵保険 |
- |
| 評価・証明書 |
- |
| 備考 |
主要採光面:西向き
施工会社:(株)間組
用途地域:近隣商業、1種住居
|
| エネルギー消費性能 |
- |
| 断熱性能 |
- |
| 目安光熱費 |
- |
| バス・トイレ |
- |
| キッチン |
システムキッチン、食器洗浄乾燥機、浄水器、3口以上コンロ |
| 設備・サービス |
全居室収納、バイク置き場、収納スペース、クローゼット、オートロック、給湯、出窓、都市ガス、エアコン、駐輪場、照明器具 |
| その他 |
エレベーター |
| 条件等 |
- |
現況 |
空家 |
| 引渡可能時期 |
即時 |
物件番号 |
1107394203 |
| 情報公開日 |
2025年9月20日 |
次回更新予定日 |
2025年12月25日 |
| ケータイ用バーコード |
- スマートフォンでこの物件を見る
- スマートフォンからもこの物件をご覧になれます。
|
※「-」と表示されている項目については、情報提供会社にご確認ください。
| 周辺施設 |
横浜市立根岸小学校 |
| 距離 |
828m |
写真を見る |
| 周辺施設 |
横浜市立根岸中学校 |
| 距離 |
693m |
写真を見る |
| 周辺施設 |
横浜市東滝頭保育園 |
| 距離 |
437m |
写真を見る |
| 周辺施設 |
Fuji根岸橋店 |
| 距離 |
720m |
写真を見る |
| 周辺施設 |
そうてつローゼン磯子店 |
| 距離 |
1033m |
写真を見る |
| 周辺施設 |
ファミリーマートムサシヤ磯子店 |
| 距離 |
709m |
写真を見る |
| 周辺施設 |
クリエイトエス・ディー磯子滝頭店 |
| 距離 |
466m |
写真を見る |
| 周辺施設 |
横浜坂下郵便局 |
| 距離 |
120m |
写真を見る |
ここから簡単にお問い合わせをすることができます。
(SSLでの暗号化での送信を希望されるお客さまは
こちら
よりお問い合わせください)
お問い合わせを行う前に
「個人情報の取り扱いについて」を必ずお読みください。
「個人情報の取り扱いについて」に同意いただいた場合は「上記にご同意の上 確認画面へ進む」のボタンをクリックしてください。
個人情報の取り扱いについて
皆さまが送付された個人情報はアットホーム(株)のサーバを経由し、お問い合わせ先の不動産会社にメールまたはFAXにて転送されるためアットホーム(株)にも保管されます。アットホーム(株)で保管された個人情報の取り扱いについては、【こちら】をご覧ください。
また、本画面でご記入いただいた個人情報は、お問い合わせ先の不動産会社でも保管します。 お問い合わせ先の不動産会社が保管する個人情報の取り扱いについては、不動産会社に直接お問い合わせください。
神奈川県知事免許(2)第30998号 |
|---|
- 交通:
- 相鉄本線/天王町駅
- 神奈川県横浜市保土ケ谷区天王町2丁目42-13-1F
- TEL:
- 0120-978-772
- FAX:
- 045-444-8722
- 所属団体:
- (公社)神奈川県宅地建物取引業協会会員(公社)首都圏不動産公正取引協議会加盟
取引態様:媒介  - 99001048
|
- スマートフォンで
この不動産会社を見る

|
- 提携サイト等より掲載されている物件情報につきましては、不動産会社詳細情報にリンクされていないものがあります。
- 物件に関するお問合せは、物件詳細ページの「情報提供会社」に表示されている不動産会社へ直接お願いいたします。
- 間取図は、現況を優先させていただきます。
- 映像は物件の一部を撮影したものです。物件の契約にあたっての最終判断はご自身の判断に基づいて行ってください。
- 仲介手数料について

アットホームは物件情報の適正化に努めております。
内容に誤りがある場合にはこちらへご連絡ください。