千葉県千葉市若葉区東寺山町(東千葉駅)の中古マンション・新築マンション・分譲マンション:物件詳細
交通 所在地 |
駅徒歩 |
価格 |
構造 階建/階 |
間取り 専有面積 |
物件種目 築年月 |
JR総武本線/東千葉
千葉県千葉市若葉区東寺山町
|
19分
|
2,690万円
|
RC
地上9階地下1階建 / 5階
|
3LDK
75.29m²
|
中古マンション
2001年5月(築24年6ヶ月)
|
ペット相談、南向き、外壁コンクリート、管理人日勤
|
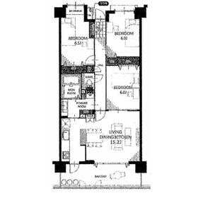
間取図
|
|
その他の画像
|
交通 | JR総武本線 東千葉駅 徒歩19分 |
---|
その他の交通 | 千葉都市モノレール 作草部駅 徒歩17分 千葉都市モノレール 天台駅 徒歩21分 |
所在地 |
千葉県千葉市若葉区東寺山町
|
物件種目 |
中古マンション |
価格 |
2,690万円 |
平米単価 |
35.73万円 |
管理費等 |
11,450円 |
修繕積立金 |
13,440円 |
借地期間・地代(月額) |
- |
権利金 |
- |
敷金または保証金 |
- / - |
維持費等 |
- |
その他一時金 |
なし |
|
|
間取り |
3LDK(LDK15.2洋室6.5洋室6洋室6) |
専有面積 |
75.29m²(壁芯) |
階建 / 階 |
地上9階地下1階建 / 5階 |
バルコニー |
12.16m² |
築年月 |
2001年5月(築24年6ヶ月)
|
建物構造 |
RC |
駐車場 |
空無 |
総戸数 |
68戸 |
駐輪場 |
- |
バイク置き場 |
- |
ペット |
相談 |
|
|
土地権利 |
所有権 |
敷地面積 |
- |
管理形態/管理員の勤務形態 |
全部委託/日勤 |
国土法届出 |
- |
アピールポイント |
\ここをリノベーション♪/
◆システムキッチン
◆ユニットバス
◆洗面化粧台
◆トイレ
◆建具
◆クロス全室貼替
◆床材貼替
◆ハウスクリーニング
\ここがおすすめ♪/
◆小中学校は徒歩10分圏内!
◆ゆったりバルコニーでくつろぎの時間◎
◆南向きの明るいリビング。
◆全居室収納!
\周りの環境♪/
JR「東千葉」駅→徒歩18分
◆千葉市立千草台東小学校→徒歩8分
◆千葉市立都賀中学校→徒歩7分
◆コープ東寺山店→徒歩3分
◆ウェルシア千葉東寺山コープ店→徒歩3分
◆セブンイレブン千葉殿台町店→徒歩11分 |
建物名・部屋番号 |
ロータリーパレス千葉パークサイドヒルズ |
リフォーム履歴 |
- |
リノベーション履歴 |
2025年10月 システムキッチン、ユニットバス、洗面化粧台、トイレ、建具、クロス全室張替え、床材張替え、ハウスクリーニング ※実施年月は最も古い履歴を表示 |
瑕疵保証 |
- |
瑕疵保険 |
- |
評価・証明書 |
- |
備考 |
主要採光面:南向き
施工会社:東海建設、三平建設
用途地域:1種中高、2種住居
\私たちにお任せください♪/
物件見学のご希望やローンのご相談、その他どんな小さなことでもぜひご連絡ください。 私たち不動産のプロが親切・丁寧をモットーに、ご回答させて頂きます。 時間外のお問合せは、エントリーフォームからのご連絡をお願い致します。 お会いできることを楽しみにしております!
|
エネルギー消費性能 |
- |
断熱性能 |
- |
目安光熱費 |
- |
バス・トイレ |
- |
キッチン |
システムキッチン |
設備・サービス |
全居室収納、収納スペース、室内洗濯機置場、シューズインクローゼット、クローゼット、出窓、都市ガス |
その他 |
エレベーター |
条件等 |
- |
現況 |
空家 |
引渡可能時期 |
即時 |
物件番号 |
1107985403 |
情報公開日 |
2025年10月9日 |
次回更新予定日 |
2025年10月24日 |
ケータイ用バーコード |
- スマートフォンでこの物件を見る
- スマートフォンからもこの物件をご覧になれます。
|
※「-」と表示されている項目については、情報提供会社にご確認ください。
周辺施設 |
千葉市立千草台東小学校 |
距離 |
630m |
写真を見る |
周辺施設 |
千葉市立都賀中学校 |
距離 |
500m |
写真を見る |
周辺施設 |
コープ東寺山店 |
距離 |
170m |
写真を見る |
周辺施設 |
セブンイレブン千葉殿台町店 |
距離 |
220m |
写真を見る |
周辺施設 |
ビバホーム作草部店 |
距離 |
1117m |
写真を見る |
周辺施設 |
オーケー千葉中央店 |
距離 |
1061m |
写真を見る |
周辺施設 |
稲毛東公園 |
距離 |
4845m |
写真を見る |
周辺施設 |
みつわ台第1公園 |
距離 |
1261m |
写真を見る |
ここから簡単にお問い合わせをすることができます。
(SSLでの暗号化での送信を希望されるお客さまは
こちら
よりお問い合わせください)
お問い合わせを行う前に
「個人情報の取り扱いについて」を必ずお読みください。
「個人情報の取り扱いについて」に同意いただいた場合は「上記にご同意の上 確認画面へ進む」のボタンをクリックしてください。
個人情報の取り扱いについて
皆さまが送付された個人情報はアットホーム(株)のサーバを経由し、お問い合わせ先の不動産会社にメールまたはFAXにて転送されるためアットホーム(株)にも保管されます。アットホーム(株)で保管された個人情報の取り扱いについては、【こちら】をご覧ください。
また、本画面でご記入いただいた個人情報は、お問い合わせ先の不動産会社でも保管します。 お問い合わせ先の不動産会社が保管する個人情報の取り扱いについては、不動産会社に直接お問い合わせください。
千葉県知事免許(3)第16178号 |
---|
- 交通:
- JR総武本線/四街道駅
- 千葉県千葉市稲毛区六方町26-5
- TEL:
- 043-312-0912
- FAX:
- 043-312-0913
- 所属団体:
- (公社)全日本不動産協会会員(公社)首都圏不動産公正取引協議会加盟
取引態様:媒介  - 99000678
|
- スマートフォンで
この不動産会社を見る

|
- 提携サイト等より掲載されている物件情報につきましては、不動産会社詳細情報にリンクされていないものがあります。
- 物件に関するお問合せは、物件詳細ページの「情報提供会社」に表示されている不動産会社へ直接お願いいたします。
- 間取図は、現況を優先させていただきます。
- 映像は物件の一部を撮影したものです。物件の契約にあたっての最終判断はご自身の判断に基づいて行ってください。
- 仲介手数料について

アットホームは物件情報の適正化に努めております。
内容に誤りがある場合にはこちらへご連絡ください。