山口県下関市東大和町1丁目(下関駅)の中古マンション・新築マンション・分譲マンション:物件詳細
交通 所在地 |
駅徒歩 |
価格 |
構造 階建/階 |
間取り 専有面積 |
物件種目 築年月 |
|
JR山陽本線/下関
山口県下関市東大和町1丁目
|
8分
|
2,790万円
|
RC
14階建 / 12階
|
3LDK
72.46m²
|
中古マンション
2007年1月(築19年3ヶ月)
|
|
ペット相談、24時間換気システム、バリアフリー、管理人日勤
|
|
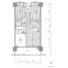
間取図
間取図
|
外観
|
<
その他の画像
>
|
| 交通 | JR山陽本線 下関駅 徒歩8分 |
| 所在地 |
山口県下関市東大和町1丁目
|
| 物件種目 |
中古マンション |
| 価格 |
2,790万円 |
平米単価 |
38.51万円 |
| 管理費等 |
4,900円 |
修繕積立金 |
9,100円 |
| 借地期間・地代(月額) |
- |
権利金 |
- |
| 敷金または保証金 |
- / - |
維持費等 |
- |
| その他一時金 |
なし |
|
|
| 間取り |
3LDK |
専有面積 |
72.46m²(内法) |
| 階建 / 階 |
14階建 / 12階 |
バルコニー |
13.40m² |
| 築年月 |
2007年1月(築19年3ヶ月)
|
建物構造 |
RC |
| 駐車場 |
有 12,000円/月 |
総戸数 |
182戸 |
| 駐輪場 |
有 |
バイク置き場 |
有 |
| ペット |
相談 |
|
|
| 土地権利 |
所有権 |
敷地面積 |
- |
| 管理形態/管理員の勤務形態 |
全部委託/日勤 |
国土法届出 |
- |
| アピールポイント |
☆担当者 おすすめポイント☆
☆14階建マンション最上階☆
☆下関駅まで徒歩8分の立地☆
☆商業施設は徒歩圏内に多数あり利便性良好☆
☆ベランダから海峡花火大会鑑賞可能☆
ご案内は随時受付可能です♪お気軽にお申し付けください。 |
| 建物名・部屋番号 |
エバーライフグランポート下関駅南壱番館 |
| リフォーム履歴 |
■水回り:2025年10月 キッチン、浴室、トイレ、洗面所 ■内装:2025年10月 全室クロス張替え、床(フローリング等)、建具(室内ドア等) その他実施個所:室内ハウスクリーニング ※実施年月は最も古い履歴を表示 |
| リノベーション履歴 |
- |
| 瑕疵保証 |
- |
| 瑕疵保険 |
- |
| 評価・証明書 |
- |
| 備考 |
主要採光面:南東向き
法令等制限:準防火地域/景観法
用途地域:商業地域
|
| エネルギー消費性能 |
- |
| 断熱性能 |
- |
| 目安光熱費 |
- |
| バス・トイレ |
浴室乾燥機、オートバス、追焚機能、温水洗浄便座 |
| キッチン |
システムキッチン、食器洗浄乾燥機、浄水器、3口以上コンロ |
| 設備・サービス |
モニター付オートロック、全居室収納、バイク置き場、収納スペース、省エネ給湯器、全居室フローリング、都市ガス、駐輪場、ケーブルTV |
| その他 |
エレベーター2基以上、共用ゲストルーム、来客用駐車場 |
| 条件等 |
- |
現況 |
空家 |
| 引渡可能時期 |
即時 |
物件番号 |
1119589518 |
| 仲介手数料 |
売買代金の3%+6万円 |
|
|
| 情報公開日 |
2025年11月15日 |
次回更新予定日 |
2026年4月2日 |
| ケータイ用バーコード |
- スマートフォンでこの物件を見る
- スマートフォンからもこの物件をご覧になれます。
|
※「-」と表示されている項目については、情報提供会社にご確認ください。
| 周辺施設 |
下関駅(JR西日本 山陽本線) |
| 距離 |
380m |
写真を見る |
| 周辺施設 |
マックスバリュシーモール店 |
| 距離 |
370m |
| 周辺施設 |
ゆめマート下関駅 |
| 距離 |
670m |
写真を見る |
| 周辺施設 |
セブンイレブン下関東大和町店 |
| 距離 |
1m |
| 周辺施設 |
ディスカウントドラッグコスモス東大和町店 |
| 距離 |
150m |
写真を見る |
| 周辺施設 |
山口銀行本店 |
| 距離 |
710m |
写真を見る |
ここから簡単にお問い合わせをすることができます。
(SSLでの暗号化での送信を希望されるお客さまは
こちら
よりお問い合わせください)
お問い合わせを行う前に
「個人情報の取り扱いについて」を必ずお読みください。
「個人情報の取り扱いについて」に同意いただいた場合は「上記にご同意の上 確認画面へ進む」のボタンをクリックしてください。
個人情報の取り扱いについて
皆さまが送付された個人情報はアットホーム(株)のサーバを経由し、お問い合わせ先の不動産会社にメールまたはFAXにて転送されるためアットホーム(株)にも保管されます。アットホーム(株)で保管された個人情報の取り扱いについては、【こちら】をご覧ください。
また、本画面でご記入いただいた個人情報は、お問い合わせ先の不動産会社でも保管します。 お問い合わせ先の不動産会社が保管する個人情報の取り扱いについては、不動産会社に直接お問い合わせください。
国土交通大臣免許(7)第5407号 |
|---|
- 交通:
- JR山陽本線/下関駅 【バス】 三百目 停歩1分
- 山口県下関市岬之町11-46
- TEL:
- 083-222-1111
- FAX:
- 083-222-4444
- 所属団体:
- (公社)山口県宅地建物取引業協会会員不動産公正取引協議会加盟
取引態様:媒介  - 80908076
|
- スマートフォンで
この不動産会社を見る

|
- 提携サイト等より掲載されている物件情報につきましては、不動産会社詳細情報にリンクされていないものがあります。
- 物件に関するお問合せは、物件詳細ページの「情報提供会社」に表示されている不動産会社へ直接お願いいたします。
- 間取図は、現況を優先させていただきます。
- 映像は物件の一部を撮影したものです。物件の契約にあたっての最終判断はご自身の判断に基づいて行ってください。
- 仲介手数料について

アットホームは物件情報の適正化に努めております。
内容に誤りがある場合にはこちらへご連絡ください。