東京都大田区大森北1丁目(大森駅)の中古マンション・新築マンション・分譲マンション:物件詳細
交通 所在地 |
駅徒歩 |
価格 |
構造 階建/階 |
間取り 専有面積 |
物件種目 築年月 |
|
JR京浜東北線/大森
東京都大田区大森北1丁目
|
3分
|
19,980万円
|
RC
24階建 / 23階
|
3LDK
76.28m²
|
中古マンション
2024年11月(築1年4ヶ月)
|
|
ペット相談、楽器相談、常時ゴミ出し可能、角部屋、南向き、振分、免震構造、24時間換気システム、管理人日勤
|
|
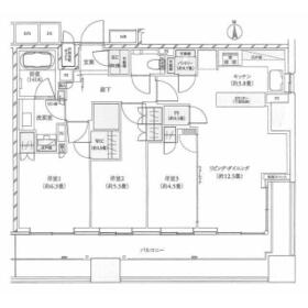
間取図
|
バルコニー
|
<
その他の画像
>
|
| 交通 | JR京浜東北線 大森駅 徒歩3分 |
|---|
| その他の交通 | 京急本線 大森海岸駅 徒歩9分 京急本線 平和島駅 徒歩18分 |
| 所在地 |
東京都大田区大森北1丁目
|
| 物件種目 |
中古マンション |
| 価格 |
19,980万円 |
平米単価 |
261.93万円 |
| 管理費等 |
32,650円 |
修繕積立金 |
12,970円 |
| 借地期間・地代(月額) |
- |
権利金 |
- |
| 敷金または保証金 |
- / - |
維持費等 |
CATV(定額料金):330円/月、インターネット(定額料金):1,551円/月、共聴設備利用料:330円/月、インターネット利用料:1,551円/月 |
| その他一時金 |
なし |
|
|
| 間取り |
3LDK(LDK16.3帖 洋室6.3帖 洋室5.3帖 洋室4.5帖) |
専有面積 |
76.28m²(壁芯) |
| 階建 / 階 |
24階建 / 23階 |
バルコニー |
21.40m² |
| 築年月 |
2024年11月(築1年4ヶ月)
|
建物構造 |
RC |
| 駐車場 |
空無 |
総戸数 |
104戸 |
| 駐輪場 |
空無 |
バイク置き場 |
有 |
| ペット |
相談 |
|
|
| 土地権利 |
所有権 |
敷地面積 |
- |
| 管理形態/管理員の勤務形態 |
全部委託/日勤 |
国土法届出 |
- |
| アピールポイント |
-オススメポイント-
●立地
・京浜東北線「大森」駅 徒歩3分
・京浜急行線「大森海岸」駅 徒歩9分
●特徴
・2024年築×24階建ての築浅タワーマンション
・23階南向きの角部屋で専有面積約76m2あり
・オートロック+ホームセキュリティがありセキュリティ充実
・床暖房付きの室内(LD+洋室2部屋)
・ミストサウナ付きの浴室
・エアコン3基あり
・ペット飼育可+楽器相談可(各種規約有・要相談)
・駅前に店舗が多数あり利便性良好な住環境
●設備
・自転車置場:月額1台600円(抽選)
・戸別宅配ボックス
・24時間ゴミ出し可
●周辺環境
・西友大森店 260m
・アトレ大森 100m
『資料請求』だけでも大丈夫です!
その他にもご希望に添う物件をご紹介いたします。
ぜひお気軽にお問合せくださいませ♪ |
| 建物名・部屋番号 |
ザ・パークハウス大森タワー |
| リフォーム履歴 |
- |
| リノベーション履歴 |
- |
| 瑕疵保証 |
- |
| 瑕疵保険 |
- |
| 評価・証明書 |
- |
| 備考 |
主要採光面:南向き
施工会社:木内建設(株)
用途地域:商業地域
延べ面積:76.28m²
|
| エネルギー消費性能 |
- |
| 断熱性能 |
- |
| 目安光熱費 |
- |
| バス・トイレ |
ミストサウナ、浴室乾燥機、追焚機能、シャワー付洗面化粧台、温水洗浄便座 |
| キッチン |
システムキッチン、食器洗浄乾燥機、浄水器、ディスポーザー、3口以上コンロ、2口コンロ |
| 設備・サービス |
モニター付オートロック、全居室収納、ウォークインクローゼット、エアコン2台以上、床暖房、バイク置き場、収納スペース、室内洗濯機置場、シューズインクローゼット、クローゼット、オートロック、モニター付インターホン、給湯、都市ガス、エアコン、暖房、冷房、ワイドバルコニー、二面バルコニー、駐輪場、照明器具、インターネット対応、ケーブルTV、CS、BS端子 |
| その他 |
宅配BOX、ペット用施設、エレベーター |
| 条件等 |
- |
現況 |
空家 |
| 引渡可能時期 |
即時 |
物件番号 |
1120119618 |
| 情報公開日 |
2025年12月1日 |
次回更新予定日 |
2026年3月1日 |
| ケータイ用バーコード |
- スマートフォンでこの物件を見る
- スマートフォンからもこの物件をご覧になれます。
|
※「-」と表示されている項目については、情報提供会社にご確認ください。
| 周辺施設 |
大森駅(JR東日本 京浜東北線) |
| 距離 |
210m |
写真を見る |
| 周辺施設 |
セブンイレブンLuz大森店 |
| 距離 |
40m |
写真を見る |
| 周辺施設 |
ヤマダデンキテックランド西友大森店 |
| 距離 |
300m |
写真を見る |
| 周辺施設 |
大田区立入新井第一小学校 |
| 距離 |
420m |
ここから簡単にお問い合わせをすることができます。
(SSLでの暗号化での送信を希望されるお客さまは
こちら
よりお問い合わせください)
お問い合わせを行う前に
「個人情報の取り扱いについて」を必ずお読みください。
「個人情報の取り扱いについて」に同意いただいた場合は「上記にご同意の上 確認画面へ進む」のボタンをクリックしてください。
個人情報の取り扱いについて
皆さまが送付された個人情報はアットホーム(株)のサーバを経由し、お問い合わせ先の不動産会社にメールまたはFAXにて転送されるためアットホーム(株)にも保管されます。アットホーム(株)で保管された個人情報の取り扱いについては、【こちら】をご覧ください。
また、本画面でご記入いただいた個人情報は、お問い合わせ先の不動産会社でも保管します。 お問い合わせ先の不動産会社が保管する個人情報の取り扱いについては、不動産会社に直接お問い合わせください。
国土交通大臣免許(1)第9970号 |
|---|
- 交通:
- 東急東横線/自由が丘駅 徒歩1分
- 東京都目黒区自由が丘2丁目11-22
- TEL:
- 03-6421-3500
- 所属団体:
- (公社)東京都宅地建物取引業協会会員(公社)首都圏不動産公正取引協議会加盟
取引態様:媒介  - 00278145
|
- スマートフォンで
この不動産会社を見る

|
- 提携サイト等より掲載されている物件情報につきましては、不動産会社詳細情報にリンクされていないものがあります。
- 物件に関するお問合せは、物件詳細ページの「情報提供会社」に表示されている不動産会社へ直接お願いいたします。
- 間取図は、現況を優先させていただきます。
- 映像は物件の一部を撮影したものです。物件の契約にあたっての最終判断はご自身の判断に基づいて行ってください。
- 仲介手数料について

アットホームは物件情報の適正化に努めております。
内容に誤りがある場合にはこちらへご連絡ください。