東京都目黒区青葉台1丁目(中目黒駅)の中古マンション・新築マンション・分譲マンション:物件詳細
交通 所在地 |
駅徒歩 |
価格 |
構造 階建/階 |
間取り 専有面積 |
物件種目 築年月 |
|
東急東横線/中目黒
東京都目黒区青葉台1丁目
|
5分
|
21,990万円
|
SRC
9階建 / 2階
|
3LDK
86.18m²
|
中古マンション
1997年2月(築28年11ヶ月)
|
|
角部屋、2面採光、管理人日勤
|
|
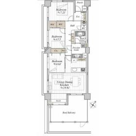
間取図
3方角部屋につき陽当たり・通風良好◎19m2ルーフバルコニー付き。リフォーム済の綺麗な室内です。
|
外観
日々の暮らしに彩りを与えてくれるよう整備された緑を配し、居住者様の暮らしを支えます。
|
<
その他の画像
>
|
| 交通 | 東急東横線 中目黒駅 徒歩5分 |
|---|
| その他の交通 | 東急東横線 代官山駅 徒歩9分 東急田園都市線 池尻大橋駅 徒歩16分 |
| 所在地 |
東京都目黒区青葉台1丁目
|
| 物件種目 |
中古マンション |
| 価格 |
21,990万円 |
平米単価 |
255.17万円 |
| 管理費等 |
12,300円 |
修繕積立金 |
7,380円 |
| 借地期間・地代(月額) |
- |
権利金 |
- |
| 敷金または保証金 |
- / - |
維持費等 |
ルーフバルコニー使用料:590円/月 |
| その他一時金 |
なし |
|
|
| 間取り |
3LDK(LDK18.9帖 洋室7.2帖 洋室4.7帖 洋室4.6帖) |
専有面積 |
86.18m²(壁芯) |
| 階建 / 階 |
9階建 / 2階 |
バルコニー |
19.62m² |
| 築年月 |
1997年2月(築28年11ヶ月)
|
建物構造 |
SRC |
| 駐車場 |
- |
総戸数 |
61戸 |
| 駐輪場 |
有 |
バイク置き場 |
- |
| ペット |
-
|
|
|
| 土地権利 |
所有権 |
敷地面積 |
- |
| 管理形態/管理員の勤務形態 |
全部委託/日勤 |
国土法届出 |
- |
| アピールポイント |
◆東京メトロ日比谷線・東急東横線「中目黒」駅徒歩5分
◆3方角部屋につき陽当たり・通風良好◎
◆19m2超ルーフバルコニー付き
◆モニター付きオートロック
≪おすすめポイント≫
◎東急東横線「代官山」駅徒歩9分
◎18.9帖の開放感溢れるLDK
◎リビングが見渡せる対面式システムキッチン♪
◎各所に収納スペースがあり、常に綺麗に保てます。
≪リフォーム内容(2025年11月)≫
・システムキッチン新規交換
(浄?器?体型?栓付き)
・フローリング全室貼り替え
・洗濯パン??栓新規交換
・ウォシュレット?体型トイレ新規交換
・建具新規交換
・クロス全室貼り替え
・ユニットバス新規交換
・洗?化粧台新規交換
・ルームクリーニング 等 |
| 建物名・部屋番号 |
クレッセント目黒青葉台 210 |
| リフォーム履歴 |
■水回り:2025年11月 キッチン、浴室、トイレ、洗面所 ■内装:2025年11月 内装全面(床・壁・天井・建具) ※実施年月は最も古い履歴を表示 |
| リノベーション履歴 |
- |
| 瑕疵保証 |
- |
| 瑕疵保険 |
- |
| 評価・証明書 |
- |
| 備考 |
主要採光面:南東向き
施工会社:清水建設株式会社
用途地域:準工業
|
| エネルギー消費性能 |
- |
| 断熱性能 |
- |
| 目安光熱費 |
- |
| バス・トイレ |
浴室暖房、浴室乾燥機、オートバス、追焚機能、温水洗浄便座 |
| キッチン |
システムキッチン、食器洗浄乾燥機、食器乾燥機、浄水器、3口以上コンロ、グリル |
| 設備・サービス |
モニター付オートロック、全居室収納、ウォークインクローゼット、床暖房、収納スペース、室内洗濯機置場、クローゼット、オートロック、モニター付インターホン、給湯、全居室フローリング、暖房、ルーフバルコニー、駐輪場 |
| その他 |
宅配BOX、エレベーター |
| 条件等 |
- |
現況 |
空家 |
| 引渡可能時期 |
相談 |
物件番号 |
1120209718 |
| 情報公開日 |
2025年12月4日 |
次回更新予定日 |
2025年12月18日 |
| ケータイ用バーコード |
- スマートフォンでこの物件を見る
- スマートフォンからもこの物件をご覧になれます。
|
※「-」と表示されている項目については、情報提供会社にご確認ください。
| 周辺施設 |
代官山T-SITE |
| 距離 |
510m |
写真を見る |
| 周辺施設 |
まいばすけっと目黒青葉台1丁目店 |
| 距離 |
150m |
写真を見る |
| 周辺施設 |
セブンイレブン朝日橋店 |
| 距離 |
110m |
写真を見る |
| 周辺施設 |
ウエルシア目黒青葉台店 |
| 距離 |
150m |
写真を見る |
| 周辺施設 |
ニトリEXPRESS中目黒店 |
| 距離 |
720m |
写真を見る |
| 周辺施設 |
目黒区立第一中学校 |
| 距離 |
1460m |
写真を見る |
| 周辺施設 |
目黒区立菅刈小学校 |
| 距離 |
730m |
写真を見る |
ここから簡単にお問い合わせをすることができます。
(SSLでの暗号化での送信を希望されるお客さまは
こちら
よりお問い合わせください)
お問い合わせを行う前に
「個人情報の取り扱いについて」を必ずお読みください。
「個人情報の取り扱いについて」に同意いただいた場合は「上記にご同意の上 確認画面へ進む」のボタンをクリックしてください。
個人情報の取り扱いについて
皆さまが送付された個人情報はアットホーム(株)のサーバを経由し、お問い合わせ先の不動産会社にメールまたはFAXにて転送されるためアットホーム(株)にも保管されます。アットホーム(株)で保管された個人情報の取り扱いについては、【こちら】をご覧ください。
また、本画面でご記入いただいた個人情報は、お問い合わせ先の不動産会社でも保管します。 お問い合わせ先の不動産会社が保管する個人情報の取り扱いについては、不動産会社に直接お問い合わせください。
国土交通大臣免許(2)第8967号 |
|---|
- 交通:
- JR山手線/東京駅 徒歩4分
- 東京都中央区京橋1丁目1-5 セントラルビル7階
- TEL:
- 0120-973-995
- FAX:
- 03-6661-9220
- 所属団体:
- (公社)東京都宅地建物取引業協会会員(公社)埼玉県宅地建物取引業協会会員(一社)全国住宅産業協会会員(公社)首都圏不動産公正取引協議会加盟
取引態様:媒介  - 00161643
|
- スマートフォンで
この不動産会社を見る

|
- 提携サイト等より掲載されている物件情報につきましては、不動産会社詳細情報にリンクされていないものがあります。
- 物件に関するお問合せは、物件詳細ページの「情報提供会社」に表示されている不動産会社へ直接お願いいたします。
- 間取図は、現況を優先させていただきます。
- 映像は物件の一部を撮影したものです。物件の契約にあたっての最終判断はご自身の判断に基づいて行ってください。
- 仲介手数料について

アットホームは物件情報の適正化に努めております。
内容に誤りがある場合にはこちらへご連絡ください。