東京都目黒区東山1丁目(中目黒駅)の中古マンション・新築マンション・分譲マンション:物件詳細
交通 所在地 |
駅徒歩 |
価格 |
構造 階建/階 |
間取り 専有面積 |
物件種目 築年月 |
|
東京メトロ日比谷線/中目黒
東京都目黒区東山1丁目
|
8分
|
15,900万円
|
RC
地上3階地下1階建 / 2階
|
2LDK
64.53m²
|
中古マンション
1998年3月(築27年10ヶ月)
|
|
常時ゴミ出し可能、2面採光、閑静な住宅街、管理人日勤、高台
|
|
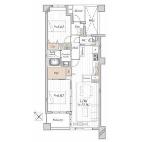
間取図
2LDK、専有面積64.53m2、価格1億5900万円
|
外観
落ち着いた街並みに佇む住まい
|
その他の画像
|
| 交通 | 東京メトロ日比谷線 中目黒駅 徒歩8分 |
|---|
| その他の交通 | 東急東横線 中目黒駅 徒歩8分 東急田園都市線 池尻大橋駅 徒歩15分 |
| 所在地 |
東京都目黒区東山1丁目
|
| 物件種目 |
中古マンション |
| 価格 |
15,900万円 |
平米単価 |
246.40万円 |
| 管理費等 |
10,830円 |
修繕積立金 |
12,910円 |
| 借地期間・地代(月額) |
- |
権利金 |
- |
| 敷金または保証金 |
- / - |
維持費等 |
- |
| その他一時金 |
なし |
|
|
| 間取り |
2LDK(LDK15.0帖 洋室6.0帖 洋室6.0帖) |
専有面積 |
64.53m²(壁芯) |
| 階建 / 階 |
地上3階地下1階建 / 2階 |
バルコニー |
4.69m² |
| 築年月 |
1998年3月(築27年10ヶ月)
|
建物構造 |
RC |
| 駐車場 |
有 34,000円/月 |
総戸数 |
23戸 |
| 駐輪場 |
- |
バイク置き場 |
- |
| ペット |
-
|
|
|
| 土地権利 |
所有権 |
敷地面積 |
- |
| 管理形態/管理員の勤務形態 |
全部委託/日勤 |
国土法届出 |
- |
| アピールポイント |
【セールスポイント】
■2026年1月下旬リフォーム完成予定♪
■64m2超の2LDKで使いやすい空間♪
□■□■□■□■□■□■□■□■□■
ご見学予約承っております!!
お気軽にご連絡下さい!!
□■□■□■□■□■□■□■□■□■
・都心部および城南エリアを中心とする地域密着の会社です♪
・本物件については勿論、周辺環境も詳しくご説明いたします。 |
| 建物名・部屋番号 |
ファミールヒルズ目黒東山 |
| リフォーム履歴 |
■水回り:2025年12月 キッチン キッチンダクトレール・ペンダント交換 ■内装:2025年12月 全室クロス張替え、床(フローリング等)、建具(室内ドア等) その他実施個所:一部シーリングライト交換、一部稼働棚交換 建具扉全室交換、クロス全室・洗面室フロアタイル・トイレフロアタイル貼替、スイッチコンセント交換、一部シーリングライト交換、一部稼働棚交換、ルームクリーニング等 ※実施年月は最も古い履歴を表示 |
| リノベーション履歴 |
- |
| 瑕疵保証 |
- |
| 瑕疵保険 |
- |
| 評価・証明書 |
- |
| 備考 |
主要採光面:南西向き
施工会社:大木建設株式会社
用途地域:1種低層
文京住販はお客様の立場に立ってお住まい探しのサポートしております。マイホーム購入は一生に一度の大きなお買い物です。購入条件の絞込みから購入時期も相談し、ゆっくりじっくり一緒に進めていきましょう!
|
| エネルギー消費性能 |
- |
| 断熱性能 |
- |
| 目安光熱費 |
- |
| バス・トイレ |
追焚機能、温水洗浄便座 |
| キッチン |
カウンターキッチン、食器洗浄乾燥機、3口以上コンロ |
| 設備・サービス |
全居室収納、ウォークインクローゼット、床暖房、収納スペース、室内洗濯機置場、クローゼット、モニター付インターホン、全居室フローリング、アルコーブ、シーリングファン、照明器具 |
| その他 |
- |
| 条件等 |
- |
現況 |
空家 |
| 引渡可能時期 |
相談 |
物件番号 |
1120232218 |
| 情報公開日 |
2025年12月5日 |
次回更新予定日 |
2025年12月19日 |
| ケータイ用バーコード |
- スマートフォンでこの物件を見る
- スマートフォンからもこの物件をご覧になれます。
|
※「-」と表示されている項目については、情報提供会社にご確認ください。
| 周辺施設 |
中目黒駅(東急電鉄 東横線) |
| 距離 |
660m |
写真を見る |
| 周辺施設 |
中目黒駅(東京メトロ 日比谷線) |
| 距離 |
660m |
写真を見る |
| 周辺施設 |
まいばすけっと目黒青葉台1丁目店 |
| 距離 |
390m |
写真を見る |
| 周辺施設 |
東急ストア中目黒本店 |
| 距離 |
670m |
写真を見る |
| 周辺施設 |
ローソン目黒東山店 |
| 距離 |
280m |
写真を見る |
| 周辺施設 |
ウエルシア目黒青葉台店 |
| 距離 |
420m |
写真を見る |
| 周辺施設 |
ニトリ中目黒店 |
| 距離 |
910m |
写真を見る |
| 周辺施設 |
目黒東山一郵便局 |
| 距離 |
460m |
写真を見る |
ここから簡単にお問い合わせをすることができます。
(SSLでの暗号化での送信を希望されるお客さまは
こちら
よりお問い合わせください)
お問い合わせを行う前に
「個人情報の取り扱いについて」を必ずお読みください。
「個人情報の取り扱いについて」に同意いただいた場合は「上記にご同意の上 確認画面へ進む」のボタンをクリックしてください。
個人情報の取り扱いについて
皆さまが送付された個人情報はアットホーム(株)のサーバを経由し、お問い合わせ先の不動産会社にメールまたはFAXにて転送されるためアットホーム(株)にも保管されます。アットホーム(株)で保管された個人情報の取り扱いについては、【こちら】をご覧ください。
また、本画面でご記入いただいた個人情報は、お問い合わせ先の不動産会社でも保管します。 お問い合わせ先の不動産会社が保管する個人情報の取り扱いについては、不動産会社に直接お問い合わせください。
東京都知事免許(4)第86009号 |
|---|
- 交通:
- JR山手線/恵比寿駅 徒歩5分
- 東京都渋谷区恵比寿西2丁目3-3 武田第2ビル 2階
- TEL:
- 03-6455-0791
- FAX:
- 03-5840-9013
- 所属団体:
- (公社)全日本不動産協会会員(公社)首都圏不動産公正取引協議会加盟
取引態様:媒介  - 00275874
|
- スマートフォンで
この不動産会社を見る

|
- 提携サイト等より掲載されている物件情報につきましては、不動産会社詳細情報にリンクされていないものがあります。
- 物件に関するお問合せは、物件詳細ページの「情報提供会社」に表示されている不動産会社へ直接お願いいたします。
- 間取図は、現況を優先させていただきます。
- 映像は物件の一部を撮影したものです。物件の契約にあたっての最終判断はご自身の判断に基づいて行ってください。
- 仲介手数料について

アットホームは物件情報の適正化に努めております。
内容に誤りがある場合にはこちらへご連絡ください。