東京都世田谷区野毛3丁目(上野毛駅)の中古マンション・新築マンション・分譲マンション:物件詳細
交通 所在地 |
駅徒歩 |
価格 |
構造 階建/階 |
間取り 専有面積 |
物件種目 築年月 |
|
東急大井町線/上野毛
東京都世田谷区野毛3丁目
|
12分
|
4,580万円
|
RC
4階建 / 1階
|
1SLDK
60.44m²
|
中古マンション
1977年9月(築48年4ヶ月)
|
|
ペット相談、閑静な住宅街、管理人日勤
|
|
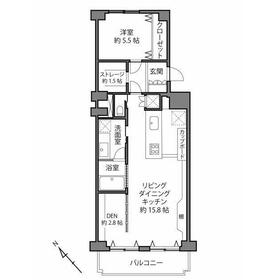
間取図
■間取図■1SLDK専有面積:60.44m2
|
リビング
■リビング■
|
<
その他の画像
>
|
| 交通 | 東急大井町線 上野毛駅 徒歩12分 |
|---|
| その他の交通 | 東急田園都市線 二子玉川駅 徒歩14分 東急大井町線 等々力駅 徒歩19分 |
| 所在地 |
東京都世田谷区野毛3丁目
|
| 物件種目 |
中古マンション |
| 価格 |
4,580万円 |
平米単価 |
75.78万円 |
| 管理費等 |
8,600円 |
修繕積立金 |
14,270円 |
| 借地期間・地代(月額) |
- |
権利金 |
- |
| 敷金または保証金 |
- / - |
維持費等 |
- |
| その他一時金 |
なし |
|
|
| 間取り |
1SLDK(LDK15.8帖 洋室5.5帖 S2.8帖) |
専有面積 |
60.44m²(壁芯) |
| 階建 / 階 |
4階建 / 1階 |
バルコニー |
7.00m² |
| 築年月 |
1977年9月(築48年4ヶ月)
|
建物構造 |
RC |
| 駐車場 |
空無 |
総戸数 |
25戸 |
| 駐輪場 |
有 200円/月 |
バイク置き場 |
有 400円/月 |
| ペット |
相談 |
|
|
| 土地権利 |
所有権 |
敷地面積 |
- |
| 管理形態/管理員の勤務形態 |
全部委託/日勤 |
国土法届出 |
- |
| アピールポイント |
人気の城南エリア(目黒・世田谷・大田・品川・港・渋谷・杉並・新宿・中野)や川崎エリアなら当社にお任せください!
■■インターネットに掲載しない数社限定未公開情報多数■■
■~~~~~~~~~~~~~~~~~
〇未公開物件など様々な物件情報を取り揃えております。
弊社限定物件もございます!
お客様の希望が叶う物件に出会えます!
〇ファイナンシャルプランナー・住宅ローンアドバイザーが在籍しております。
資金計画やご予算の組み立てなど、お客様に最適なプランをご提案いたします。
お気軽にお問合せください!
~~~~~~~~~~~~~~~~~~~■ |
| 建物名・部屋番号 |
上野毛リッツハウスB館 |
| リフォーム履歴 |
- |
| リノベーション履歴 |
2015年9月 フルリノベーション済 ※実施年月は最も古い履歴を表示 |
| 瑕疵保証 |
- |
| 瑕疵保険 |
- |
| 評価・証明書 |
- |
| 備考 |
主要採光面:南西向き
施工会社:株式会社長谷川工務店
用途地域:1種中高
■------------------
〇未公開物件など様々な物件情報を取り揃えております。
弊社限定物件もございます!
お客様の希望が叶う物件に出会えます!
〇ファイナンシャルプランナー・住宅ローンアドバイザーが在籍しております。
資金計画やご予算の組み立てなど、お客様に最適なプランをご提案致します。
お気軽にお問合せください!
------------------■
|
| エネルギー消費性能 |
- |
| 断熱性能 |
- |
| 目安光熱費 |
- |
| バス・トイレ |
- |
| キッチン |
システムキッチン、3口以上コンロ |
| 設備・サービス |
バイク置き場、収納スペース、室内洗濯機置場、クローゼット、モニター付インターホン、全居室フローリング、都市ガス、駐輪場、インターネット対応、ケーブルTV、CS、BS端子 |
| その他 |
- |
| 条件等 |
- |
現況 |
空家 |
| 引渡可能時期 |
相談 |
物件番号 |
1120399218 |
| 情報公開日 |
2025年12月11日 |
次回更新予定日 |
2025年12月25日 |
| ケータイ用バーコード |
- スマートフォンでこの物件を見る
- スマートフォンからもこの物件をご覧になれます。
|
※「-」と表示されている項目については、情報提供会社にご確認ください。
| 周辺施設 |
スーパーオオゼキ上野毛店 |
| 距離 |
1030m |
写真を見る |
| 周辺施設 |
セブンイレブン世田谷上野毛駅前店 |
| 距離 |
900m |
写真を見る |
| 周辺施設 |
世田谷区立玉川小学校 |
| 距離 |
1360m |
写真を見る |
| 周辺施設 |
世田谷区立玉川中学校 |
| 距離 |
1600m |
写真を見る |
| 周辺施設 |
二子玉川ライズ・ショッピングセンター・テラスマーケット |
| 距離 |
1070m |
写真を見る |
| 周辺施設 |
上野毛自然公園 |
| 距離 |
590m |
写真を見る |
| 周辺施設 |
医療法人平成博愛会世田谷記念病院 |
| 距離 |
350m |
写真を見る |
| 周辺施設 |
医療法人社団のびた みくりキッズくりにっく |
| 距離 |
500m |
写真を見る |
ここから簡単にお問い合わせをすることができます。
(SSLでの暗号化での送信を希望されるお客さまは
こちら
よりお問い合わせください)
お問い合わせを行う前に
「個人情報の取り扱いについて」を必ずお読みください。
「個人情報の取り扱いについて」に同意いただいた場合は「上記にご同意の上 確認画面へ進む」のボタンをクリックしてください。
個人情報の取り扱いについて
皆さまが送付された個人情報はアットホーム(株)のサーバを経由し、お問い合わせ先の不動産会社にメールまたはFAXにて転送されるためアットホーム(株)にも保管されます。アットホーム(株)で保管された個人情報の取り扱いについては、【こちら】をご覧ください。
また、本画面でご記入いただいた個人情報は、お問い合わせ先の不動産会社でも保管します。 お問い合わせ先の不動産会社が保管する個人情報の取り扱いについては、不動産会社に直接お問い合わせください。
東京都知事免許(1)第106454号 |
|---|
- 交通:
- JR山手線/恵比寿駅 徒歩7分
- 東京都渋谷区東3丁目14-19 オークヒルズ5階
- TEL:
- 03-6364-0935
- FAX:
- 03-3499-1805
- 所属団体:
- (公社)東京都宅地建物取引業協会会員(公社)首都圏不動産公正取引協議会加盟
取引態様:一般媒介  - 00272634
|
- スマートフォンで
この不動産会社を見る

|
- 提携サイト等より掲載されている物件情報につきましては、不動産会社詳細情報にリンクされていないものがあります。
- 物件に関するお問合せは、物件詳細ページの「情報提供会社」に表示されている不動産会社へ直接お願いいたします。
- 間取図は、現況を優先させていただきます。
- 映像は物件の一部を撮影したものです。物件の契約にあたっての最終判断はご自身の判断に基づいて行ってください。
- 仲介手数料について

アットホームは物件情報の適正化に努めております。
内容に誤りがある場合にはこちらへご連絡ください。