東京都中央区勝どき4丁目(勝どき駅)の中古マンション・新築マンション・分譲マンション:物件詳細
交通 所在地 |
駅徒歩 |
価格 |
構造 階建/階 |
間取り 専有面積 |
物件種目 築年月 |
|
都営大江戸線/勝どき
東京都中央区勝どき4丁目
|
8分
|
5,380万円
|
SRC
11階建 / 11階
|
2LDK
43.74m²
|
中古マンション
1973年9月(築52年4ヶ月)
|
|
最上階、管理人日勤
|
|
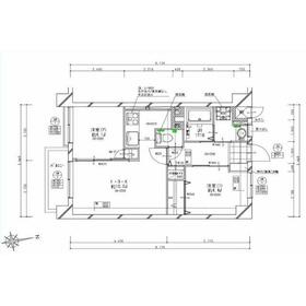
間取図
物件詳細は『0120-963-221』までお問合せください。
|
|
| 交通 | 都営大江戸線 勝どき駅 徒歩8分 |
|---|
| その他の交通 | 都営大江戸線 月島駅 徒歩20分 新交通ゆりかもめ 竹芝駅 徒歩36分 |
| 所在地 |
東京都中央区勝どき4丁目
|
| 物件種目 |
中古マンション |
| 価格 |
5,380万円 |
平米単価 |
123万円 |
| 管理費等 |
11,440円 |
修繕積立金 |
13,390円 |
| 借地期間・地代(月額) |
- |
権利金 |
- |
| 敷金または保証金 |
- / - |
維持費等 |
- |
| その他一時金 |
なし |
|
|
| 間取り |
2LDK(LDK10.0帖 洋室4.4帖 洋室4.1帖) |
専有面積 |
43.74m²(内法) |
| 階建 / 階 |
11階建 / 11階 |
バルコニー |
3.24m² |
| 築年月 |
1973年9月(築52年4ヶ月)
|
建物構造 |
SRC |
| 駐車場 |
無 |
総戸数 |
41戸 |
| 駐輪場 |
- |
バイク置き場 |
- |
| ペット |
-
|
|
|
| 土地権利 |
所有権 |
敷地面積 |
- |
| 管理形態/管理員の勤務形態 |
全部委託/日勤 |
国土法届出 |
- |
| アピールポイント |
~家族の笑顔が集まる住まい。~
◇都営大江戸線「勝どき」駅へ徒歩3分の好立地
◇リビングを中心に家族が集まりやすい設計
◇南西向きにつき日当たり・風通し良好
◇公園や保育園・学校が揃っていて、子育て世代にぴったり
【上場企業グループの不動産部門・なんぼや不動産】
まずは資料から→オレンジの【資料請求する】ボタンから!
気軽に予約→赤の【見学予約する】ボタンから!
電話で相談→フリーダイヤル:0120-963-221(年中無休) |
| 建物名・部屋番号 |
トダカ勝どコーポ |
| リフォーム履歴 |
- |
| リノベーション履歴 |
- |
| 瑕疵保証 |
- |
| 瑕疵保険 |
- |
| 評価・証明書 |
- |
| 備考 |
主要採光面:南西向き
用途地域:商業地域
|
| エネルギー消費性能 |
- |
| 断熱性能 |
- |
| 目安光熱費 |
- |
| バス・トイレ |
浴室乾燥機、シャワー付洗面化粧台 |
| キッチン |
システムキッチン |
| 設備・サービス |
オートロック、全居室フローリング、可動間仕切り |
| その他 |
エレベーター |
| 条件等 |
- |
現況 |
空家 |
| 引渡可能時期 |
相談 |
物件番号 |
1120705318 |
| 情報公開日 |
2025年12月23日 |
次回更新予定日 |
2026年1月6日 |
| ケータイ用バーコード |
- スマートフォンでこの物件を見る
- スマートフォンからもこの物件をご覧になれます。
|
※「-」と表示されている項目については、情報提供会社にご確認ください。
| 周辺施設 |
ローソンパークタワー勝どきミッド店 |
| 距離 |
210m |
| 周辺施設 |
マルエツ晴海三丁目店 |
| 距離 |
690m |
写真を見る |
| 周辺施設 |
医療法人社団クリタ会聖カタリナ病院 |
| 距離 |
590m |
| 周辺施設 |
ニチイキッズさわやか勝どき6丁目保育園分園 |
| 距離 |
110m |
ここから簡単にお問い合わせをすることができます。
(SSLでの暗号化での送信を希望されるお客さまは
こちら
よりお問い合わせください)
お問い合わせを行う前に
「個人情報の取り扱いについて」を必ずお読みください。
「個人情報の取り扱いについて」に同意いただいた場合は「上記にご同意の上 確認画面へ進む」のボタンをクリックしてください。
個人情報の取り扱いについて
皆さまが送付された個人情報はアットホーム(株)のサーバを経由し、お問い合わせ先の不動産会社にメールまたはFAXにて転送されるためアットホーム(株)にも保管されます。アットホーム(株)で保管された個人情報の取り扱いについては、【こちら】をご覧ください。
また、本画面でご記入いただいた個人情報は、お問い合わせ先の不動産会社でも保管します。 お問い合わせ先の不動産会社が保管する個人情報の取り扱いについては、不動産会社に直接お問い合わせください。
国土交通大臣免許(1)第10109号 |
|---|
- 交通:
- 東京メトロ銀座線/表参道駅 徒歩1分
- 東京都港区南青山5丁目6-19 MA5
- TEL:
- 0120-963-221
- 所属団体:
- (一社)大阪府宅地建物取引業協会会員(公社)東京都宅地建物取引業協会会員(公社)首都圏不動産公正取引協議会加盟
取引態様:媒介  - 00272268
|
- スマートフォンで
この不動産会社を見る

|
- 提携サイト等より掲載されている物件情報につきましては、不動産会社詳細情報にリンクされていないものがあります。
- 物件に関するお問合せは、物件詳細ページの「情報提供会社」に表示されている不動産会社へ直接お願いいたします。
- 間取図は、現況を優先させていただきます。
- 映像は物件の一部を撮影したものです。物件の契約にあたっての最終判断はご自身の判断に基づいて行ってください。
- 仲介手数料について

アットホームは物件情報の適正化に努めております。
内容に誤りがある場合にはこちらへご連絡ください。