東京都千代田区麹町1丁目(半蔵門駅)の中古マンション・新築マンション・分譲マンション:物件詳細
交通 所在地 |
駅徒歩 |
価格 |
構造 階建/階 |
間取り 専有面積 |
物件種目 築年月 |
|
東京メトロ半蔵門線/半蔵門
東京都千代田区麹町1丁目
|
2分
|
5,180万円
|
SRC
13階建 / 9階
|
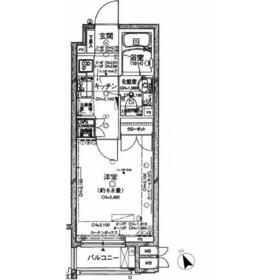
1K
22.63m²
|
中古マンション
2004年4月(築21年11ヶ月)
|
|
常時ゴミ出し可能、南向き、管理人巡回、IT重説対応物件
|
|
間取図
間取図
|
外観
外観
|
<
その他の画像
>
|
| 交通 | 東京メトロ半蔵門線 半蔵門駅 徒歩2分 |
|---|
| その他の交通 | 東京メトロ有楽町線 麹町駅 徒歩7分 東京メトロ南北線 永田町駅 徒歩12分 |
| 所在地 |
東京都千代田区麹町1丁目
|
| 物件種目 |
中古マンション |
| 価格 |
5,180万円 |
平米単価 |
228.90万円 |
| 管理費等 |
5,500円 |
修繕積立金 |
8,195円 |
| 借地期間・地代(月額) |
- |
権利金 |
- |
| 敷金または保証金 |
- / - |
維持費等 |
インターネット(定額料金):1,260円/月 |
| その他一時金 |
なし |
|
|
| 間取り |
1K |
専有面積 |
22.63m²(壁芯) |
| 階建 / 階 |
13階建 / 9階 |
バルコニー |
2.09m² |
| 築年月 |
2004年4月(築21年11ヶ月)
|
建物構造 |
SRC |
| 駐車場 |
- |
総戸数 |
90戸 |
| 駐輪場 |
- |
バイク置き場 |
- |
| ペット |
-
|
|
|
| 土地権利 |
所有権 |
敷地面積 |
- |
| 管理形態/管理員の勤務形態 |
全部委託/巡回 |
国土法届出 |
- |
| アピールポイント |
歴史と文化が息づく麹町エリアに位置する「パレステュディオ麹町」は、日々の利便性と静寂を兼ね備えた邸宅です。通勤・通学に便利な駅徒歩圏内の立地に加え、皇居や日比谷公園が徒歩圏内にあり、四季折々の自然を身近に感じながら暮らせます。都心にありながらも落ち着いた街並みは、プライベートな時間を大切にしたい方にぴったり。さらに、資産価値の下がりにくいエリアとしても知られ、将来にわたって安心して住み続けられる住まいです。高品質な設備とデザイン性の高い間取りで、毎日の生活を豊かに彩ります。
【リフォーム実施箇所】
・フローリング、壁天井クロス全面張替え
・システムキッチン交換(クリナップ社製)
・ユニットバス交換(TOTO社製)
・洗面化粧台交換(TOTO社製)
・温水洗浄暖房便座トイレ交換(TOTO社製)
・給湯器交換(リンナイ社製) |
| 建物名・部屋番号 |
パレステュディオ麹町 |
| リフォーム履歴 |
- |
| リノベーション履歴 |
- |
| 瑕疵保証 |
- |
| 瑕疵保険 |
- |
| 評価・証明書 |
- |
| 備考 |
主要採光面:南向き
用途地域:商業地域
IT重説対応物件
~資料請求・内見希望など、お気軽にお問い合わせください~【MEIKO GROUP】創業30年以上の堅実で安定した経営基盤をもつ「正直不動産会社」。都心のブランドエリアをはじめ、東京23区・首都圏など、資産性の高い中古・新築マンションをご紹介しています。売主様から直接お預かり物件が多数。ぜひお気軽にご相談ください!
|
| エネルギー消費性能 |
- |
| 断熱性能 |
- |
| 目安光熱費 |
- |
| バス・トイレ |
浴室乾燥機、温水洗浄便座 |
| キッチン |
2口コンロ |
| 設備・サービス |
モニター付オートロック、室内洗濯機置場、クローゼット、オートロック、モニター付インターホン、防犯カメラ、都市ガス、エアコン、インターネット対応 |
| その他 |
エレベーター |
| 条件等 |
- |
現況 |
空家 |
| 引渡可能時期 |
相談 |
物件番号 |
1120868218 |
| 仲介手数料 |
売買代金の3.3%+6.6万円 |
|
|
| 情報公開日 |
2026年1月5日 |
次回更新予定日 |
2026年2月17日 |
| ケータイ用バーコード |
- スマートフォンでこの物件を見る
- スマートフォンからもこの物件をご覧になれます。
|
※「-」と表示されている項目については、情報提供会社にご確認ください。
ここから簡単にお問い合わせをすることができます。
(SSLでの暗号化での送信を希望されるお客さまは
こちら
よりお問い合わせください)
お問い合わせを行う前に
「個人情報の取り扱いについて」を必ずお読みください。
「個人情報の取り扱いについて」に同意いただいた場合は「上記にご同意の上 確認画面へ進む」のボタンをクリックしてください。
個人情報の取り扱いについて
皆さまが送付された個人情報はアットホーム(株)のサーバを経由し、お問い合わせ先の不動産会社にメールまたはFAXにて転送されるためアットホーム(株)にも保管されます。アットホーム(株)で保管された個人情報の取り扱いについては、【こちら】をご覧ください。
また、本画面でご記入いただいた個人情報は、お問い合わせ先の不動産会社でも保管します。 お問い合わせ先の不動産会社が保管する個人情報の取り扱いについては、不動産会社に直接お問い合わせください。
東京都知事免許(1)第109182号 |
|---|
- 交通:
- JR山手線/恵比寿駅 徒歩3分
- 東京都渋谷区恵比寿4丁目17-3 カゲオカビルディング
- TEL:
- 0120-134-800
- 所属団体:
- (公社)全日本不動産協会会員(公社)首都圏不動産公正取引協議会加盟
取引態様:一般媒介  - 00281206
|
- スマートフォンで
この不動産会社を見る

|
- 提携サイト等より掲載されている物件情報につきましては、不動産会社詳細情報にリンクされていないものがあります。
- 物件に関するお問合せは、物件詳細ページの「情報提供会社」に表示されている不動産会社へ直接お願いいたします。
- 間取図は、現況を優先させていただきます。
- 映像は物件の一部を撮影したものです。物件の契約にあたっての最終判断はご自身の判断に基づいて行ってください。
- 仲介手数料について

アットホームは物件情報の適正化に努めております。
内容に誤りがある場合にはこちらへご連絡ください。