埼玉県川口市東川口6丁目(東川口駅)の中古マンション・新築マンション・分譲マンション:物件詳細
				
					
					
				
																
		
		
			
				| 交通 所在地
 | 駅徒歩 | 価格 | 構造 階建/階
 | 間取り 専有面積
 | 物件種目 築年月
 | 
		
		
			
				
				| JR武蔵野線/東川口
										 埼玉県川口市東川口6丁目 | 
					14分
 | 
					3,980万円
					 | RC 5階建 / 4階 | 4LDK 
				78.94m²
				 | 中古マンション 2010年1月(築15年10ヶ月)
																	 | 
						
				|  ペット相談、南向き、管理人巡回
 | 
								
		
				
			
		
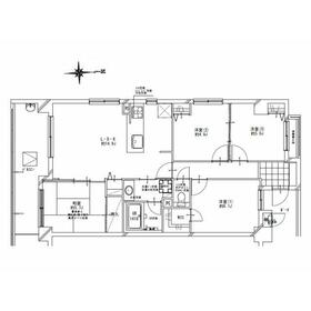
					| 間取図 | 外観 | 
		
		| 
				
										<
										
						>
							 その他の画像 | 
				
		|  | 
		
		
	 
					
		
			
			
	          | 交通 | JR武蔵野線 東川口駅 徒歩14分 | 
|---|
| その他の交通 | 埼玉高速鉄道 東川口駅 徒歩14分 埼玉高速鉄道 戸塚安行駅 徒歩33分 | 
|---|
		
			| 所在地 | 埼玉県川口市東川口6丁目 | 
		
		
			
				| 物件種目 | 中古マンション | 
			
				| 価格 | 3,980万円 | 平米単価 | 50.42万円 | 
			
				| 管理費等 | 12,600円 | 修繕積立金 | 20,530円 | 
			
				| 借地期間・地代(月額) | - | 権利金 | - | 
			
				| 敷金または保証金 | - / - | 維持費等 | - | 
			
				| その他一時金 | なし |  |  | 
					
		
			
				| 間取り | 4LDK(LDK14.9、和5.7、洋6.1、4.9、5) | 専有面積 | 78.94m²(壁芯) | 
			
				| 階建 / 階 | 5階建 / 4階 | バルコニー | 11.30m² | 
			
				| 築年月 | 2010年1月(築15年10ヶ月) | 建物構造 | RC | 
			
				| 駐車場 | 空無 | 総戸数 | 29戸 | 
			
				| 駐輪場 | - | バイク置き場 | - | 
			
				| ペット | 相談 |  |  | 
			
				| 土地権利 | 所有権 | 敷地面積 | - | 
			
				| 管理形態/管理員の勤務形態 | 全部委託/巡回 | 国土法届出 | - | 
			
	| アピールポイント | ■埼玉相互住宅(株) 越谷店はここがつよい! 
 【地域密着50年以上】
 越谷市出身・在籍のスタッフも多いので、
 越谷市と近隣の草加市、春日部市、吉川市、
 八潮市、松伏町、東川口・浦和美園エリアのことなら、
 私たちにお任せください!
 
 【住宅ローンに強い】
 専門スタッフもいますので安心してご相談ください。
 
 【取り扱い物件が豊富】
 数ある物件の中からお客様のご要望に沿った物件を
 ご提案させて頂きます!
 
 ◇◆ 仲介手数料無料 ◆◇
 埼玉相互住宅では越谷市・川口市・草加市・八潮市・春日部市・松伏町・吉川市の新築購入仲介手数料が無料です。他社取り扱い新築物件も対象となりますので、お気軽にお問合せください。(物件により取り扱いできない物件もございますのでご了承ください)
 
 ◇◆ ホットハート紹介制度実施中 ◆◇
 お知り合いの方を新たにご紹介いただき、ご契約になりますと素敵な特典を差し上げます。 ご紹介者様には10万円(当社規定によります)、ご契約者様にはダイソンサイクロン掃除機等をプレゼント (特典は当社一定基準を設けております。詳しくはお問い合わせください)
 
 | 
			
				| 建物名・部屋番号 | ルネサンス東川口プレリア | 
			
				| リフォーム履歴 | ■水回り:2025年7月 キッチン、浴室、トイレ
 ■内装:2025年7月
 床(フローリング等)、壁・天井(クロス・塗装等)
 ハウスクリーニング等
 ■その他:2025年7月
 内装(キッチン 浴室 トイレ 壁 床 全室 ハウスクリーニング等)
 ※実施年月は最も古い履歴を表示
 | 
			
				| リノベーション履歴 | - | 
			
				| 瑕疵保証 | - | 
			
				| 瑕疵保険 | - | 
			
				| 評価・証明書 | - | 
			
				| 備考 | 
																	主要採光面:南向き
											用途地域:1種住居
 | 
		
				
		
		| エネルギー消費性能 | - | 
	
		| 断熱性能 | - | 
	
		| 目安光熱費 | - | 
	
		
									
				| バス・トイレ | 浴室乾燥機、オートバス、追焚機能、シャワー付洗面化粧台、温水洗浄便座 | 
						
				| キッチン | カウンターキッチン、システムキッチン | 
						
				| 設備・サービス | 全居室収納、ウォークインクローゼット、収納スペース、室内洗濯機置場、クローゼット、洗濯機置場、給湯、全居室フローリング、ワイドバルコニー | 
						
				| その他 | - | 
					
		
			
				| 条件等 | - | 現況 | 空家 | 
			
				| 引渡可能時期 | 相談 | 物件番号 | 1130077308 | 
						
				| 情報公開日 | 2025年6月7日 | 次回更新予定日 | 2025年11月1日 | 
						
				| ケータイ用バーコード | 
				
				
				
					スマートフォンでこの物件を見るスマートフォンからもこの物件をご覧になれます。 | 
					
		 
	 									※「-」と表示されている項目については、情報提供会社にご確認ください。
						
	
			
			
			
				
					
						
							| 周辺施設 | 戸塚北小学校 | 
						
							| 距離 | 1130m | 写真を見る | 
					
				
			 
		 
					
			
				
					
						
							| 周辺施設 | 戸塚中学校 | 
						
							| 距離 | 1670m | 写真を見る | 
					
				
			 
		 
		 
		 									
												
					
					  ここから簡単にお問い合わせをすることができます。
(SSLでの暗号化での送信を希望されるお客さまは
													こちら
												よりお問い合わせください)
					
					
						
						
					
					お問い合わせを行う前に
「個人情報の取り扱いについて」を必ずお読みください。
「個人情報の取り扱いについて」に同意いただいた場合は「上記にご同意の上 確認画面へ進む」のボタンをクリックしてください。 
						個人情報の取り扱いについて
						皆さまが送付された個人情報はアットホーム(株)のサーバを経由し、お問い合わせ先の不動産会社にメールまたはFAXにて転送されるためアットホーム(株)にも保管されます。アットホーム(株)で保管された個人情報の取り扱いについては、【こちら】をご覧ください。
						また、本画面でご記入いただいた個人情報は、お問い合わせ先の不動産会社でも保管します。 お問い合わせ先の不動産会社が保管する個人情報の取り扱いについては、不動産会社に直接お問い合わせください。
					 
					 
					
														
				  
				  
					| 埼玉県知事免許(14)第6157号 | 
|---|
| 交通:東武伊勢崎線/越谷駅 徒歩7分埼玉県越谷市元柳田町6-62 TEL:048-960-6880FAX:048-960-6890所属団体:(公社)埼玉県宅地建物取引業協会会員(公社)首都圏不動産公正取引協議会加盟
 取引態様:媒介 00015868
 | 
							  
								スマートフォンでこの不動産会社を見る
 | 
					  
					 
				 
							
						
												
			
					
- 提携サイト等より掲載されている物件情報につきましては、不動産会社詳細情報にリンクされていないものがあります。
- 物件に関するお問合せは、物件詳細ページの「情報提供会社」に表示されている不動産会社へ直接お願いいたします。
- 間取図は、現況を優先させていただきます。
- 映像は物件の一部を撮影したものです。物件の契約にあたっての最終判断はご自身の判断に基づいて行ってください。
- 仲介手数料について 
アットホームは物件情報の適正化に努めております。
内容に誤りがある場合にはこちらへご連絡ください。