神奈川県茅ヶ崎市今宿(茅ケ崎駅)の中古マンション・新築マンション・分譲マンション:物件詳細
交通 所在地 |
駅徒歩 |
価格 |
構造 階建/階 |
間取り 専有面積 |
物件種目 築年月 |
|
JR相模線/茅ケ崎
神奈川県茅ヶ崎市今宿
|
38分
|
2,599万円
|
RC
11階建 / 1階
|
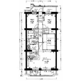
3LDK
86.70m²
|
中古マンション
1989年4月(築36年11ヶ月)
|
|
管理人日勤
|
|
間取図
間取図
|
外観
外観
|
<
その他の画像
>
|
| 交通 | JR相模線 茅ケ崎駅 徒歩38分 |
|---|
| その他の交通 | JR相模線 茅ケ崎駅 【バス】 10分 今宿 停歩5分 JR東海道本線 平塚駅 【バス】 9分 今宿 停歩5分 |
| 所在地 |
神奈川県茅ヶ崎市今宿
|
| 物件種目 |
中古マンション |
| 価格 |
2,599万円 |
平米単価 |
29.98万円 |
| 管理費等 |
7,000円 |
修繕積立金 |
17,090円 |
| 借地期間・地代(月額) |
- |
権利金 |
- |
| 敷金または保証金 |
- / - |
維持費等 |
町会費:200円/月、専用庭使用料:400円/月 |
| その他一時金 |
なし |
|
|
| 間取り |
3LDK |
専有面積 |
86.70m²(壁芯) |
| 階建 / 階 |
11階建 / 1階 |
バルコニー |
- |
| 築年月 |
1989年4月(築36年11ヶ月)
|
建物構造 |
RC |
| 駐車場 |
- |
総戸数 |
- |
| 駐輪場 |
- |
バイク置き場 |
- |
| ペット |
-
|
|
|
| 土地権利 |
所有権 |
敷地面積 |
- |
| 管理形態/管理員の勤務形態 |
全部委託/日勤 |
国土法届出 |
- |
| アピールポイント |
フルリフォームの完了は2025年12月を予定しております。
2025年10月末までの期間であれば、
カラーセレクトやリフォーム内容のご希望を承ることが可能です。
どうぞお気軽にご相談くださいませ。
≪資料請求等≫
当ページ内『資料請求』『見学予約』からお気軽にお問い合わせください。
Tel 0120-46-2103 がお手軽・便利です。
◇貴重なお時間の中でご希望の情報をご提供します◇
やはり「一生に一度の買い物」と言われるほど、金額の大きい買い物なので漠然とした不安がついてきます。
まずは一緒に不安の正体を見つけ、1つずつ解消しましょう。
どんなことでもお気軽にご相談ください。 |
| 建物名・部屋番号 |
コスモ茅ヶ崎プレシオ |
| リフォーム履歴 |
- |
| リノベーション履歴 |
- |
| 瑕疵保証 |
- |
| 瑕疵保険 |
- |
| 評価・証明書 |
- |
| 備考 |
主要採光面:南西向き
用途地域:1種住居
階段なし、エレベーター待ちなし。足音を気にせず、のびのび暮らす1階の贅沢。
|
| エネルギー消費性能 |
- |
| 断熱性能 |
- |
| 目安光熱費 |
- |
| バス・トイレ |
- |
| キッチン |
- |
| 設備・サービス |
- |
| その他 |
- |
| 条件等 |
- |
現況 |
空家 |
| 引渡可能時期 |
相談 |
物件番号 |
1130699417 |
| 情報公開日 |
2025年10月20日 |
次回更新予定日 |
2026年2月18日 |
| ケータイ用バーコード |
- スマートフォンでこの物件を見る
- スマートフォンからもこの物件をご覧になれます。
|
※「-」と表示されている項目については、情報提供会社にご確認ください。
| 周辺施設 |
茅ヶ崎駅(JR東日本 東海道本線) |
| 距離 |
2830m |
写真を見る |
| 周辺施設 |
茅ヶ崎市立今宿小学校 |
| 距離 |
410m |
写真を見る |
| 周辺施設 |
茅ヶ崎市立萩園中学校 |
| 距離 |
1380m |
写真を見る |
| 周辺施設 |
Fuji鶴嶺店 |
| 距離 |
1000m |
写真を見る |
| 周辺施設 |
ユーコープ萩園店 |
| 距離 |
1170m |
写真を見る |
| 周辺施設 |
茅ヶ崎みなもと幼稚園 |
| 距離 |
990m |
写真を見る |
| 周辺施設 |
うーたん保育園 |
| 距離 |
1100m |
写真を見る |
| 周辺施設 |
康心会茅ヶ崎中央病院 |
| 距離 |
2630m |
写真を見る |
ここから簡単にお問い合わせをすることができます。
(SSLでの暗号化での送信を希望されるお客さまは
こちら
よりお問い合わせください)
お問い合わせを行う前に
「個人情報の取り扱いについて」を必ずお読みください。
「個人情報の取り扱いについて」に同意いただいた場合は「上記にご同意の上 確認画面へ進む」のボタンをクリックしてください。
個人情報の取り扱いについて
皆さまが送付された個人情報はアットホーム(株)のサーバを経由し、お問い合わせ先の不動産会社にメールまたはFAXにて転送されるためアットホーム(株)にも保管されます。アットホーム(株)で保管された個人情報の取り扱いについては、【こちら】をご覧ください。
また、本画面でご記入いただいた個人情報は、お問い合わせ先の不動産会社でも保管します。 お問い合わせ先の不動産会社が保管する個人情報の取り扱いについては、不動産会社に直接お問い合わせください。
神奈川県知事免許(1)第32218号 |
|---|
- 交通:
- 江ノ島電鉄線/腰越駅 徒歩3分
- 神奈川県鎌倉市腰越3丁目3-7 OceanTerrace1F
- TEL:
- 0467-28-5566
- FAX:
- 0467-28-5567
- 所属団体:
- (公社)全日本不動産協会会員(公社)首都圏不動産公正取引協議会加盟
取引態様:専任媒介  - 00276510
|
- スマートフォンで
この不動産会社を見る

|
- 提携サイト等より掲載されている物件情報につきましては、不動産会社詳細情報にリンクされていないものがあります。
- 物件に関するお問合せは、物件詳細ページの「情報提供会社」に表示されている不動産会社へ直接お願いいたします。
- 間取図は、現況を優先させていただきます。
- 映像は物件の一部を撮影したものです。物件の契約にあたっての最終判断はご自身の判断に基づいて行ってください。
- 仲介手数料について

アットホームは物件情報の適正化に努めております。
内容に誤りがある場合にはこちらへご連絡ください。