神奈川県横浜市西区みなとみらい5丁目(みなとみらい駅)の中古マンション・新築マンション・分譲マンション:物件詳細
交通 所在地 |
駅徒歩 |
価格 |
構造 階建/階 |
間取り 専有面積 |
物件種目 築年月 |
|
横浜高速鉄道みなとみらい線/みなとみらい
神奈川県横浜市西区みなとみらい5丁目
|
6分
|
13,980万円
|
RC
地上30階地下1階建 / 17階
|
2LDK
64.15m²
|
中古マンション
2007年8月(築18年5ヶ月)
|
|
ペット相談、角部屋、閑静な住宅街、オール電化、管理人日勤
|
|
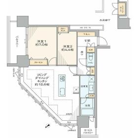
間取図
17階部分×角部屋のため明るく、開放感のある2LDKの住まいです。
|
リビング
南向きで陽当たり良好、パノラマビューがお楽しみいただける開放感あふれるリビングダイニングです。
|
<
その他の画像
>
|
|
|
| 交通 | 横浜高速鉄道みなとみらい線 みなとみらい駅 徒歩6分 |
|---|
| その他の交通 | ブルーライン 高島町駅 徒歩13分 東急東横線 横浜駅 徒歩18分 |
| 所在地 |
神奈川県横浜市西区みなとみらい5丁目
|
| 物件種目 |
中古マンション |
| 価格 |
13,980万円 |
平米単価 |
217.93万円 |
| 管理費等 |
20,600円 |
修繕積立金 |
20,850円 |
| 借地期間・地代(月額) |
- |
権利金 |
- |
| 敷金または保証金 |
- / - |
維持費等 |
インターネット(定額料金):880円/月、住宅地域冷暖房基本料:5,230円/月 |
| その他一時金 |
なし |
|
|
| 間取り |
2LDK(LDK15.6帖 洋室7.0帖 洋室4.4帖) |
専有面積 |
64.15m²(壁芯) |
| 階建 / 階 |
地上30階地下1階建 / 17階 |
バルコニー |
8.65m² |
| 築年月 |
2007年8月(築18年5ヶ月)
|
建物構造 |
RC |
| 駐車場 |
有 30,000円/月 |
総戸数 |
555戸 |
| 駐輪場 |
有 300円/月 |
バイク置き場 |
無 |
| ペット |
相談 |
|
|
| 土地権利 |
所有権 |
敷地面積 |
- |
| 管理形態/管理員の勤務形態 |
全部委託/日勤 |
国土法届出 |
- |
| アピールポイント |
~当社売主~空室・見学予約受付中!
弊社リノベーション物件(リノコレ)になります。
アフターサービス付きなので、安心してご入居いただけます。
【 物件特徴 】
■ 室内新規リノベーション済
□ 2024年共用部大規模修繕工事実施
■ 2匹までペット飼育可(規約有)
□ 洗練された都市景観と、海や公園の自然が融合したエリア
■ アイランドキッチン採用
□ ラウンジ・ライブラリー・ゲストルームなど充実の共用設備
■ 各居室に収納場所あり
□ LDに床暖房マットを新規設置済み
■ 浴室に窓あり
□ 『みなとみらい』駅まで徒歩6分で交通面の利便性良好◎
~リノベーションならDaigasグループのグローバルベイスへ~
リノベーションマンション累計5000戸の供給実績!
多くの物件調達・リノベーション実績で培ったノウハウをもとに、お客さまの理想の暮らしにあった物件をご紹介いたします。
グローバルベイスは、持続可能な社会を実現するために進化を続けるDaigasグループの一員です。
※駐車場等の空き状況は変化することがございますのであらかじめご了承ください。 |
| 建物名・部屋番号 |
Brillia Grandeみなとみらいパークフロントタワー 1701 |
| リフォーム履歴 |
■水回り:2025年11月 キッチン、浴室、トイレ、洗面所 ■内装:2025年11月 全室クロス張替え、床(フローリング等)、壁・天井(クロス・塗装等)、建具(室内ドア等) その他実施個所:LDに床暖房マット新規設置 ※実施年月は最も古い履歴を表示 |
| リノベーション履歴 |
2025年11月 フローリング、壁・天井クロス新規貼替、建具・玄関収納等、洗面化粧台、トイレ、ユニットバス、システムキッチン新規交換、照明器具新規設置、LDに床暖房マット新規設置、等 ※実施年月は最も古い履歴を表示 |
| 瑕疵保証 |
瑕疵保証(不動産会社独自)利用可 |
| 瑕疵保険 |
- |
| 評価・証明書 |
- |
| 備考 |
主要採光面:北東向き
施工会社:五洋建設(株)
用途地域:商業地域
修繕・点検の記録あり
|
| エネルギー消費性能 |
- |
| 断熱性能 |
- |
| 目安光熱費 |
- |
| バス・トイレ |
浴室暖房、浴室乾燥機、オートバス、追焚機能、温水洗浄便座、浴室に窓あり |
| キッチン |
アイランドキッチン、オープンキッチン、システムキッチン、浄水器、ディスポーザー、IHクッキングヒーター、3口以上コンロ |
| 設備・サービス |
モニター付オートロック、全居室収納、床暖房、収納スペース、室内洗濯機置場、クローゼット、オートロック、モニター付インターホン、給湯、全居室フローリング、エアコン、暖房、冷房、駐輪場、ダウンライト、照明器具、インターネット対応、ケーブルTV、BS端子 |
| その他 |
宅配BOX、共用ゲストルーム、共用パーティルーム、内廊下、エレベーター |
| 条件等 |
- |
現況 |
空家 |
| 引渡可能時期 |
即時 |
物件番号 |
1131088717 |
| 情報公開日 |
2025年11月3日 |
次回更新予定日 |
2025年12月20日 |
| ケータイ用バーコード |
- スマートフォンでこの物件を見る
- スマートフォンからもこの物件をご覧になれます。
|
※「-」と表示されている項目については、情報提供会社にご確認ください。
| 周辺施設 |
まいばすけっとみなとみらい店 |
| 距離 |
1m |
| 周辺施設 |
セブンイレブン横浜みなとみらい6丁目店 |
| 距離 |
260m |
| 周辺施設 |
ハックドラッグ横浜メディアタワー店 |
| 距離 |
450m |
| 周辺施設 |
キッズパートナーみなとみらい |
| 距離 |
340m |
| 周辺施設 |
横浜市立みなとみらい本町小学校 |
| 距離 |
800m |
| 周辺施設 |
横浜市立横浜吉田中学校 |
| 距離 |
2630m |
写真を見る |
ここから簡単にお問い合わせをすることができます。
(SSLでの暗号化での送信を希望されるお客さまは
こちら
よりお問い合わせください)
お問い合わせを行う前に
「個人情報の取り扱いについて」を必ずお読みください。
「個人情報の取り扱いについて」に同意いただいた場合は「上記にご同意の上 確認画面へ進む」のボタンをクリックしてください。
個人情報の取り扱いについて
皆さまが送付された個人情報はアットホーム(株)のサーバを経由し、お問い合わせ先の不動産会社にメールまたはFAXにて転送されるためアットホーム(株)にも保管されます。アットホーム(株)で保管された個人情報の取り扱いについては、【こちら】をご覧ください。
また、本画面でご記入いただいた個人情報は、お問い合わせ先の不動産会社でも保管します。 お問い合わせ先の不動産会社が保管する個人情報の取り扱いについては、不動産会社に直接お問い合わせください。
国土交通大臣免許(1)第9863号 |
|---|
- 交通:
- JR山手線/渋谷駅 徒歩3分
- 東京都渋谷区桜丘町3-2 渋谷サクラステージ SAKURAタワー6F
- TEL:
- 03-6416-5917
- FAX:
- 03-6455-0290
- 所属団体:
- (公社)全日本不動産協会会員(公社)首都圏不動産公正取引協議会加盟
取引態様:売主  - 00068922
|
- スマートフォンで
この不動産会社を見る

|
- 提携サイト等より掲載されている物件情報につきましては、不動産会社詳細情報にリンクされていないものがあります。
- 物件に関するお問合せは、物件詳細ページの「情報提供会社」に表示されている不動産会社へ直接お願いいたします。
- 間取図は、現況を優先させていただきます。
- 映像は物件の一部を撮影したものです。物件の契約にあたっての最終判断はご自身の判断に基づいて行ってください。
- 仲介手数料について

アットホームは物件情報の適正化に努めております。
内容に誤りがある場合にはこちらへご連絡ください。