東京都北区王子1丁目(王子駅)の中古マンション・新築マンション・分譲マンション:物件詳細
交通 所在地 |
駅徒歩 |
価格 |
構造 階建/階 |
間取り 専有面積 |
物件種目 築年月 |
|
JR京浜東北線/王子
東京都北区王子1丁目
|
6分
|
4,799万円
|
SRC・RC
10階建 / 8階
|
2LDK
59.52m²
|
中古マンション
1983年10月(築42年4ヶ月)
|
|
外観タイル張り、管理人巡回
|
|
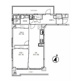
間取図
両面バルコニーに面した開放感たっぷりの2LDK。食洗機などの嬉しい設備も充実しております。
|
外観
JR京浜東北・根岸線「王子」駅まで徒歩6分の好立地。
|
<
その他の画像
>
|
| 交通 | JR京浜東北線 王子駅 徒歩6分 |
|---|
| その他の交通 | 東京メトロ南北線 王子駅 徒歩5分 都電荒川線 王子駅前駅 徒歩5分 |
| 所在地 |
東京都北区王子1丁目
|
| 物件種目 |
中古マンション |
| 価格 |
4,799万円 |
平米単価 |
80.63万円 |
| 管理費等 |
20,240円 |
修繕積立金 |
22,800円 |
| 借地期間・地代(月額) |
- |
権利金 |
- |
| 敷金または保証金 |
- / - |
維持費等 |
- |
| その他一時金 |
なし |
|
|
| 間取り |
2LDK(LDK12.6帖 洋室6.1帖 洋室5.1帖) |
専有面積 |
59.52m² |
| 階建 / 階 |
10階建 / 8階 |
バルコニー |
6.36m² |
| 築年月 |
1983年10月(築42年4ヶ月)
|
建物構造 |
SRC・RC |
| 駐車場 |
無 |
総戸数 |
40戸 |
| 駐輪場 |
有 |
バイク置き場 |
無 |
| ペット |
-
|
|
|
| 土地権利 |
所有権 |
敷地面積 |
- |
| 管理形態/管理員の勤務形態 |
全部委託/巡回 |
国土法届出 |
- |
| アピールポイント |
◆南東向き×両面バルコニーで陽当り・通風良好
◆JR京浜東北・根岸線「王子」駅徒歩6分
◆オートロック・宅配ボックス完備
◆2025年11月内装リフォーム
≪おすすめポイント≫
◇複数路線利用可能で通勤通学のアクセスもスムーズ
◇スーパー、コンビニ、薬局が徒歩3分圏内で利便性良好
◇小中学校まで徒歩7分なのでお子様の通学も安心◎
◇桜の名所「飛鳥山公園」徒歩7分、自然を感じる住環境
◇時短家事に大助かりのビルトイン食洗機付システムキッチン
◇各所に収納を設けており荷物もすっきり片付きます♪
【リフォーム内容】
■システムキッチン新規交換(食洗機対応)
■洗濯パン新規交換
■洗面化粧台新規交換
■UB新規交換
■フローリング新規張替
■建具新規交換
■クロス全室新規貼替
■給湯器新規交換
■トイレ新規交換
■照明機器新規交換
■下足入れ交換 |
| 建物名・部屋番号 |
ライオンズマンション飛鳥山 803 |
| リフォーム履歴 |
■水回り:2025年11月 キッチン、浴室、トイレ、洗面所、給湯器 ■内装:2025年11月 内装全面(床・壁・天井・建具) その他実施個所:照明機器新規交換他 ※実施年月は最も古い履歴を表示 |
| リノベーション履歴 |
- |
| 瑕疵保証 |
- |
| 瑕疵保険 |
- |
| 評価・証明書 |
- |
| 備考 |
主要採光面:南東向き
施工会社:株式会社サカエ産業
用途地域:商業地域
ルーフバルコニー面積:9.66m2
|
| エネルギー消費性能 |
- |
| 断熱性能 |
- |
| 目安光熱費 |
- |
| バス・トイレ |
オートバス |
| キッチン |
システムキッチン、食器洗浄乾燥機、食器乾燥機、3口以上コンロ、グリル |
| 設備・サービス |
全居室収納、収納スペース、室内洗濯機置場、クローゼット、オートロック、給湯、可動間仕切り、ルーフバルコニー、駐輪場、照明器具 |
| その他 |
宅配BOX |
| 条件等 |
- |
現況 |
空家 |
| 引渡可能時期 |
相談 |
物件番号 |
1131093517 |
| 情報公開日 |
2025年11月3日 |
次回更新予定日 |
2026年1月18日 |
| ケータイ用バーコード |
- スマートフォンでこの物件を見る
- スマートフォンからもこの物件をご覧になれます。
|
※「-」と表示されている項目については、情報提供会社にご確認ください。
| 周辺施設 |
サンスクエア |
| 距離 |
410m |
写真を見る |
| 周辺施設 |
ヨークフーズ王子店 |
| 距離 |
110m |
写真を見る |
| 周辺施設 |
ファミリーマート王子明治通り店 |
| 距離 |
140m |
写真を見る |
| 周辺施設 |
マツモトキヨシ王子店 |
| 距離 |
180m |
写真を見る |
| 周辺施設 |
ホームセンターコーナン王子堀船店 |
| 距離 |
740m |
写真を見る |
| 周辺施設 |
あい保育園王子 |
| 距離 |
60m |
写真を見る |
| 周辺施設 |
北区立柳田小学校 |
| 距離 |
470m |
写真を見る |
| 周辺施設 |
北区立王子桜中学校 |
| 距離 |
540m |
写真を見る |
ここから簡単にお問い合わせをすることができます。
(SSLでの暗号化での送信を希望されるお客さまは
こちら
よりお問い合わせください)
お問い合わせを行う前に
「個人情報の取り扱いについて」を必ずお読みください。
「個人情報の取り扱いについて」に同意いただいた場合は「上記にご同意の上 確認画面へ進む」のボタンをクリックしてください。
個人情報の取り扱いについて
皆さまが送付された個人情報はアットホーム(株)のサーバを経由し、お問い合わせ先の不動産会社にメールまたはFAXにて転送されるためアットホーム(株)にも保管されます。アットホーム(株)で保管された個人情報の取り扱いについては、【こちら】をご覧ください。
また、本画面でご記入いただいた個人情報は、お問い合わせ先の不動産会社でも保管します。 お問い合わせ先の不動産会社が保管する個人情報の取り扱いについては、不動産会社に直接お問い合わせください。
国土交通大臣免許(2)第8967号 |
|---|
- 交通:
- JR千代田・常磐緩行線/北千住駅 徒歩3分
- 東京都足立区千住3丁目66ー2 目々澤第一ビル1階
- TEL:
- 0120-770-227
- FAX:
- 03-6812-0224
- 所属団体:
- (一社)不動産流通経営協会会員(公社)全日本不動産協会会員(一社)全国住宅産業協会会員(公社)首都圏不動産公正取引協議会加盟
取引態様:媒介  - 00278429
|
- スマートフォンで
この不動産会社を見る

|
- 提携サイト等より掲載されている物件情報につきましては、不動産会社詳細情報にリンクされていないものがあります。
- 物件に関するお問合せは、物件詳細ページの「情報提供会社」に表示されている不動産会社へ直接お願いいたします。
- 間取図は、現況を優先させていただきます。
- 映像は物件の一部を撮影したものです。物件の契約にあたっての最終判断はご自身の判断に基づいて行ってください。
- 仲介手数料について

アットホームは物件情報の適正化に努めております。
内容に誤りがある場合にはこちらへご連絡ください。