不動産 賃貸 マンション等の住宅情報:埼玉住まい情報


福岡県久留米市諏訪野町(西鉄久留米駅)の中古マンション・新築マンション・分譲マンション:物件詳細

  • 物件詳細
  • 情報の見方
  • 印刷用画面
交通
所在地
駅徒歩 価格 構造
階建/階
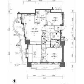
間取り
専有面積
物件種目
築年月

西鉄天神大牟田線/西鉄久留米

福岡県久留米市諏訪野町

8分

1,450万円

SRC

15階建 / 8階

3LDK

68.71m²

中古マンション

1995年7月(築30年4ヶ月)

おすすめPOINTペット相談、角部屋、管理人日勤

おすすめコメント  スタッフ: 眞戸原 洋文

2018年に大幅リフォーム済!キッチン・トイレ・洗面台・浴室等水回り交換。フロアやクロス張替も行っております。眺望良好・角部屋・2面バルコニーのお部屋です。管理組合にて見学の時間帯に制限があり。

間取図

間取図

間取図

リビング

リビング

風通り、眺望良好です。フロアやクロス等も2018年に新調されており室内の状態も良く、そのままでもお…

<
その他の画像
  • リビング
  • 外観
  • キッチン
  • 洗面
  • リビング
  • バス/シャワー
  • トイレ
  • 収納
  • 室内
  • 玄関
  • 室内
  • 室内
  • 室内
  • キッチン
  • キッチン
  • キッチン
  • その他
  • その他
  • キッチン
  • 収納
  • 外観
  • キッチン
  • 室内
  • バルコニー
  • バルコニー
  • エントランス
  • 室内
  • 洗面
>
    • とりあえず保存
    • お問い合わせ
    交通

    西鉄天神大牟田線 西鉄久留米駅 徒歩8分

    その他の交通

    西鉄天神大牟田線 櫛原駅 徒歩14分

    JR久大本線 南久留米駅 徒歩15分

    所在地 福岡県久留米市諏訪野町
    物件種目 中古マンション
    価格 1,450万円 平米単価 21.11万円
    管理費等 7,800円 修繕積立金 15,600円
    借地期間・地代(月額) 権利金
    敷金または保証金 - / - 維持費等 町会費:400円/月
    その他一時金 なし    
    間取り 3LDK(LDK15.8帖 洋室6.0帖 洋室5.0帖 和室6.0帖) 専有面積 68.71m²
    階建 / 階 15階建 / 8階 バルコニー 20.23m²
    築年月 1995年7月(築30年4ヶ月) 建物構造 SRC
    駐車場 空無 総戸数 79戸
    駐輪場 バイク置き場
    ペット 相談    
    土地権利 所有権 敷地面積
    管理形態/管理員の勤務形態 全部委託/日勤 国土法届出
    アピールポイント 物件詳細、住宅ローン等お気軽にお問合せ下さい。
    下記の支払い例をご参照下さい。家賃と支払いと比べてみて下さい♪
    1450万借入 35年払 金利1.125% 月々41781円~

    ■角部屋、2面バルコニーで開放感があります。
    ■2018年に大幅リフォーム済。水回り交換(キッチン、トイレ、洗面台、浴室)クロス張替、フロア張替
    ■ペット飼育可

    ※2026年1月より修繕積立金額が月額21,400円へ変更

    住宅購入に関して、ご不明な点等はお気軽にご相談下さい。
    住宅ローンに関しては、無理が無い返済プランをご提案させていただきます。
    建物名・部屋番号 アーサー久留米エクシオII
    リフォーム履歴 ■水回り:2018年2月
    キッチン、浴室、トイレ、洗面所
    ■内装:2018年2月
    全室クロス張替え、床(フローリング等)
    ※実施年月は最も古い履歴を表示
    リノベーション履歴
    瑕疵保証
    瑕疵保険
    評価・証明書
    備考
    主要採光面:北東向き
    用途地域:商業地域
    2026年1月より修繕積立金額
    月額21,400円へ変更
    エネルギー消費性能
    断熱性能
    目安光熱費
    バス・トイレ 浴室暖房、浴室乾燥機、シャワー付洗面化粧台、温水洗浄便座、浴室に窓あり
    キッチン カウンターキッチン、システムキッチン、食器洗浄乾燥機、IHクッキングヒーター
    設備・サービス モニター付オートロック、バイク置き場、オートロック、給湯、都市ガス、二面バルコニー、駐輪場、ケーブルTV
    その他 宅配BOX、エレベーター
    条件等 現況 空家
    引渡可能時期 相談 物件番号 1132591210
    仲介手数料 売買代金の3%+6万円    
    情報公開日 2025年5月10日 次回更新予定日 2025年10月26日
    ケータイ用バーコード

    QRコード

    スマートフォンでこの物件を見る
    スマートフォンからもこの物件をご覧になれます。
    ※「-」と表示されている項目については、情報提供会社にご確認ください。

    この物件の周辺情報

    周辺施設 久留米市立西国分小学校
    距離 1100m
    周辺施設 久留米市立諏訪中学校
    距離 890m
    周辺施設 認定こども園久留米天使こども園
    距離 750m
    周辺施設 久留米税務署
    距離 730m
    周辺施設 岩田屋久留米店本館
    距離 560m
    周辺施設 リベール
    距離 610m
    周辺施設 マルキョウ野中店
    距離 360m
    周辺施設 セブンイレブン久留米中央店
    距離 390m

    クイックお問い合わせ

    ここから簡単にお問い合わせをすることができます。
    (SSLでの暗号化での送信を希望されるお客さまは こちら よりお問い合わせください)

    お問い合わせ内容(必須)
    お名前(必須) 姓  名 
    メールアドレス(必須)
    ※携帯電話のメールアドレスをご入力される方はこちらをご確認ください
    電話番号(必須)
    - -

    ※入力いただいた電話番号へSMSまたは音声でパスワードをご連絡します。

    携帯電話の番号をご入力の方へ

    携帯電話の番号をご入力の方へ
    確認画面にて送信ボタンをクリックするとSMSが携帯電話に届きます。
    そのSMSに記載のパスワード(認証番号)を入力し、お問い合わせを完了してください。
    尚、SMSの送信者番号は 0005 202 760 となります。
    これはアットホームの固定番号です。

    備考欄 希望条件、物件案内希望日、質問などがございましたらご記入ください。
    お問い合わせを行う前に「個人情報の取り扱いについて」を必ずお読みください。
    「個人情報の取り扱いについて」に同意いただいた場合は「上記にご同意の上 確認画面へ進む」のボタンをクリックしてください。

    個人情報の取り扱いについて

    皆さまが送付された個人情報はアットホーム(株)のサーバを経由し、お問い合わせ先の不動産会社にメールまたはFAXにて転送されるためアットホーム(株)にも保管されます。アットホーム(株)で保管された個人情報の取り扱いについては、【こちら】をご覧ください。
    また、本画面でご記入いただいた個人情報は、お問い合わせ先の不動産会社でも保管します。 お問い合わせ先の不動産会社が保管する個人情報の取り扱いについては、不動産会社に直接お問い合わせください。

    情報提供会社

    情報提供会社

    (株)東武住販 佐賀駅店

    国土交通大臣免許(7)第5407号

    交通:
    JR長崎本線/佐賀駅 徒歩4分
    佐賀県佐賀市駅南本町3-14 
    TEL:
    0952-20-2333
    FAX:
    0952-20-2335
    所属団体:
    (公社)佐賀県宅地建物取引業協会会員
    (一社)九州不動産公正取引協議会加盟

    取引態様:専任媒介

    • 会社情報
    • 80502007
    スマートフォンで
    この不動産会社を見る
    QRコード
    • とりあえず保存
    • お問い合わせ
    • 提携サイト等より掲載されている物件情報につきましては、不動産会社詳細情報にリンクされていないものがあります。
    • 物件に関するお問合せは、物件詳細ページの「情報提供会社」に表示されている不動産会社へ直接お願いいたします。
    • 間取図は、現況を優先させていただきます。
    • 映像は物件の一部を撮影したものです。物件の契約にあたっての最終判断はご自身の判断に基づいて行ってください。
    • 仲介手数料について仲介手数料

    アットホームは物件情報の適正化に努めております。 内容に誤りがある場合にはこちらへご連絡ください。

    【埼玉住まい情報】では、日本全国の物件から賃貸マンションや賃貸アパート・賃貸一戸建て等の賃貸住宅情報、新築マンション・分譲マンションや中古マンション等の売買マンション情報、新築一戸建てや中古一戸建てなどの戸建住宅、 土地など、総合的な不動産住宅情報検索サービスを提供致します。
    【埼玉住まい情報】から、選りすぐりの不動産物件を探してみましょう。

    【免責事項】
    このコーナーの運営はアットホーム株式会社(https://www.athome.co.jp/)が行っています。
    このコーナーに掲載している物件情報は、「アットホーム不動産情報ネットワーク」に加盟する不動産会社等(情報提供元)から提供されています。信頼性の高い情報提供が行えるよう、最大限の努力をしておりますが、その内容を保証するものではありません。 利用者のみなさまと各情報提供元との取引に起因する損害および情報が掲載されたことに起因する損害等については、株式会社イーシティ埼玉、およびアットホームは一切責任を負いません。
    各物件情報の内容や画像等はすべて現況を優先させていただきます。
    お取引等(お取引の準備、資金調達等を含みます)の際には、内容や契約条件等について、各情報提供元より十分な説明を受け、ご自身でご確認の上、判断してください。
    このコーナーへの物件情報のご掲載、その他不動産業務ソリューション等についての不動産会社様のお問合せはこちらからお願いいたします。

    物件画像: