愛知県名古屋市西区牛島町(名古屋駅)の中古マンション・新築マンション・分譲マンション:物件詳細
交通 所在地 |
駅徒歩 |
価格 |
構造 階建/階 |
間取り 専有面積 |
物件種目 築年月 |
JR中央線/名古屋
愛知県名古屋市西区牛島町
|
3分
|
2,450万円
|
RC
15階建 / 2階
|
1K
30.20m²
|
中古マンション
2022年5月(築3年6ヶ月)
|
ペット相談、楽器相談、角部屋、全室2面採光、2面採光、24時間換気システム、管理人日勤
|
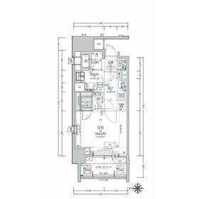
間取図
◇住みやすい間取り♪◇収納豊富♪
|
リビング
◇照明付き◇日当り良好でとても明るいリビング♪
|
<
その他の画像
>
|
交通 | JR中央線 名古屋駅 徒歩3分 |
---|
その他の交通 | 名古屋市東山線 亀島駅 徒歩4分 名古屋市桜通線 名古屋駅 徒歩3分 |
所在地 |
愛知県名古屋市西区牛島町
|
物件種目 |
中古マンション |
価格 |
2,450万円 |
平米単価 |
81.13万円 |
管理費等 |
6,460円 |
修繕積立金 |
3,020円 |
借地期間・地代(月額) |
- |
権利金 |
- |
敷金または保証金 |
- / - |
維持費等 |
自治会費:60円/月、固定費:880円/月 |
その他一時金 |
なし |
|
|
間取り |
1K(洋室8.2帖) |
専有面積 |
30.20m²(内法) |
階建 / 階 |
15階建 / 2階 |
バルコニー |
10.00m² |
築年月 |
2022年5月(築3年6ヶ月)
|
建物構造 |
RC |
駐車場 |
- |
総戸数 |
56戸 |
駐輪場 |
有 200円/月 |
バイク置き場 |
有 2,000円/年 |
ペット |
小型犬可・ 猫可・ 15kg体長60cm2匹 |
|
|
土地権利 |
所有権 |
敷地面積 |
- |
管理形態/管理員の勤務形態 |
全部委託/日勤 |
国土法届出 |
- |
アピールポイント |
~R4完成・「名古屋」駅より徒歩3分~
◇新築時~未入居
◇宅配ボックス付
◇ダストシューターサービス
◇ペット2匹まで飼育可(※飼育規制有)
◇ペット足洗い場有り
◇室内全水栓が浄水対応(オプション設備)
◇オートロック~玄関扉ハンズフリー仕様(オプション機能)
◇2階角部屋の為出入りの負担が最小限
◇モニター付きオートロック
◇モニタ付インターホン
◇インターネット全戸一括加入
◇業界トップクラスのインターネット通信環境導入(NURO光)
◇防音性◎気密性◎
◇玄関扉と室内全窓に防犯センサー
◇ALSOKと提携した24時間遠隔保安システム
◇非常時でも安心な管制運転装置付きエレベーター
◇高級感のある内廊下仕様。悪天候時やプライバシー保護にも効果的
◇レンタサイクル利用可
◇楽器演奏相談
◇全居室収納付き
◇洗面室にタオル等を収納できるリネン庫あり
◇地下鉄東山線「亀島」歩4分
◇名古屋駅が最寄り駅なので周辺環境も良好
◇ 空室物件・引渡しスムーズ
◇現オーナー様により定期的な室内管理がされており、室内状態は非常に良好な物件となっております |
建物名・部屋番号 |
オープンレジデンシア名古屋フロント |
リフォーム履歴 |
- |
リノベーション履歴 |
- |
瑕疵保証 |
- |
瑕疵保険 |
- |
評価・証明書 |
- |
備考 |
主要採光面:西向き
施工会社:丸彦渡辺建設株式会社
用途地域:商業地域
~R4完成・「名古屋」駅より徒歩3分~
◇新築時~未入居
◇オートロック・宅配ボックス付
◇シューズウォークイン・ウォークインクローゼット付
◇ペット2匹まで飼育可(※飼育規制有)
◇ペット足洗い場有り
◇室内全水栓が浄水対応(オプション設備)
◇オートロック~玄関扉ハンズフリー仕様(オプション機能)
◇2階角部屋の為出入りの負担が最小限
◇モニター付きオートロック
◇モニタ付インターホン
◇インターネット全戸一括加入
◇業界トップクラスのインターネット通信環境導入(NURO光)
◇防音性◎気密性◎
◇室内設備充実
◇ALSOKと提携した24時間遠隔保安システム
◇非常時でも安心な管制運転装置付きエレベーター
◇高級感のある内廊下仕様。悪天候時やプライバシー保護にも効果的
◇レンタサイクル利用可
◇楽器演奏相談
◇全居室収納付き
◇洗面室にタオル等を収納できるリネン庫あり
◇地下鉄東山線「亀島」歩4分
◇名古屋駅が最寄り駅なので周辺環境も良好
◇ 空室物件・引渡しスムーズ
◇現オーナー様により定期的な室内管理がされており、室内状態は非常
|
エネルギー消費性能 |
- |
断熱性能 |
- |
目安光熱費 |
- |
バス・トイレ |
浴室暖房、浴室乾燥機、オートバス、追焚機能、高温差湯式、シャワー付洗面化粧台、温水洗浄便座、浴室に窓あり |
キッチン |
システムキッチン、独立型キッチン、浄水器、2口コンロ |
設備・サービス |
モニター付オートロック、全居室収納、ウォークインクローゼット、バイク置き場、収納スペース、室内洗濯機置場、シューズインクローゼット、クローゼット、オートロック、モニター付インターホン、ディンプルキー、ダブルロックドア、防犯カメラ、給湯、全居室フローリング、アルコーブ、クッションフロア、都市ガス、エアコン、暖房、冷房、駐輪場、人感センサー付照明、ダウンライト、照明器具、火災警報器(報知機)、インターネット対応、光ファイバー、ケーブルTV、マルチメディアコンセント、複層ガラス |
その他 |
宅配BOX、内廊下、エレベーター |
条件等 |
- |
現況 |
空家 |
引渡可能時期 |
即時 |
物件番号 |
1133090610 |
仲介手数料 |
売買代金の3%+6万円 |
|
|
情報公開日 |
2025年10月2日 |
次回更新予定日 |
2025年10月30日 |
ケータイ用バーコード |
- スマートフォンでこの物件を見る
- スマートフォンからもこの物件をご覧になれます。
|
※「-」と表示されている項目については、情報提供会社にご確認ください。
周辺施設 |
ファミリーマート牛島町店 |
距離 |
65m |
写真を見る |
周辺施設 |
名古屋駅(名古屋市交通局 桜通線) |
距離 |
250m |
写真を見る |
周辺施設 |
マツモトキヨシ名駅中央郵便局前店 |
距離 |
450m |
写真を見る |
周辺施設 |
イオンスタイル名古屋則武 |
距離 |
550m |
写真を見る |
周辺施設 |
ノリタケの森 |
距離 |
550m |
写真を見る |
周辺施設 |
ミッドランドスクエア |
距離 |
1100m |
写真を見る |
周辺施設 |
イオンモールNagoya Noritake Garden |
距離 |
1130m |
写真を見る |
周辺施設 |
亀島駅(名古屋市交通局 東山線) |
距離 |
380m |
写真を見る |
ここから簡単にお問い合わせをすることができます。
(SSLでの暗号化での送信を希望されるお客さまは
こちら
よりお問い合わせください)
お問い合わせを行う前に
「個人情報の取り扱いについて」を必ずお読みください。
「個人情報の取り扱いについて」に同意いただいた場合は「上記にご同意の上 確認画面へ進む」のボタンをクリックしてください。
個人情報の取り扱いについて
皆さまが送付された個人情報はアットホーム(株)のサーバを経由し、お問い合わせ先の不動産会社にメールまたはFAXにて転送されるためアットホーム(株)にも保管されます。アットホーム(株)で保管された個人情報の取り扱いについては、【こちら】をご覧ください。
また、本画面でご記入いただいた個人情報は、お問い合わせ先の不動産会社でも保管します。 お問い合わせ先の不動産会社が保管する個人情報の取り扱いについては、不動産会社に直接お問い合わせください。
愛知県知事免許(2)第23441号 |
---|
- 交通:
- 名古屋市名城線/平安通駅 徒歩1分
- 愛知県名古屋市北区御成通1丁目1-3
- TEL:
- 052-325-4820
- FAX:
- 052-508-4331
- 所属団体:
- (公社)全日本不動産協会会員東海不動産公正取引協議会加盟
取引態様:専属専任媒介  - 40412053
|
- スマートフォンで
この不動産会社を見る

|
- 提携サイト等より掲載されている物件情報につきましては、不動産会社詳細情報にリンクされていないものがあります。
- 物件に関するお問合せは、物件詳細ページの「情報提供会社」に表示されている不動産会社へ直接お願いいたします。
- 間取図は、現況を優先させていただきます。
- 映像は物件の一部を撮影したものです。物件の契約にあたっての最終判断はご自身の判断に基づいて行ってください。
- 仲介手数料について

アットホームは物件情報の適正化に努めております。
内容に誤りがある場合にはこちらへご連絡ください。