埼玉県所沢市御幸町(所沢駅)の中古マンション・新築マンション・分譲マンション:物件詳細
				
					
					
				
																
		
		
			
				| 交通 所在地
 | 駅徒歩 | 価格 | 構造 階建/階
 | 間取り 専有面積
 | 物件種目 築年月
 | 
		
		
			
				
				| 西武池袋線/所沢
										 埼玉県所沢市御幸町 | 
					8分
 | 
					5,399万円
					 | RC 31階建 / 31階 | 2LDK 
				63.38m²
				 | 中古マンション 1997年2月(築28年10ヶ月)
																	 | 
						
				|  ペット相談、最上階、前面棟無、管理人日勤
 | 
								
		
				
			
		
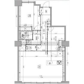
					| 間取図 間取り図 | 外観 五感で感じる、現地でしかわからない事も沢山ございます。 | 
		
		| 
				
										<
										
						>
							 その他の画像 | 
				
		
	 
					
		
			
			
	          | 交通 | 西武池袋線 所沢駅 徒歩8分 | 
|---|
| その他の交通 | 西武新宿線 所沢駅 徒歩8分 西武新宿線 航空公園駅 徒歩13分 | 
|---|
		
			| 所在地 | 埼玉県所沢市御幸町 | 
		
		
			
				| 物件種目 | 中古マンション | 
			
				| 価格 | 5,399万円 | 平米単価 | 85.19万円 | 
			
				| 管理費等 | 10,450円 | 修繕積立金 | 11,160円 | 
			
				| 借地期間・地代(月額) | - | 権利金 | - | 
			
				| 敷金または保証金 | - / - | 維持費等 | - | 
			
				| その他一時金 | - |  |  | 
					
		
			
				| 間取り | 2LDK | 専有面積 | 63.38m²(壁芯) | 
			
				| 階建 / 階 | 31階建 / 31階 | バルコニー | 9.36m² | 
			
				| 築年月 | 1997年2月(築28年10ヶ月) | 建物構造 | RC | 
			
				| 駐車場 | 有 23,000円/月 | 総戸数 | 300戸 | 
			
				| 駐輪場 | - | バイク置き場 | - | 
			
				| ペット | 相談 |  |  | 
			
				| 土地権利 | 所有権 | 敷地面積 | - | 
			
				| 管理形態/管理員の勤務形態 | 全部委託/日勤 | 国土法届出 | - | 
			
	| アピールポイント | ・南向き、最上階のお部屋、眺望良好 ・室内リフォーム物件
 ・タワーマンション
 
 こころとカラダに、うれしい暮らし。
 ◆◇ エステート白馬 所沢店 5課 ◇◆
 
 当日のご見学も随時承っております。
 | 
			
				| 建物名・部屋番号 | 所沢スカイライズタワー | 
			
				| リフォーム履歴 | ■水回り:2025年6月 キッチン、浴室、トイレ、洗面所、給排水管、給湯器
 ■内装:2025年6月
 全室クロス張替え、床(フローリング等)
 ※実施年月は最も古い履歴を表示
 | 
			
				| リノベーション履歴 | - | 
			
				| 瑕疵保証 | - | 
			
				| 瑕疵保険 | - | 
			
				| 評価・証明書 | - | 
			
				| 備考 | 
																	主要採光面:西向き
											施工会社:平岩建設共同企業
 景観法・航空法
 所沢小学校(380m)
 所沢中学校(1390m)
 管理会社:ホームライフ管理株式会社
 管理No:2506286
 | 
		
				
		
		| エネルギー消費性能 | - | 
	
		| 断熱性能 | - | 
	
		| 目安光熱費 | - | 
	
		
									
				| バス・トイレ | 浴室暖房、浴室乾燥機、追焚機能、温水洗浄便座 | 
						
				| キッチン | カウンターキッチン、システムキッチン、食器洗浄乾燥機、3口以上コンロ | 
						
				| 設備・サービス | 全居室収納、室内洗濯機置場、オートロック、モニター付インターホン、洗濯機置場、全居室フローリング、都市ガス | 
						
				| その他 | エレベーター | 
					
		
			
				| 条件等 | - | 現況 | 空家 | 
			
				| 引渡可能時期 | 相談 | 物件番号 | 1133275709 | 
						
				| 情報公開日 | 2025年7月6日 | 次回更新予定日 | 2025年11月13日 | 
						
				| ケータイ用バーコード | 
				
				
				
					スマートフォンでこの物件を見るスマートフォンからもこの物件をご覧になれます。 | 
					
		 
	 									※「-」と表示されている項目については、情報提供会社にご確認ください。
						
	
			
			
					
			
				
					
						
							| 周辺施設 | 航空公園駅 | 
						
							| 距離 | 1040m | 写真を見る | 
					
				
			 
		 
		 
				
			
					
			
				
					
						
							| 周辺施設 | 所沢中学校 | 
						
							| 距離 | 1390m | 写真を見る | 
					
				
			 
		 
		 
		 									
												
					
					  ここから簡単にお問い合わせをすることができます。
(SSLでの暗号化での送信を希望されるお客さまは
													こちら
												よりお問い合わせください)
					
					
						
						
					
					お問い合わせを行う前に
「個人情報の取り扱いについて」を必ずお読みください。
「個人情報の取り扱いについて」に同意いただいた場合は「上記にご同意の上 確認画面へ進む」のボタンをクリックしてください。 
						個人情報の取り扱いについて
						皆さまが送付された個人情報はアットホーム(株)のサーバを経由し、お問い合わせ先の不動産会社にメールまたはFAXにて転送されるためアットホーム(株)にも保管されます。アットホーム(株)で保管された個人情報の取り扱いについては、【こちら】をご覧ください。
						また、本画面でご記入いただいた個人情報は、お問い合わせ先の不動産会社でも保管します。 お問い合わせ先の不動産会社が保管する個人情報の取り扱いについては、不動産会社に直接お問い合わせください。
					 
					 
					
														
				  
				  
					| 国土交通大臣免許(6)第5817号 | 
|---|
| 交通:西武池袋線/所沢駅 徒歩3分埼玉県所沢市東住吉12-21 TEL:04-2925-0898FAX:04-2922-2108所属団体:(公社)全日本不動産協会会員(公社)首都圏不動産公正取引協議会加盟
 取引態様:媒介 00041048
 | 
							  
								スマートフォンでこの不動産会社を見る
 | 
					  
					 
				 
							
						
												
			
					
- 提携サイト等より掲載されている物件情報につきましては、不動産会社詳細情報にリンクされていないものがあります。
- 物件に関するお問合せは、物件詳細ページの「情報提供会社」に表示されている不動産会社へ直接お願いいたします。
- 間取図は、現況を優先させていただきます。
- 映像は物件の一部を撮影したものです。物件の契約にあたっての最終判断はご自身の判断に基づいて行ってください。
- 仲介手数料について 
アットホームは物件情報の適正化に努めております。
内容に誤りがある場合にはこちらへご連絡ください。