東京都新宿区大久保2丁目(東新宿駅)の中古マンション・新築マンション・分譲マンション:物件詳細
交通 所在地 |
駅徒歩 |
価格 |
構造 階建/階 |
間取り 専有面積 |
物件種目 築年月 |
|
東京メトロ副都心線/東新宿
東京都新宿区大久保2丁目
|
3分
|
4,599万円
|
RC
5階建 / 2階
|
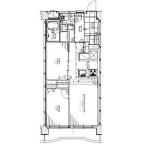
2LDK
49.40m²
|
中古マンション
1981年5月(築44年6ヶ月)
|
|
ペット相談、管理人巡回
|
|
間取図
|
外観
|
その他の画像
|
| 交通 | 東京メトロ副都心線 東新宿駅 徒歩3分 |
|---|
| その他の交通 | JR山手線 新大久保駅 徒歩10分 JR総武線 大久保駅 徒歩15分 |
| 所在地 |
東京都新宿区大久保2丁目
|
| 物件種目 |
中古マンション |
| 価格 |
4,599万円 |
平米単価 |
93.10万円 |
| 管理費等 |
11,000円 |
修繕積立金 |
13,200円 |
| 借地期間・地代(月額) |
- |
権利金 |
- |
| 敷金または保証金 |
- / - |
維持費等 |
- |
| その他一時金 |
なし |
|
|
| 間取り |
2LDK |
専有面積 |
49.40m²(内法) |
| 階建 / 階 |
5階建 / 2階 |
バルコニー |
5.20m² |
| 築年月 |
1981年5月(築44年6ヶ月)
|
建物構造 |
RC |
| 駐車場 |
- |
総戸数 |
24戸 |
| 駐輪場 |
有 |
バイク置き場 |
- |
| ペット |
相談 |
|
|
| 土地権利 |
所有権 |
敷地面積 |
- |
| 管理形態/管理員の勤務形態 |
全部委託/巡回 |
国土法届出 |
- |
| アピールポイント |
★仲介手数料無料+さらに5万円決済時プレゼントいたします!
★通常より約169万円もお得にご購入いただけます!
★来店不要*即日ご見学対応|現地やご希望の場所でお待ち合わせ!
◆物件情報◆新規室内リノベーション!東京メトロ副都心線「東新宿」駅徒歩3分、JR山手線「新大久保」駅徒歩10分、JR総武中央線「大久保」駅徒歩15分!3駅3路線利用可能の好立地!大切なペットと暮らせるマンション♪2階・南向きにつき、陽当たり良好!浄水器や浴室乾燥機など嬉しい設備充実◎スーパーやコンビニが近く、日々のお買い物に便利!
【リッツホームの特徴】
★通常必要な仲介手数料が最大無料になりお得にご購入頂けます
★他ネット掲載物件も対象になります、気になる物件がある方はお早めにご相談下さい
★【価格交渉もお任せください】どこよりも諸費用節約、より良い条件でご紹介いたします。
★提携銀行多数完備、最適な住宅ローンのご提案、頭金0円でもご相談ください。(無料審査要)
★物件のご案内は車利用が可能です
★ご売却時の仲介手数料も最大半額で経費節約になります |
| 建物名・部屋番号 |
大久保杉ハイム 2F |
| リフォーム履歴 |
■その他:2025年7月 *新規リノベーション(キッチン・浴室・トイレ・洗面・壁・床・建具等) ※実施年月は最も古い履歴を表示 |
| リノベーション履歴 |
- |
| 瑕疵保証 |
- |
| 瑕疵保険 |
- |
| 評価・証明書 |
- |
| 備考 |
施工会社:工藤建設株式会社
用途地域:1種住居
|
| エネルギー消費性能 |
- |
| 断熱性能 |
- |
| 目安光熱費 |
- |
| バス・トイレ |
浴室乾燥機、追焚機能、温水洗浄便座 |
| キッチン |
システムキッチン、浄水器、3口以上コンロ |
| 設備・サービス |
収納スペース、室内洗濯機置場、シューズインクローゼット、モニター付インターホン、ワイドバルコニー、駐輪場 |
| その他 |
エレベーター |
| 条件等 |
- |
現況 |
空家 |
| 引渡可能時期 |
即時 |
物件番号 |
1141335214 |
| 情報公開日 |
2025年9月22日 |
次回更新予定日 |
2025年11月6日 |
| ケータイ用バーコード |
- スマートフォンでこの物件を見る
- スマートフォンからもこの物件をご覧になれます。
|
※「-」と表示されている項目については、情報提供会社にご確認ください。
| 周辺施設 |
まいばすけっと 東新宿駅北店 |
| 距離 |
128m |
写真を見る |
| 周辺施設 |
コープ戸山店 |
| 距離 |
266m |
写真を見る |
| 周辺施設 |
セブンイレブン 大久保2丁目明治通り店 |
| 距離 |
134m |
写真を見る |
| 周辺施設 |
薬マツモトキヨシ 大久保一丁目店 |
| 距離 |
324m |
写真を見る |
| 周辺施設 |
ドン・キホーテ新宿明治通り店 |
| 距離 |
652m |
写真を見る |
| 周辺施設 |
新宿区立大久保幼稚園 |
| 距離 |
403m |
写真を見る |
| 周辺施設 |
新宿区立大久保小学校 |
| 距離 |
403m |
写真を見る |
| 周辺施設 |
新宿区立西早稲田中学校 |
| 距離 |
880m |
写真を見る |
ここから簡単にお問い合わせをすることができます。
(SSLでの暗号化での送信を希望されるお客さまは
こちら
よりお問い合わせください)
お問い合わせを行う前に
「個人情報の取り扱いについて」を必ずお読みください。
「個人情報の取り扱いについて」に同意いただいた場合は「上記にご同意の上 確認画面へ進む」のボタンをクリックしてください。
個人情報の取り扱いについて
皆さまが送付された個人情報はアットホーム(株)のサーバを経由し、お問い合わせ先の不動産会社にメールまたはFAXにて転送されるためアットホーム(株)にも保管されます。アットホーム(株)で保管された個人情報の取り扱いについては、【こちら】をご覧ください。
また、本画面でご記入いただいた個人情報は、お問い合わせ先の不動産会社でも保管します。 お問い合わせ先の不動産会社が保管する個人情報の取り扱いについては、不動産会社に直接お問い合わせください。
東京都知事免許(3)第96295号 |
|---|
- 交通:
- 東急東横線/自由が丘駅 徒歩1分
- 東京都目黒区自由が丘1丁目13-4 シャイン自由が丘606
- TEL:
- 03-5731-0567
- FAX:
- 03-5731-0568
- 所属団体:
- (公社)全日本不動産協会会員(公社)首都圏不動産公正取引協議会加盟
取引態様:媒介  - 00160564
|
- スマートフォンで
この不動産会社を見る

|
- 提携サイト等より掲載されている物件情報につきましては、不動産会社詳細情報にリンクされていないものがあります。
- 物件に関するお問合せは、物件詳細ページの「情報提供会社」に表示されている不動産会社へ直接お願いいたします。
- 間取図は、現況を優先させていただきます。
- 映像は物件の一部を撮影したものです。物件の契約にあたっての最終判断はご自身の判断に基づいて行ってください。
- 仲介手数料について

アットホームは物件情報の適正化に努めております。
内容に誤りがある場合にはこちらへご連絡ください。