千葉県柏市花野井(柏の葉キャンパス駅)の中古マンション・新築マンション・分譲マンション:物件詳細
交通 所在地 |
駅徒歩 |
価格 |
構造 階建/階 |
間取り 専有面積 |
物件種目 築年月 |
|
つくばエクスプレス/柏の葉キャンパス
千葉県柏市花野井
|
12分
|
4,799万円
|
RC
7階建 / 4階
|
3LDK
71.00m²
|
中古マンション
2006年3月(築20年3ヶ月)
|
|
ペット相談、管理人日勤
|
|
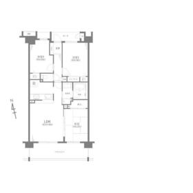
間取図
【3LDK】4階、南西向きに付き陽当り良好!トランクルームやクローゼット等収納豊富!
|
|
その他の画像
|
| 交通 | つくばエクスプレス 柏の葉キャンパス駅 徒歩12分 |
| 所在地 |
千葉県柏市花野井
|
| 物件種目 |
中古マンション |
| 価格 |
4,799万円 |
平米単価 |
67.60万円 |
| 管理費等 |
11,800円 |
修繕積立金 |
12,453円 |
| 借地期間・地代(月額) |
- |
権利金 |
- |
| 敷金または保証金 |
- / - |
維持費等 |
- |
| その他一時金 |
- |
|
|
| 間取り |
3LDK |
専有面積 |
71.00m²(壁芯) |
| 階建 / 階 |
7階建 / 4階 |
バルコニー |
12.16m² |
| 築年月 |
2006年3月(築20年3ヶ月)
|
建物構造 |
RC |
| 駐車場 |
有 3,000円/月 |
総戸数 |
67戸 |
| 駐輪場 |
有 無料 |
バイク置き場 |
有 500円/月 |
| ペット |
相談 |
|
|
| 土地権利 |
所有権 |
敷地面積 |
- |
| 管理形態/管理員の勤務形態 |
全部委託/日勤 |
国土法届出 |
- |
| アピールポイント |
◇つくばエクスプレス「柏の葉キャンパス」駅徒歩12分
◇駅前には大型商業施設「ららぽーと柏の葉」!周辺には「柏市場」が揃う便利な住環境
【リフォーム内容】(2026年1月23日完了)キッチン(浄水器付水栓、ガスコンロ)浴室(ユニットバス、追焚・換気乾燥機付:1418)洗面室(洗面パン)トイレ(温水洗浄便座一体型便器)その他(一部照明器具、建具(洋室1:収納)スイッチコンセント)床:フローリング上貼(LDK、洋室全室、廊下)フロアタイル貼(玄関、洗面室、トイレ)和室(障子・襖紙貼替・畳表替)壁・天井:クロス貼 ハウスクリーニング |
| 建物名・部屋番号 |
オーベル柏の葉ヒルズ壱番館 |
| リフォーム履歴 |
■水回り:2026年1月 キッチン、浴室、トイレ、洗面所 ■内装:2026年1月 床(フローリング等)、壁・天井(クロス・塗装等)、建具(室内ドア等) ※実施年月は最も古い履歴を表示 |
| リノベーション履歴 |
- |
| 瑕疵保証 |
- |
| 瑕疵保険 |
- |
| 評価・証明書 |
- |
| 備考 |
主要採光面:南西向き
用途地域:1種住居
※専有面積71平米(トランクルーム面積0.49平米含む)※ポーチ面積3.58平米※管理方式:日勤 月~金(13:00~17:00)、土(9:00~12:00)※町会費:300円/月※駐輪場:有 1住戸2台まで無償 3台目以降300円/月 ※要ステッカー貼付※ペット可(犬猫可。1住戸2匹まで。体高30cm以下、体重10kg以下。その他細則あり)
|
| エネルギー消費性能 |
- |
| 断熱性能 |
- |
| 目安光熱費 |
- |
| バス・トイレ |
浴室乾燥機、追焚機能、温水洗浄便座 |
| キッチン |
カウンターキッチン、食器洗浄乾燥機、浄水器 |
| 設備・サービス |
全居室収納、バイク置き場、収納スペース、室内洗濯機置場、トランクルーム、オートロック、駐輪場 |
| その他 |
宅配BOX、エレベーター |
| 条件等 |
- |
現況 |
空家 |
| 引渡可能時期 |
相談 |
物件番号 |
1141645516 |
| 情報公開日 |
2026年1月23日 |
次回更新予定日 |
2026年5月10日 |
| ケータイ用バーコード |
- スマートフォンでこの物件を見る
- スマートフォンからもこの物件をご覧になれます。
|
※「-」と表示されている項目については、情報提供会社にご確認ください。
| 周辺施設 |
柏市立田中小学校 |
| 距離 |
650m |
写真を見る |
| 周辺施設 |
柏市立田中中学校 |
| 距離 |
700m |
写真を見る |
ここから簡単にお問い合わせをすることができます。
(SSLでの暗号化での送信を希望されるお客さまは
こちら
よりお問い合わせください)
お問い合わせを行う前に
「個人情報の取り扱いについて」を必ずお読みください。
「個人情報の取り扱いについて」に同意いただいた場合は「上記にご同意の上 確認画面へ進む」のボタンをクリックしてください。
個人情報の取り扱いについて
皆さまが送付された個人情報はアットホーム(株)のサーバを経由し、お問い合わせ先の不動産会社にメールまたはFAXにて転送されるためアットホーム(株)にも保管されます。アットホーム(株)で保管された個人情報の取り扱いについては、【こちら】をご覧ください。
また、本画面でご記入いただいた個人情報は、お問い合わせ先の不動産会社でも保管します。 お問い合わせ先の不動産会社が保管する個人情報の取り扱いについては、不動産会社に直接お問い合わせください。
国土交通大臣免許(13)第2401号 |
|---|
- 交通:
- JR常磐線/柏駅 徒歩3分
- 千葉県柏市末広町15-2 鈴木電気ビル1F
- TEL:
- 04-7146-3911
- FAX:
- 04-7146-3914
- 所属団体:
- (一社)千葉県宅地建物取引業協会会員不動産公正取引協議会加盟
取引態様:媒介  - 00781405
|
- スマートフォンで
この不動産会社を見る

|
- 提携サイト等より掲載されている物件情報につきましては、不動産会社詳細情報にリンクされていないものがあります。
- 物件に関するお問合せは、物件詳細ページの「情報提供会社」に表示されている不動産会社へ直接お願いいたします。
- 間取図は、現況を優先させていただきます。
- 映像は物件の一部を撮影したものです。物件の契約にあたっての最終判断はご自身の判断に基づいて行ってください。
- 仲介手数料について

アットホームは物件情報の適正化に努めております。
内容に誤りがある場合にはこちらへご連絡ください。