埼玉県さいたま市南区文蔵1丁目(南浦和駅)の中古マンション・新築マンション・分譲マンション:物件詳細
交通 所在地 |
駅徒歩 |
価格 |
構造 階建/階 |
間取り 専有面積 |
物件種目 築年月 |
|
JR京浜東北線/南浦和
埼玉県さいたま市南区文蔵1丁目
|
9分
|
3,380万円
|
RC
6階建 / 1階
|
3LDK
65.78m²
|
中古マンション
1986年8月(築39年7ヶ月)
|
|
閑静な住宅街、管理人日勤
|
|
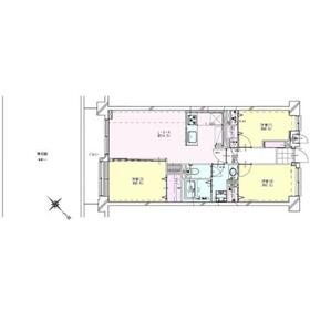
間取図
|
外観
周辺環境が充実した分譲マンション。
|
<
その他の画像
>
|
| 交通 | JR京浜東北線 南浦和駅 徒歩9分 |
|---|
| その他の交通 | JR武蔵野線 南浦和駅 徒歩9分 JR埼京線 北戸田駅 徒歩32分 |
| 所在地 |
埼玉県さいたま市南区文蔵1丁目
|
| 物件種目 |
中古マンション |
| 価格 |
3,380万円 |
平米単価 |
51.39万円 |
| 管理費等 |
12,600円 |
修繕積立金 |
21,600円 |
| 借地期間・地代(月額) |
- |
権利金 |
- |
| 敷金または保証金 |
- / - |
維持費等 |
専用庭使用料:780円/月 |
| その他一時金 |
なし |
|
|
| 間取り |
3LDK(洋室6/洋室4.6/洋室5.3/LDK14.2) |
専有面積 |
65.78m²(壁芯) |
| 階建 / 階 |
6階建 / 1階 |
バルコニー |
8.33m² |
| 築年月 |
1986年8月(築39年7ヶ月)
|
建物構造 |
RC |
| 駐車場 |
- |
総戸数 |
46戸 |
| 駐輪場 |
有 |
バイク置き場 |
- |
| ペット |
-
|
|
|
| 土地権利 |
所有権 |
敷地面積 |
- |
| 管理形態/管理員の勤務形態 |
全部委託/日勤 |
国土法届出 |
- |
| アピールポイント |
~安心して子育てできる環境を、ニッケンコーポレーションがご紹介~
【物件特徴】
・1階部分なので、下の階を気にせず生活が送れます
・お子様と公園に行けない日も、のびのび遊べる専用庭付
・南東向きにつき陽当たり良好
【周辺環境】
・南浦和駅まで徒歩9分!2路線利用可能で、都心へのアクセス良好
・スーパーやドラックストアやコンビニも徒歩10分圏内にあり、毎日のお買い物に便利♪
【充実リノベーション内容】
・システムキッチン交換
・ユニットバス交換
・洗面化粧台交換
・トイレ交換
・床:フローリング全室貼替
・壁、天井:クロス全室貼替
・建具:新規交換
・給排水管新規更新
・給湯器、分電盤新規交換 |
| 建物名・部屋番号 |
南浦和第5ローヤルコーポ |
| リフォーム履歴 |
■水回り:2026年1月 キッチン、浴室、トイレ ■内装:2026年1月 全室クロス張替え、床(フローリング等)、壁・天井(クロス・塗装等) 全室 ※実施年月は最も古い履歴を表示 |
| リノベーション履歴 |
- |
| 瑕疵保証 |
- |
| 瑕疵保険 |
- |
| 評価・証明書 |
- |
| 備考 |
主要採光面:南東向き
施工会社:藤澤建設株式会社
用途地域:1種住居
|
| エネルギー消費性能 |
- |
| 断熱性能 |
- |
| 目安光熱費 |
- |
| バス・トイレ |
浴室暖房、浴室乾燥機、オートバス、シャワー付洗面化粧台、温水洗浄便座 |
| キッチン |
カウンターキッチン、オープンキッチン、システムキッチン |
| 設備・サービス |
給湯、ワイドバルコニー、駐輪場 |
| その他 |
エレベーター |
| 条件等 |
- |
現況 |
空家 |
| 引渡可能時期 |
即時 |
物件番号 |
1141888714 |
| 情報公開日 |
2025年11月18日 |
次回更新予定日 |
2026年2月19日 |
| ケータイ用バーコード |
- スマートフォンでこの物件を見る
- スマートフォンからもこの物件をご覧になれます。
|
※「-」と表示されている項目については、情報提供会社にご確認ください。
| 周辺施設 |
セブンイレブン さいたま文蔵3丁目店 |
| 距離 |
294m |
写真を見る |
| 周辺施設 |
ココカラファイン 南浦和西口店 |
| 距離 |
513m |
写真を見る |
| 周辺施設 |
スーパーバリュー南浦和店 |
| 距離 |
457m |
写真を見る |
| 周辺施設 |
ダイエー南浦和東口店 |
| 距離 |
689m |
写真を見る |
| 周辺施設 |
さいたま市立文蔵保育園 |
| 距離 |
420m |
写真を見る |
| 周辺施設 |
さいたま市立文蔵小学校 |
| 距離 |
926m |
写真を見る |
| 周辺施設 |
さいたま市立岸中学校 |
| 距離 |
1431m |
写真を見る |
| 周辺施設 |
浦和南本町郵便局 |
| 距離 |
560m |
写真を見る |
ここから簡単にお問い合わせをすることができます。
(SSLでの暗号化での送信を希望されるお客さまは
こちら
よりお問い合わせください)
お問い合わせを行う前に
「個人情報の取り扱いについて」を必ずお読みください。
「個人情報の取り扱いについて」に同意いただいた場合は「上記にご同意の上 確認画面へ進む」のボタンをクリックしてください。
個人情報の取り扱いについて
皆さまが送付された個人情報はアットホーム(株)のサーバを経由し、お問い合わせ先の不動産会社にメールまたはFAXにて転送されるためアットホーム(株)にも保管されます。アットホーム(株)で保管された個人情報の取り扱いについては、【こちら】をご覧ください。
また、本画面でご記入いただいた個人情報は、お問い合わせ先の不動産会社でも保管します。 お問い合わせ先の不動産会社が保管する個人情報の取り扱いについては、不動産会社に直接お問い合わせください。
埼玉県知事免許(12)第8812号 |
|---|
- 交通:
- JR埼京線/武蔵浦和駅 徒歩3分
- 埼玉県さいたま市南区沼影1丁目6-15
- TEL:
- 0120-527-888
- FAX:
- 048-861-0600
- 所属団体:
- (公社)埼玉県宅地建物取引業協会会員(公社)首都圏不動産公正取引協議会加盟
取引態様:媒介  - 00106142
|
- スマートフォンで
この不動産会社を見る

|
- 提携サイト等より掲載されている物件情報につきましては、不動産会社詳細情報にリンクされていないものがあります。
- 物件に関するお問合せは、物件詳細ページの「情報提供会社」に表示されている不動産会社へ直接お願いいたします。
- 間取図は、現況を優先させていただきます。
- 映像は物件の一部を撮影したものです。物件の契約にあたっての最終判断はご自身の判断に基づいて行ってください。
- 仲介手数料について

アットホームは物件情報の適正化に努めております。
内容に誤りがある場合にはこちらへご連絡ください。