東京都足立区入谷2丁目(舎人駅)の中古マンション・新築マンション・分譲マンション:物件詳細
交通 所在地 |
駅徒歩 |
価格 |
構造 階建/階 |
間取り 専有面積 |
物件種目 築年月 |
|
日暮里舎人ライナー/舎人
東京都足立区入谷2丁目
|
12分
|
2,790万円
|
RC
9階建 / 2階
|
1LDK
37.72m²
|
中古マンション
2019年12月(築6年3ヶ月)
|
|
ペット相談、管理人日勤
|
|
間取図
|
外観
穏やかな日々が描かれる、洗練された佇まいのレジデンス。
|
<
その他の画像
>
|
| 交通 | 日暮里舎人ライナー 舎人駅 徒歩12分 |
|---|
| その他の交通 | 日暮里舎人ライナー 見沼代親水公園駅 徒歩14分 日暮里舎人ライナー 舎人公園駅 徒歩25分 |
| 所在地 |
東京都足立区入谷2丁目
|
| 物件種目 |
中古マンション |
| 価格 |
2,790万円 |
平米単価 |
73.97万円 |
| 管理費等 |
8,790円 |
修繕積立金 |
4,500円 |
| 借地期間・地代(月額) |
- |
権利金 |
- |
| 敷金または保証金 |
- / - |
維持費等 |
- |
| その他一時金 |
- |
|
|
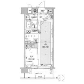
| 間取り |
1LDK(LDK9.9帖、洋室3.6帖) |
専有面積 |
37.72m²(壁芯) |
| 階建 / 階 |
9階建 / 2階 |
バルコニー |
6.56m² |
| 築年月 |
2019年12月(築6年3ヶ月)
|
建物構造 |
RC |
| 駐車場 |
- |
総戸数 |
55戸 |
| 駐輪場 |
- |
バイク置き場 |
- |
| ペット |
相談 |
|
|
| 土地権利 |
所有権 |
敷地面積 |
- |
| 管理形態/管理員の勤務形態 |
全部委託/日勤 |
国土法届出 |
- |
| アピールポイント |
舎人駅まで徒歩圏内で、近隣にドラッグストアやコンビニがあり
生活しやすい立地です。
ご見学にあわせて無料の外部FP相談をご利用頂けます。マイホーム購入だけでなく、老後の資金計画・お子様の教育資金等のライフシュミレーションを考慮した上で、無理のない返済計画をご提案いたします。
「エステート白馬が選ばれる5つのポイント」
1.提携FPへの無料個別相談サービス
社外の中立的なファイナンシャルプランナーと無料相談できます。
ローン返済計画・教育・老後の資金等も含めてシミュレーションをご提案。
2.物件情報が豊富
越谷市を中心にたくさんの情報をご用意。
インターネット広告前の物件も多数取り揃えております。
3.リフォーム、注文建築
越谷店はショールームとなっており、リフォーム、注文建築部門の相談スペースです。
一級建築士をはじめとした専門スタッフがおりますのでご見学と合わせて、リフォームや注文建築についてご相談可。
4.年中無休(年末年始除く)で営業
営業時間 9:30~19:00 この時間はお電話でのお問合わせがスムーズです
5.お子様連れでおこしください
キッズスペース、授乳室、オムツ替えベッドをご用意しております。 |
| 建物名・部屋番号 |
ミルーナヒルズ舎人C’sCOLLECTION |
| リフォーム履歴 |
- |
| リノベーション履歴 |
- |
| 瑕疵保証 |
- |
| 瑕疵保険 |
- |
| 評価・証明書 |
- |
| 備考 |
主要採光面:西向き
足立区立入谷小学校(300m)
足立区立入谷中学校(400m)
管理会社:日神管財株式会社
管理No:100137620709
|
| エネルギー消費性能 |
- |
| 断熱性能 |
- |
| 目安光熱費 |
- |
| バス・トイレ |
TV付浴室 |
| キッチン |
独立型キッチン、浄水器 |
| 設備・サービス |
全居室収納、ウォークインクローゼット、室内洗濯機置場 |
| その他 |
- |
| 条件等 |
- |
現況 |
空家 |
| 引渡可能時期 |
相談 |
物件番号 |
1142245516 |
| 情報公開日 |
2026年2月15日 |
次回更新予定日 |
2026年3月1日 |
| ケータイ用バーコード |
- スマートフォンでこの物件を見る
- スマートフォンからもこの物件をご覧になれます。
|
※「-」と表示されている項目については、情報提供会社にご確認ください。
| 周辺施設 |
日々の暮らしを支える、安心感のある佇まい |
| 距離 |
100m |
写真を見る |
| 周辺施設 |
青空と緑のラインが映える、親しみやすい街の風景。 |
| 距離 |
30m |
写真を見る |
| 周辺施設 |
駅前の生活空間、日々の暮らしに彩りを添える立地。 |
| 距離 |
700m |
写真を見る |
| 周辺施設 |
見沼代親水公園駅 |
| 距離 |
1120m |
写真を見る |
| 周辺施設 |
舎人公園駅 |
| 距離 |
2000m |
写真を見る |
| 周辺施設 |
足立区立入谷小学校 |
| 距離 |
300m |
写真を見る |
| 周辺施設 |
足立区立入谷中学校 |
| 距離 |
400m |
写真を見る |
ここから簡単にお問い合わせをすることができます。
(SSLでの暗号化での送信を希望されるお客さまは
こちら
よりお問い合わせください)
お問い合わせを行う前に
「個人情報の取り扱いについて」を必ずお読みください。
「個人情報の取り扱いについて」に同意いただいた場合は「上記にご同意の上 確認画面へ進む」のボタンをクリックしてください。
個人情報の取り扱いについて
皆さまが送付された個人情報はアットホーム(株)のサーバを経由し、お問い合わせ先の不動産会社にメールまたはFAXにて転送されるためアットホーム(株)にも保管されます。アットホーム(株)で保管された個人情報の取り扱いについては、【こちら】をご覧ください。
また、本画面でご記入いただいた個人情報は、お問い合わせ先の不動産会社でも保管します。 お問い合わせ先の不動産会社が保管する個人情報の取り扱いについては、不動産会社に直接お問い合わせください。
国土交通大臣免許(6)第5817号 |
|---|
- 交通:
- 東武伊勢崎線/大袋駅 徒歩1分
- 埼玉県越谷市大字袋山1321-7
- TEL:
- 048-612-0673
- FAX:
- 048-976-8336
- 所属団体:
- (公社)全日本不動産協会会員(公社)首都圏不動産公正取引協議会加盟
取引態様:媒介  - 00263240
|
- スマートフォンで
この不動産会社を見る

|
- 提携サイト等より掲載されている物件情報につきましては、不動産会社詳細情報にリンクされていないものがあります。
- 物件に関するお問合せは、物件詳細ページの「情報提供会社」に表示されている不動産会社へ直接お願いいたします。
- 間取図は、現況を優先させていただきます。
- 映像は物件の一部を撮影したものです。物件の契約にあたっての最終判断はご自身の判断に基づいて行ってください。
- 仲介手数料について

アットホームは物件情報の適正化に努めております。
内容に誤りがある場合にはこちらへご連絡ください。