埼玉県川口市上青木1丁目(西川口駅)の中古マンション・新築マンション・分譲マンション:物件詳細
交通 所在地 |
駅徒歩 |
価格 |
構造 階建/階 |
間取り 専有面積 |
物件種目 築年月 |
|
JR京浜東北線/西川口
埼玉県川口市上青木1丁目
|
20分
|
2,080万円
|
SRC
9階建 / 8階
|
3LDK
86.40m²
|
中古マンション
1975年9月(築50年7ヶ月)
|
|
管理人日勤
|
|
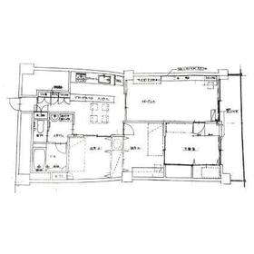
間取図
現況と図面が異なる場合は、現況を優先とさせていただきます。
|
外観
現地外観
|
<
その他の画像
>
|
| 交通 | JR京浜東北線 西川口駅 徒歩20分 |
|---|
| その他の交通 | 埼玉高速鉄道 鳩ヶ谷駅 徒歩31分 埼玉高速鉄道 南鳩ヶ谷駅 徒歩26分 |
| 所在地 |
埼玉県川口市上青木1丁目
|
| 物件種目 |
中古マンション |
| 価格 |
2,080万円 |
平米単価 |
24.08万円 |
| 管理費等 |
12,300円 |
修繕積立金 |
12,800円 |
| 借地期間・地代(月額) |
- |
権利金 |
- |
| 敷金または保証金 |
- / - |
維持費等 |
- |
| その他一時金 |
- |
|
|
| 間取り |
3LDK |
専有面積 |
86.40m² |
| 階建 / 階 |
9階建 / 8階 |
バルコニー |
9.90m² |
| 築年月 |
1975年9月(築50年7ヶ月)
|
建物構造 |
SRC |
| 駐車場 |
- |
総戸数 |
95戸 |
| 駐輪場 |
- |
バイク置き場 |
- |
| ペット |
-
|
|
|
| 土地権利 |
所有権 |
敷地面積 |
- |
| 管理形態/管理員の勤務形態 |
全部委託/日勤 |
国土法届出 |
- |
| アピールポイント |
◆エステート白馬の5大サポート◆
1.FP相談サポート
社外のファイナンシャルプランナーと資金相談が出来ます。無料で何度でもお気軽に
2.設備保証の延長サービス
新築住宅は2年、中古住宅は半年の設備修理サービスを無料で付帯しています
3.注文住宅「白馬の家」
高気密・高断熱のフルオーダー住宅「白馬の家」のご提案もできます。ご興味のある土地にプランを作るのもお任せください
4.見学時、建築士同行サービス
見学に建築士が同行し、目視検査やリフォーム費用をお伝えするなどの無料サービスを行っています
5.ご売却不動産の買取保証
一定期間で不動産売却ができなかった場合、予め定めた金額で弊社が買取いたします |
| 建物名・部屋番号 |
ハイストンハイツ |
| リフォーム履歴 |
- |
| リノベーション履歴 |
- |
| 瑕疵保証 |
- |
| 瑕疵保険 |
- |
| 評価・証明書 |
- |
| 備考 |
主要採光面:東向き
管理No:6902012
|
| エネルギー消費性能 |
- |
| 断熱性能 |
- |
| 目安光熱費 |
- |
| バス・トイレ |
- |
| キッチン |
- |
| 設備・サービス |
都市ガス |
| その他 |
- |
| 条件等 |
- |
現況 |
空家 |
| 引渡可能時期 |
即時 |
物件番号 |
1142328016 |
| 情報公開日 |
2026年2月5日 |
次回更新予定日 |
2026年3月10日 |
| ケータイ用バーコード |
- スマートフォンでこの物件を見る
- スマートフォンからもこの物件をご覧になれます。
|
※「-」と表示されている項目については、情報提供会社にご確認ください。
| 周辺施設 |
JR京浜東北線「西川口」駅 |
| 距離 |
1570m |
写真を見る |
| 周辺施設 |
埼玉高速鉄道「南鳩ヶ谷」駅 |
| 距離 |
2060m |
写真を見る |
| 周辺施設 |
埼玉高速鉄道「鳩ヶ谷」駅 |
| 距離 |
2470m |
写真を見る |
ここから簡単にお問い合わせをすることができます。
(SSLでの暗号化での送信を希望されるお客さまは
こちら
よりお問い合わせください)
お問い合わせを行う前に
「個人情報の取り扱いについて」を必ずお読みください。
「個人情報の取り扱いについて」に同意いただいた場合は「上記にご同意の上 確認画面へ進む」のボタンをクリックしてください。
個人情報の取り扱いについて
皆さまが送付された個人情報はアットホーム(株)のサーバを経由し、お問い合わせ先の不動産会社にメールまたはFAXにて転送されるためアットホーム(株)にも保管されます。アットホーム(株)で保管された個人情報の取り扱いについては、【こちら】をご覧ください。
また、本画面でご記入いただいた個人情報は、お問い合わせ先の不動産会社でも保管します。 お問い合わせ先の不動産会社が保管する個人情報の取り扱いについては、不動産会社に直接お問い合わせください。
国土交通大臣免許(6)第5817号 |
|---|
- 交通:
- JR京浜東北線/南浦和駅 徒歩1分
- 埼玉県さいたま市南区南浦和2丁目38-1 北原ビル1F
- TEL:
- 0120-934-879
- FAX:
- 048-882-2108
- 所属団体:
- (公社)全日本不動産協会会員不動産公正取引協議会加盟
取引態様:媒介  - 00041885
|
- スマートフォンで
この不動産会社を見る

|
- 提携サイト等より掲載されている物件情報につきましては、不動産会社詳細情報にリンクされていないものがあります。
- 物件に関するお問合せは、物件詳細ページの「情報提供会社」に表示されている不動産会社へ直接お願いいたします。
- 間取図は、現況を優先させていただきます。
- 映像は物件の一部を撮影したものです。物件の契約にあたっての最終判断はご自身の判断に基づいて行ってください。
- 仲介手数料について

アットホームは物件情報の適正化に努めております。
内容に誤りがある場合にはこちらへご連絡ください。