東京都小平市栄町2丁目(小川駅)の中古マンション・新築マンション・分譲マンション:物件詳細
交通 所在地 |
駅徒歩 |
価格 |
構造 階建/階 |
間取り 専有面積 |
物件種目 築年月 |
|
西武拝島線/小川
東京都小平市栄町2丁目
|
19分
|
2,390万円
|
RC
5階建 / 5階
|
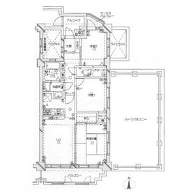
3LDK
56.94m²
|
中古マンション
1997年8月(築28年8ヶ月)
|
|
ペット相談、最上階、南向き、管理人巡回
|
|
間取図
最上階の角部屋ルーフバルコニー付き
|
外観
現地のご見学予約もスタートしました。周辺で売りに出ている物件も沢山御座います。
|
<
その他の画像
>
|
| 交通 | 西武拝島線 小川駅 徒歩19分 |
|---|
| その他の交通 | 西武拝島線 東大和市駅 徒歩21分 西武多摩湖線 八坂駅 徒歩28分 |
| 所在地 |
東京都小平市栄町2丁目
|
| 物件種目 |
中古マンション |
| 価格 |
2,390万円 |
平米単価 |
41.98万円 |
| 管理費等 |
15,000円 |
修繕積立金 |
15,000円 |
| 借地期間・地代(月額) |
- |
権利金 |
- |
| 敷金または保証金 |
- / - |
維持費等 |
- |
| その他一時金 |
- |
|
|
| 間取り |
3LDK |
専有面積 |
56.94m²(壁芯) |
| 階建 / 階 |
5階建 / 5階 |
バルコニー |
8.25m² |
| 築年月 |
1997年8月(築28年8ヶ月)
|
建物構造 |
RC |
| 駐車場 |
空無 |
総戸数 |
19戸 |
| 駐輪場 |
有 100円/月 |
バイク置き場 |
有 200円/月 |
| ペット |
相談 |
|
|
| 土地権利 |
所有権 |
敷地面積 |
- |
| 管理形態/管理員の勤務形態 |
全部委託/巡回 |
国土法届出 |
- |
| アピールポイント |
最上階の角部屋ルーフバルコニー付き
水回りや床、照明など室内リフォーム後のお引渡しです。
小型犬飼育OKです
◎こころとカラダに、うれしい暮らし
HAKUBAグループでは、土地や住まいの売買から設計、建築、
医療、介護そして保険や金融、税金対策、資産形成まで
さまざまなスペシャリストが集い、連携してサービス提供をしております。
専門知識や経験をかけあわせることで、お客様ひとりひとりにあった健康的な暮らしをお届けし、
人生が「プラス」の方向に進んでいくお手伝いをさせて頂きます。 |
| 建物名・部屋番号 |
アップルウェイ小平パートII |
| リフォーム履歴 |
- |
| リノベーション履歴 |
- |
| 瑕疵保証 |
- |
| 瑕疵保険 |
- |
| 評価・証明書 |
- |
| 備考 |
主要採光面:南向き
ペット相談:小型犬可、猫可
管理会社:日本ハウズイング株式会社
管理No:15260160
|
| エネルギー消費性能 |
- |
| 断熱性能 |
- |
| 目安光熱費 |
- |
| バス・トイレ |
浴室暖房、浴室乾燥機、オートバス、追焚機能、シャワー付洗面化粧台、温水洗浄便座 |
| キッチン |
カウンターキッチン、システムキッチン、浄水器、3口以上コンロ |
| 設備・サービス |
全居室収納、バイク置き場、室内洗濯機置場、オートロック、モニター付インターホン、洗濯機置場、全居室フローリング、都市ガス、二面バルコニー、駐輪場、ケーブルTV |
| その他 |
- |
| 条件等 |
- |
現況 |
空家 |
| 引渡可能時期 |
相談 |
物件番号 |
1142405116 |
| 情報公開日 |
2026年2月19日 |
次回更新予定日 |
2026年3月27日 |
| ケータイ用バーコード |
- スマートフォンでこの物件を見る
- スマートフォンからもこの物件をご覧になれます。
|
※「-」と表示されている項目については、情報提供会社にご確認ください。
| 周辺施設 |
西武鉄道「小川」駅 |
| 距離 |
1620m |
写真を見る |
ここから簡単にお問い合わせをすることができます。
(SSLでの暗号化での送信を希望されるお客さまは
こちら
よりお問い合わせください)
お問い合わせを行う前に
「個人情報の取り扱いについて」を必ずお読みください。
「個人情報の取り扱いについて」に同意いただいた場合は「上記にご同意の上 確認画面へ進む」のボタンをクリックしてください。
個人情報の取り扱いについて
皆さまが送付された個人情報はアットホーム(株)のサーバを経由し、お問い合わせ先の不動産会社にメールまたはFAXにて転送されるためアットホーム(株)にも保管されます。アットホーム(株)で保管された個人情報の取り扱いについては、【こちら】をご覧ください。
また、本画面でご記入いただいた個人情報は、お問い合わせ先の不動産会社でも保管します。 お問い合わせ先の不動産会社が保管する個人情報の取り扱いについては、不動産会社に直接お問い合わせください。
国土交通大臣免許(6)第5817号 |
|---|
- 交通:
- JR中央線/国分寺駅 徒歩3分
- 東京都国分寺市本町4丁目19-10
- TEL:
- 042-359-9898
- FAX:
- 042-359-9900
- 所属団体:
- (公社)全日本不動産協会会員(公社)首都圏不動産公正取引協議会加盟
取引態様:媒介  - 00984615
|
- スマートフォンで
この不動産会社を見る

|
- 提携サイト等より掲載されている物件情報につきましては、不動産会社詳細情報にリンクされていないものがあります。
- 物件に関するお問合せは、物件詳細ページの「情報提供会社」に表示されている不動産会社へ直接お願いいたします。
- 間取図は、現況を優先させていただきます。
- 映像は物件の一部を撮影したものです。物件の契約にあたっての最終判断はご自身の判断に基づいて行ってください。
- 仲介手数料について

アットホームは物件情報の適正化に努めております。
内容に誤りがある場合にはこちらへご連絡ください。