東京都武蔵野市御殿山1丁目(吉祥寺駅)の中古マンション・新築マンション・分譲マンション:物件詳細
交通 所在地 |
駅徒歩 |
価格 |
構造 階建/階 |
間取り 専有面積 |
物件種目 築年月 |
|
JR中央線/吉祥寺
東京都武蔵野市御殿山1丁目
|
5分
|
10,480万円
|
SRC
12階建 / 7階
|
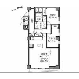
2LDK
83.73m²
|
中古マンション
1971年1月(築54年10ヶ月)
|
|
ペット相談、角部屋、2面採光、閑静な住宅街、管理人日勤
|
|
間取図
|
外観
|
<
その他の画像
>
|
| 交通 | JR中央線 吉祥寺駅 徒歩5分 |
|---|
| その他の交通 | 京王井の頭線 井の頭公園駅 徒歩13分 JR中央線 三鷹駅 徒歩17分 |
| 所在地 |
東京都武蔵野市御殿山1丁目
|
| 物件種目 |
中古マンション |
| 価格 |
10,480万円 |
平米単価 |
125.17万円 |
| 管理費等 |
17,620円 |
修繕積立金 |
27,027円 |
| 借地期間・地代(月額) |
- |
権利金 |
- |
| 敷金または保証金 |
- / - |
維持費等 |
- |
| その他一時金 |
なし |
|
|
| 間取り |
2LDK(LDK22.7帖 洋室6.7帖 洋室5.9帖) |
専有面積 |
83.73m²(壁芯) |
| 階建 / 階 |
12階建 / 7階 |
バルコニー |
5.10m² |
| 築年月 |
1971年1月(築54年10ヶ月)
|
建物構造 |
SRC |
| 駐車場 |
- |
総戸数 |
80戸 |
| 駐輪場 |
- |
バイク置き場 |
- |
| ペット |
相談 |
|
|
| 土地権利 |
所有権 |
敷地面積 |
- |
| 管理形態/管理員の勤務形態 |
全部委託/日勤 |
国土法届出 |
- |
| アピールポイント |
◆*≪仲介手数料無料≫*◆買主様の【仲介手数料】を【無料】にすることで、購入コストの大幅なカットを実現しております!「少しでも安く買いたい」「余計な出費は抑えたい」そんな想いに応える、弊社仲介の不動産サービスを是非ご利用ください。≪仲介手数料無料≫により約352万円もお得です**さらに!ご契約者様にJCBギフト券10万円プレゼント!!
≪物件特徴≫
■人気の中央線!吉祥寺駅徒歩5分の好立地!!
■井の頭公園も近くで自然環境良好~
■お部屋は7階部分の角部屋~日照・通風・眺望良好
■専有面積83.73平米のゆとりある2LDK
■新規内装リノベーション実施で快適に暮らせます♪
■ペット飼育可(規約有)
■トランクルーム有り
■2017年12月大規模修繕工事実施済み |
| 建物名・部屋番号 |
井の頭第2パークサイドマンション 700 |
| リフォーム履歴 |
- |
| リノベーション履歴 |
2025年7月 新規内装リノベーション実施 ※実施年月は最も古い履歴を表示 |
| 瑕疵保証 |
- |
| 瑕疵保険 |
- |
| 評価・証明書 |
- |
| 備考 |
主要採光面:南東向き
施工会社:黒川建設(株)
用途地域:近隣商業、2種低層
LINEからのお問い合わせも大歓迎!LINEボタンからお問い合わせください。
|
| エネルギー消費性能 |
- |
| 断熱性能 |
- |
| 目安光熱費 |
- |
| バス・トイレ |
浴室乾燥機、追焚機能、温水洗浄便座 |
| キッチン |
カウンターキッチン、システムキッチン、食器洗浄乾燥機、浄水器、3口以上コンロ、グリル |
| 設備・サービス |
収納スペース、室内洗濯機置場、トランクルーム、クローゼット、給湯、全居室フローリング、エアコン |
| その他 |
エレベーター |
| 条件等 |
- |
現況 |
空家 |
| 引渡可能時期 |
即時 |
物件番号 |
1144767214 |
| 情報公開日 |
2025年8月5日 |
次回更新予定日 |
2025年11月3日 |
| ケータイ用バーコード |
- スマートフォンでこの物件を見る
- スマートフォンからもこの物件をご覧になれます。
|
※「-」と表示されている項目については、情報提供会社にご確認ください。
| 周辺施設 |
ドン・キホーテ吉祥寺駅前店 |
| 距離 |
420m |
| 周辺施設 |
スターバックスコーヒー井の頭公園店 |
| 距離 |
520m |
| 周辺施設 |
コメダ珈琲店吉祥寺西口店 |
| 距離 |
360m |
| 周辺施設 |
セブンイレブン吉祥寺井の頭公園入口店 |
| 距離 |
10m |
| 周辺施設 |
ファミリーマート吉祥寺通り店 |
| 距離 |
250m |
| 周辺施設 |
ライフビオラル丸井吉祥寺店 |
| 距離 |
470m |
ここから簡単にお問い合わせをすることができます。
(SSLでの暗号化での送信を希望されるお客さまは
こちら
よりお問い合わせください)
お問い合わせを行う前に
「個人情報の取り扱いについて」を必ずお読みください。
「個人情報の取り扱いについて」に同意いただいた場合は「上記にご同意の上 確認画面へ進む」のボタンをクリックしてください。
個人情報の取り扱いについて
皆さまが送付された個人情報はアットホーム(株)のサーバを経由し、お問い合わせ先の不動産会社にメールまたはFAXにて転送されるためアットホーム(株)にも保管されます。アットホーム(株)で保管された個人情報の取り扱いについては、【こちら】をご覧ください。
また、本画面でご記入いただいた個人情報は、お問い合わせ先の不動産会社でも保管します。 お問い合わせ先の不動産会社が保管する個人情報の取り扱いについては、不動産会社に直接お問い合わせください。
東京都知事免許(3)第92500号 |
|---|
- 交通:
- JR山手線/池袋駅 徒歩5分
- 東京都豊島区池袋2丁目40-2 スペースG1 4F
- TEL:
- 03-3988-9982
- FAX:
- 03-3988-9983
- 所属団体:
- (公社)東京都宅地建物取引業協会会員(公社)首都圏不動産公正取引協議会加盟
取引態様:媒介  - 00104559
|
- スマートフォンで
この不動産会社を見る

|
- 提携サイト等より掲載されている物件情報につきましては、不動産会社詳細情報にリンクされていないものがあります。
- 物件に関するお問合せは、物件詳細ページの「情報提供会社」に表示されている不動産会社へ直接お願いいたします。
- 間取図は、現況を優先させていただきます。
- 映像は物件の一部を撮影したものです。物件の契約にあたっての最終判断はご自身の判断に基づいて行ってください。
- 仲介手数料について

アットホームは物件情報の適正化に努めております。
内容に誤りがある場合にはこちらへご連絡ください。