神奈川県厚木市田村町(本厚木駅)の中古マンション・新築マンション・分譲マンション:物件詳細
交通 所在地 |
駅徒歩 |
価格 |
構造 階建/階 |
間取り 専有面積 |
物件種目 築年月 |
|
小田急小田原線/本厚木
神奈川県厚木市田村町
|
8分
|
4,680万円
|
RC
12階建 / 11階
|
3LDK
80.38m²
|
中古マンション
2008年1月(築17年10ヶ月)
|
|
楽器相談、管理人日勤
|
|
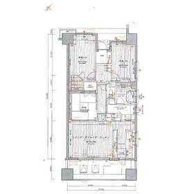
間取図
【間取図】
|
外観
【現地外観】
|
<
その他の画像
>
|
| 交通 | 小田急小田原線 本厚木駅 徒歩8分 |
|---|
| その他の交通 | JR相模線 厚木駅 徒歩30分 小田急小田原線 愛甲石田駅 徒歩34分 |
| 所在地 |
神奈川県厚木市田村町
|
| 物件種目 |
中古マンション |
| 価格 |
4,680万円 |
平米単価 |
58.23万円 |
| 管理費等 |
16,410円 |
修繕積立金 |
22,080円 |
| 借地期間・地代(月額) |
- |
権利金 |
- |
| 敷金または保証金 |
- / - |
維持費等 |
- |
| その他一時金 |
- |
|
|
| 間取り |
3LDK(LDK16.2 和5.5 洋5 洋7.5) |
専有面積 |
80.38m²(壁芯) |
| 階建 / 階 |
12階建 / 11階 |
バルコニー |
13.50m² |
| 築年月 |
2008年1月(築17年10ヶ月)
|
建物構造 |
RC |
| 駐車場 |
有 無料 |
総戸数 |
78戸 |
| 駐輪場 |
- |
バイク置き場 |
- |
| ペット |
-
|
|
|
| 土地権利 |
所有権 |
敷地面積 |
- |
| 管理形態/管理員の勤務形態 |
全部委託/日勤 |
国土法届出 |
- |
| アピールポイント |
【住まい、安心のおとりつぎ】
私共、朝日土地建物グループは、神奈川・東京・埼玉で展開し41年目になり6万件以上のお取引実績がございます。
■ご案内方法
(所要時間目安 1時間~お客様のご指定時間内にてご提案いたします。)
ご自宅へお迎え・最寄駅等でお待ち合わせ、弊社へのご来社など、お気軽にご相談ください。
周辺環境もあわせてご案内をさせていただいております。
■その他、物件見学以外の相談もお気軽におまちしております。
(所要時間目安 1時間~お客様のご指定時間内にてご提案いたします。)
住宅ローン相談。定年時の残債。住宅ローン控除はいくらみこめるか。
不動産取得税はいくらかかるか。
しっかりとプロとしてご質問にお答えします。
■その他諸々のご相談も受け付けております♪
お気軽にご相談ください!
■無料提携駐車場がございます。
詳しくは営業スタッフよりお伝えさせて頂きます。
お気軽にお問い合わせください。
設立以来41年、地元密着の朝日土地建物株式会社。
どうぞよろしくお願いいたします。
◆お問い合わせは朝日土地建物株式会社 海老名支店 営業3課まで◆ |
| 建物名・部屋番号 |
ランドシティ本厚木フェリス |
| リフォーム履歴 |
- |
| リノベーション履歴 |
- |
| 瑕疵保証 |
- |
| 瑕疵保険 |
- |
| 評価・証明書 |
- |
| 備考 |
主要採光面:南東向き
法令等制限:景観法 準防火地域 宅地造成工事規制区域
用途地域:2種住居、商業地域
~☆『11階角部屋♪』×『80m2超!』×『収納豊富な3LDK♪』☆~◇11階角部屋ということもあり、陽当たり、眺望、開放感が良好◇80m2超の為、居室も広く設けてあり、ゆったりとした生活が実現可能◇各居室に収納スペースを設けた収納豊富な3LDK
システムキッチン シャワー 独立洗面台 パウダールーム 洗濯機置場 バストイレ別 フローリング 和室 火災警報器(報知機) 給湯 BSアンテナ CSアンテナ 収納 各室収納スペース 洗面室収納 ウォークスルークローゼット バルコニー オートロック TVインターホン エレベーター 楽器相談 管理人日勤 平坦地
|
| エネルギー消費性能 |
- |
| 断熱性能 |
- |
| 目安光熱費 |
- |
| バス・トイレ |
- |
| キッチン |
システムキッチン |
| 設備・サービス |
収納スペース、オートロック、モニター付インターホン、洗濯機置場、給湯、都市ガス、火災警報器(報知機)、CS、BS端子、ウォークスルークローゼット |
| その他 |
エレベーター |
| 条件等 |
- |
現況 |
所有者居住中 |
| 引渡可能時期 |
相談 |
物件番号 |
1145158511 |
| 情報公開日 |
2025年10月2日 |
次回更新予定日 |
2025年10月30日 |
| ケータイ用バーコード |
- スマートフォンでこの物件を見る
- スマートフォンからもこの物件をご覧になれます。
|
※「-」と表示されている項目については、情報提供会社にご確認ください。
ここから簡単にお問い合わせをすることができます。
(SSLでの暗号化での送信を希望されるお客さまは
こちら
よりお問い合わせください)
お問い合わせを行う前に
「個人情報の取り扱いについて」を必ずお読みください。
「個人情報の取り扱いについて」に同意いただいた場合は「上記にご同意の上 確認画面へ進む」のボタンをクリックしてください。
個人情報の取り扱いについて
皆さまが送付された個人情報はアットホーム(株)のサーバを経由し、お問い合わせ先の不動産会社にメールまたはFAXにて転送されるためアットホーム(株)にも保管されます。アットホーム(株)で保管された個人情報の取り扱いについては、【こちら】をご覧ください。
また、本画面でご記入いただいた個人情報は、お問い合わせ先の不動産会社でも保管します。 お問い合わせ先の不動産会社が保管する個人情報の取り扱いについては、不動産会社に直接お問い合わせください。
国土交通大臣免許(9)第3744号 |
|---|
- 交通:
- 小田急小田原線/海老名駅 徒歩3分
- 神奈川県海老名市中央3丁目1-5
- TEL:
- 0120-50-9213
- FAX:
- 046-234-9217
- 所属団体:
- (公社)神奈川県宅地建物取引業協会会員(公社)首都圏不動産公正取引協議会加盟
取引態様:専任媒介  - 00781618
|
- スマートフォンで
この不動産会社を見る

|
- 提携サイト等より掲載されている物件情報につきましては、不動産会社詳細情報にリンクされていないものがあります。
- 物件に関するお問合せは、物件詳細ページの「情報提供会社」に表示されている不動産会社へ直接お願いいたします。
- 間取図は、現況を優先させていただきます。
- 映像は物件の一部を撮影したものです。物件の契約にあたっての最終判断はご自身の判断に基づいて行ってください。
- 仲介手数料について

アットホームは物件情報の適正化に努めております。
内容に誤りがある場合にはこちらへご連絡ください。