山口県下関市上田中町4丁目(下関駅)の中古マンション・新築マンション・分譲マンション:物件詳細
交通 所在地 |
駅徒歩 |
価格 |
構造 階建/階 |
間取り 専有面積 |
物件種目 築年月 |
|
JR山陽本線/下関
山口県下関市上田中町4丁目
|
36分
|
1,690万円
|
SRC
地上12階地下1階建 / 2階
|
2SLDK
69.50m²
|
中古マンション
2004年7月(築21年11ヶ月)
|
|
ペット相談、24時間換気システム、管理人巡回
|
|
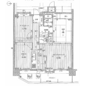
間取図
|
リビング
|
<
その他の画像
>
|
| 交通 | JR山陽本線 下関駅 徒歩36分 |
| 所在地 |
山口県下関市上田中町4丁目
|
| 物件種目 |
中古マンション |
| 価格 |
1,690万円 |
平米単価 |
24.32万円 |
| 管理費等 |
6,600円 |
修繕積立金 |
12,500円 |
| 借地期間・地代(月額) |
- |
権利金 |
- |
| 敷金または保証金 |
- / - |
維持費等 |
- |
| その他一時金 |
なし |
|
|
| 間取り |
2SLDK(洋室6.4帖 洋室6.0帖 S5.5帖 LDK13.4帖) |
専有面積 |
69.50m²(壁芯) |
| 階建 / 階 |
地上12階地下1階建 / 2階 |
バルコニー |
14.16m² |
| 築年月 |
2004年7月(築21年11ヶ月)
|
建物構造 |
SRC |
| 駐車場 |
有 5,000円/月 |
総戸数 |
58戸 |
| 駐輪場 |
有 |
バイク置き場 |
有 |
| ペット |
相談 |
|
|
| 土地権利 |
所有権 |
敷地面積 |
- |
| 管理形態/管理員の勤務形態 |
全部委託/巡回 |
国土法届出 |
- |
| アピールポイント |
☆おすすめポイント☆
「物件情報」
・3LDK(表記2SLDK)でしっかり独立した3部屋を確保
・キッチン、バス、トイレも新品にリフォーム済
・眺望、風通し〇
・住宅ローン控除対象
「周辺環境」
・マックスバリュー徒歩6分、小・中学校は徒歩8分
・市役所、銀行も近く、下関駅が最寄り駅
(株)東武住販は土日祝日も営業中!物件のご内覧、リフォームや住宅ローン、住み替えのご相談など、なんでもお気軽にお問合せください
|
| 建物名・部屋番号 |
ジェイシティ下関 |
| リフォーム履歴 |
■水回り:2025年9月 キッチン、浴室、トイレ ■内装:2025年9月 内装全面(床・壁・天井・建具) ※実施年月は最も古い履歴を表示 |
| リノベーション履歴 |
- |
| 瑕疵保証 |
- |
| 瑕疵保険 |
- |
| 評価・証明書 |
- |
| 備考 |
主要採光面:東向き
用途地域:1種住居
「物件情報」
・3LDK(表記2SLDK)でしっかり独立した3部屋を確保
・キッチン、バス、トイレも新品にリフォーム済
・眺望、風通し〇
・住宅ローン控除対象
|
| エネルギー消費性能 |
- |
| 断熱性能 |
- |
| 目安光熱費 |
- |
| バス・トイレ |
浴室暖房、浴室乾燥機、追焚機能、温水洗浄便座、浴室に窓あり |
| キッチン |
システムキッチン、3口以上コンロ |
| 設備・サービス |
モニター付オートロック、全居室収納、バイク置き場、オートロック、モニター付インターホン、駐輪場 |
| その他 |
宅配BOX、エレベーター |
| 条件等 |
- |
現況 |
空家 |
| 引渡可能時期 |
即時 |
物件番号 |
1145566714 |
| 仲介手数料 |
売買代金の3% |
|
|
| 情報公開日 |
2025年9月13日 |
次回更新予定日 |
2026年5月16日 |
| ケータイ用バーコード |
- スマートフォンでこの物件を見る
- スマートフォンからもこの物件をご覧になれます。
|
※「-」と表示されている項目については、情報提供会社にご確認ください。
| 周辺施設 |
下関市立文関小学校 |
| 距離 |
580m |
写真を見る |
| 周辺施設 |
下関市立日新中学校 |
| 距離 |
610m |
写真を見る |
| 周辺施設 |
下関市役所 |
| 距離 |
1040m |
写真を見る |
| 周辺施設 |
マックスバリュ上田中店 |
| 距離 |
410m |
写真を見る |
| 周辺施設 |
セブンイレブン下関上田中店 |
| 距離 |
260m |
| 周辺施設 |
サンキュードラッグ上田中町店 |
| 距離 |
440m |
写真を見る |
| 周辺施設 |
しものせき皮膚科クリニック |
| 距離 |
3360m |
写真を見る |
ここから簡単にお問い合わせをすることができます。
(SSLでの暗号化での送信を希望されるお客さまは
こちら
よりお問い合わせください)
お問い合わせを行う前に
「個人情報の取り扱いについて」を必ずお読みください。
「個人情報の取り扱いについて」に同意いただいた場合は「上記にご同意の上 確認画面へ進む」のボタンをクリックしてください。
個人情報の取り扱いについて
皆さまが送付された個人情報はアットホーム(株)のサーバを経由し、お問い合わせ先の不動産会社にメールまたはFAXにて転送されるためアットホーム(株)にも保管されます。アットホーム(株)で保管された個人情報の取り扱いについては、【こちら】をご覧ください。
また、本画面でご記入いただいた個人情報は、お問い合わせ先の不動産会社でも保管します。 お問い合わせ先の不動産会社が保管する個人情報の取り扱いについては、不動産会社に直接お問い合わせください。
国土交通大臣免許(7)第5407号 |
|---|
- 交通:
- JR山陽本線/下関駅 【バス】 三百目 停歩1分
- 山口県下関市岬之町11-46
- TEL:
- 083-222-1111
- FAX:
- 083-222-4444
- 所属団体:
- (公社)山口県宅地建物取引業協会会員不動産公正取引協議会加盟
取引態様:一般媒介  - 80908076
|
- スマートフォンで
この不動産会社を見る

|
- 提携サイト等より掲載されている物件情報につきましては、不動産会社詳細情報にリンクされていないものがあります。
- 物件に関するお問合せは、物件詳細ページの「情報提供会社」に表示されている不動産会社へ直接お願いいたします。
- 間取図は、現況を優先させていただきます。
- 映像は物件の一部を撮影したものです。物件の契約にあたっての最終判断はご自身の判断に基づいて行ってください。
- 仲介手数料について

アットホームは物件情報の適正化に努めております。
内容に誤りがある場合にはこちらへご連絡ください。