神奈川県大和市下鶴間(鶴間駅)の中古マンション・新築マンション・分譲マンション:物件詳細
交通 所在地 |
駅徒歩 |
価格 |
構造 階建/階 |
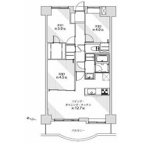
間取り 専有面積 |
物件種目 築年月 |
小田急江ノ島線/鶴間
神奈川県大和市下鶴間
|
16分
|
2,090万円
|
SRC
14階建 / 7階
|
3LDK
60.27m²
|
中古マンション
1990年8月(築35年3ヶ月)
|
閑静な住宅街、管理人日勤
|
間取図
間取り図
|
外観
現地外観
|
<
その他の画像
>
|
交通 | 小田急江ノ島線 鶴間駅 徒歩16分 |
---|
その他の交通 | 小田急江ノ島線 南林間駅 徒歩24分 東急田園都市線 つきみ野駅 徒歩27分 |
所在地 |
神奈川県大和市下鶴間
|
物件種目 |
中古マンション |
価格 |
2,090万円 |
平米単価 |
34.68万円 |
管理費等 |
7,800円 |
修繕積立金 |
11,630円 |
借地期間・地代(月額) |
- |
権利金 |
- |
敷金または保証金 |
- / - |
維持費等 |
- |
その他一時金 |
なし |
|
|
間取り |
3LDK |
専有面積 |
60.27m²(壁芯) |
階建 / 階 |
14階建 / 7階 |
バルコニー |
18.23m² |
築年月 |
1990年8月(築35年3ヶ月)
|
建物構造 |
SRC |
駐車場 |
有 10,000円/月 |
総戸数 |
204戸 |
駐輪場 |
- |
バイク置き場 |
- |
ペット |
-
|
|
|
土地権利 |
所有権 |
敷地面積 |
- |
管理形態/管理員の勤務形態 |
全部委託/日勤 |
国土法届出 |
- |
アピールポイント |
全ての居室が洋室の物件です。1か月間のパーキングスペース利用価格は10000円です。フローリングにはオシャレな洋風インテリアもピッタリです。専有面積60.27平米の物件です。18.23㎡のバルコニー付き物件です。こちらの物件はいかがでしょうか。価格は2,090万円です。中古ながらも綺麗な室内と魅力的な住環境のマンションです。 |
建物名・部屋番号 |
ダイヤパレス鶴間 |
リフォーム履歴 |
■水回り:2025年5月 キッチン、浴室、トイレ ■内装:2025年5月 床(フローリング等)、壁・天井(クロス・塗装等) 給湯設備交換、配管、エアコン先行配管、建具など ■その他:2025年5月 内装(キッチン 浴室 トイレ 壁 床 全室 給湯設備交換、配管、エアコン先行配管、建具など) ※実施年月は最も古い履歴を表示 |
リノベーション履歴 |
- |
瑕疵保証 |
- |
瑕疵保険 |
- |
評価・証明書 |
- |
備考 |
主要採光面:西向き
◇室内 リフォーム済みの綺麗な室内です♪すぐにお住まいいただけます♪ 人気の対面式キッチンは、家事をしながらリビングが見渡せるため、お子様のいるご家庭も安心です♪ 食洗器付きなので、家事のご負担を減らせます♪ 浴室には浴室乾燥機付きなので、雨の日のお洗濯も安心です♪ ■特徴 小田急江ノ島線「鶴間駅」まで徒歩約16分の好立地です♪ 周辺にはお買い物施設などが多数あり、生活環境良好です♪ 総戸数204戸のビックコミュニティなので、安心してお住まいいただけます♪ ※容認事項あり。詳細はお問合せください。
|
エネルギー消費性能 |
- |
断熱性能 |
- |
目安光熱費 |
- |
バス・トイレ |
浴室乾燥機、オートバス、追焚機能 |
キッチン |
カウンターキッチン、システムキッチン、食器洗浄乾燥機、浄水器 |
設備・サービス |
全居室収納、収納スペース、クローゼット、全居室フローリング、ワイドバルコニー |
その他 |
- |
条件等 |
- |
現況 |
空家 |
引渡可能時期 |
相談 |
物件番号 |
1147778914 |
情報公開日 |
2025年9月23日 |
次回更新予定日 |
2025年11月1日 |
ケータイ用バーコード |
- スマートフォンでこの物件を見る
- スマートフォンからもこの物件をご覧になれます。
|
※「-」と表示されている項目については、情報提供会社にご確認ください。
周辺施設 |
大和山王幼稚園 |
距離 |
778m |
写真を見る |
周辺施設 |
学校法人かつみ学園 木の子保育園 |
距離 |
854m |
写真を見る |
周辺施設 |
大和市立大和小学校 |
距離 |
931m |
写真を見る |
周辺施設 |
大和市立鶴間中学校 |
距離 |
1191m |
写真を見る |
周辺施設 |
業務スーパー 大和店 |
距離 |
159m |
写真を見る |
周辺施設 |
南町田グランベリーパーク |
距離 |
2049m |
写真を見る |
周辺施設 |
ファミリーマート 横浜町田マルハン店 |
距離 |
1327m |
写真を見る |
ここから簡単にお問い合わせをすることができます。
(SSLでの暗号化での送信を希望されるお客さまは
こちら
よりお問い合わせください)
お問い合わせを行う前に
「個人情報の取り扱いについて」を必ずお読みください。
「個人情報の取り扱いについて」に同意いただいた場合は「上記にご同意の上 確認画面へ進む」のボタンをクリックしてください。
個人情報の取り扱いについて
皆さまが送付された個人情報はアットホーム(株)のサーバを経由し、お問い合わせ先の不動産会社にメールまたはFAXにて転送されるためアットホーム(株)にも保管されます。アットホーム(株)で保管された個人情報の取り扱いについては、【こちら】をご覧ください。
また、本画面でご記入いただいた個人情報は、お問い合わせ先の不動産会社でも保管します。 お問い合わせ先の不動産会社が保管する個人情報の取り扱いについては、不動産会社に直接お問い合わせください。
東京都知事免許(2)第104540号 |
---|
- 交通:
- 小田急小田原線/町田駅 徒歩15分 【バス】1分 森野3丁目 停歩4分
- 東京都町田市森野3丁目18番17号 WING森野201
- TEL:
- 042-785-4930
- FAX:
- 042-785-4940
- 所属団体:
- (公社)東京都宅地建物取引業協会会員(公社)首都圏不動産公正取引協議会加盟
取引態様:媒介  - 00268032
|
- スマートフォンで
この不動産会社を見る

|
- 提携サイト等より掲載されている物件情報につきましては、不動産会社詳細情報にリンクされていないものがあります。
- 物件に関するお問合せは、物件詳細ページの「情報提供会社」に表示されている不動産会社へ直接お願いいたします。
- 間取図は、現況を優先させていただきます。
- 映像は物件の一部を撮影したものです。物件の契約にあたっての最終判断はご自身の判断に基づいて行ってください。
- 仲介手数料について

アットホームは物件情報の適正化に努めております。
内容に誤りがある場合にはこちらへご連絡ください。