東京都八王子市八日町(八王子駅)の中古マンション・新築マンション・分譲マンション:物件詳細
交通 所在地 |
駅徒歩 |
価格 |
構造 階建/階 |
間取り 専有面積 |
物件種目 築年月 |
|
JR中央線/八王子
東京都八王子市八日町
|
12分
|
5,990万円
|
RC
18階建 / 18階
|
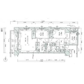
3LDK
82.94m²
|
中古マンション
2016年12月(築9年6ヶ月)
|
|
角部屋、最上階、管理人日勤
|
|
間取図
広々とした20帖以上のLDKで家族団らんな住まい
|
外観
【2026年01月撮影】
|
<
その他の画像
>
|
| 交通 | JR中央線 八王子駅 徒歩12分 |
|---|
| その他の交通 | 京王線 京王八王子駅 徒歩14分 JR中央線 西八王子駅 徒歩24分 |
| 所在地 |
東京都八王子市八日町
|
| 物件種目 |
中古マンション |
| 価格 |
5,990万円 |
平米単価 |
72.23万円 |
| 管理費等 |
13,020円 |
修繕積立金 |
16,670円 |
| 借地期間・地代(月額) |
- |
権利金 |
- |
| 敷金または保証金 |
- / - |
維持費等 |
インターネット接続料:1,620円/月 |
| その他一時金 |
- |
|
|
| 間取り |
3LDK |
専有面積 |
82.94m²(壁芯) |
| 階建 / 階 |
18階建 / 18階 |
バルコニー |
9.72m² |
| 築年月 |
2016年12月(築9年6ヶ月)
|
建物構造 |
RC |
| 駐車場 |
- |
総戸数 |
221戸 |
| 駐輪場 |
有 |
バイク置き場 |
有 |
| ペット |
-
|
|
|
| 土地権利 |
所有権 |
敷地面積 |
- |
| 管理形態/管理員の勤務形態 |
全部委託/日勤 |
国土法届出 |
- |
| アピールポイント |
JR中央線「八王子」駅から徒歩圏内という利便性の高い立地に位置する分譲マンション「パークホームズ八王子」。
駅周辺には商業施設や飲食店が多数揃っており、日々の生活に便利な環境が整っています。
マンション全体は落ち着いた雰囲気で、しっかりとした管理体制が保たれています。
重厚感のある外観デザインに加え、エントランスや共用部も上品で清潔感があり、住まう方に安心感を与えます。
お部屋は陽当たり・通風ともに良好で、開放感のある間取り。
室内は丁寧に使用されており、そのままでも快適にお住まいいただけます。
また、生活動線にも配慮された設計で、日常の暮らしやすさを感じていただける造りです。
利便性と快適性を兼ね備えた環境で、都心へのアクセスも良好。
八王子エリアで駅近・良質な住まいをお探しの方にぜひご覧いただきたいおすすめの物件です。 |
| 建物名・部屋番号 |
パークホームズ八王子 |
| リフォーム履歴 |
- |
| リノベーション履歴 |
- |
| 瑕疵保証 |
- |
| 瑕疵保険 |
- |
| 評価・証明書 |
- |
| 備考 |
主要採光面:西向き
法令等制限:景観法 航空法 防火地域 高度地区
施工会社:長谷工コーポレーション
用途地域:商業地域
最上階 陽当り良好 眺望良好 2沿線以上利用可 始発駅 駐輪場 バイク置場 オープンキッチン 対面式キッチン 浄水器 浴室暖房 浴室乾燥機 追焚き給湯 省エネ給湯器 温水洗浄便座 独立洗面台 シャワー付き洗面化粧台 室内洗濯機置場 全居室収納スペース 角部屋 カウンターキッチン ウォークインクローゼット バルコニー 全居室フローリング TVインターホン ダブルロックドア 管理人日勤 LDK15帖以上 LDK20帖以上 火災警報器(報知機) エレベーター 見学可 LDK18帖以上 洗面室収納 宅配ボックス
|
| エネルギー消費性能 |
- |
| 断熱性能 |
- |
| 目安光熱費 |
- |
| バス・トイレ |
浴室暖房、浴室乾燥機、追焚機能、シャワー付洗面化粧台、温水洗浄便座 |
| キッチン |
カウンターキッチン、オープンキッチン、浄水器 |
| 設備・サービス |
全居室収納、ウォークインクローゼット、バイク置き場、モニター付インターホン、ダブルロックドア、洗濯機置場、省エネ給湯器、全居室フローリング、都市ガス、駐輪場、火災警報器(報知機) |
| その他 |
宅配BOX、エレベーター |
| 条件等 |
- |
現況 |
空家 |
| 引渡可能時期 |
即時 |
物件番号 |
1147990011 |
| 情報公開日 |
2026年4月5日 |
次回更新予定日 |
2026年5月20日 |
| ケータイ用バーコード |
- スマートフォンでこの物件を見る
- スマートフォンからもこの物件をご覧になれます。
|
※「-」と表示されている項目については、情報提供会社にご確認ください。
| 周辺施設 |
中央本線「八王子」駅迄930m |
| 距離 |
930m |
写真を見る |
| 周辺施設 |
エコス大横店迄430m |
| 距離 |
430m |
写真を見る |
| 周辺施設 |
セブンイレブン 八王子八日町5丁目店迄190m |
| 距離 |
190m |
写真を見る |
| 周辺施設 |
福原内科クリニック迄170m |
| 距離 |
170m |
写真を見る |
| 周辺施設 |
南新町ちびっこ公園迄260m |
| 距離 |
260m |
写真を見る |
| 周辺施設 |
八王子市立第五中学校迄1500m |
| 距離 |
1500m |
写真を見る |
| 周辺施設 |
八王子市立第一小学校迄820m |
| 距離 |
820m |
写真を見る |
| 周辺施設 |
まや保育園迄400m |
| 距離 |
400m |
写真を見る |
ここから簡単にお問い合わせをすることができます。
(SSLでの暗号化での送信を希望されるお客さまは
こちら
よりお問い合わせください)
お問い合わせを行う前に
「個人情報の取り扱いについて」を必ずお読みください。
「個人情報の取り扱いについて」に同意いただいた場合は「上記にご同意の上 確認画面へ進む」のボタンをクリックしてください。
個人情報の取り扱いについて
皆さまが送付された個人情報はアットホーム(株)のサーバを経由し、お問い合わせ先の不動産会社にメールまたはFAXにて転送されるためアットホーム(株)にも保管されます。アットホーム(株)で保管された個人情報の取り扱いについては、【こちら】をご覧ください。
また、本画面でご記入いただいた個人情報は、お問い合わせ先の不動産会社でも保管します。 お問い合わせ先の不動産会社が保管する個人情報の取り扱いについては、不動産会社に直接お問い合わせください。
国土交通大臣免許(9)第3744号 |
|---|
- 交通:
- JR中央線/八王子駅 徒歩1分
- 東京都八王子市旭町10-3 安嶋中央ビル4F
- TEL:
- 0120-57-6311
- FAX:
- 042-642-4312
- 所属団体:
- (公社)東京都宅地建物取引業協会会員(公社)首都圏不動産公正取引協議会加盟
取引態様:専任媒介  - 00781572
|
- スマートフォンで
この不動産会社を見る

|
- 提携サイト等より掲載されている物件情報につきましては、不動産会社詳細情報にリンクされていないものがあります。
- 物件に関するお問合せは、物件詳細ページの「情報提供会社」に表示されている不動産会社へ直接お願いいたします。
- 間取図は、現況を優先させていただきます。
- 映像は物件の一部を撮影したものです。物件の契約にあたっての最終判断はご自身の判断に基づいて行ってください。
- 仲介手数料について

アットホームは物件情報の適正化に努めております。
内容に誤りがある場合にはこちらへご連絡ください。