不動産 賃貸 マンション等の住宅情報:埼玉住まい情報


大阪府箕面市船場東3丁目(箕面船場阪大前駅)の中古マンション・新築マンション・分譲マンション:物件詳細

  • 物件詳細
  • 情報の見方
  • 印刷用画面
交通
所在地
駅徒歩 価格 構造
階建/階
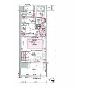
間取り
専有面積
物件種目
築年月

北大阪急行/箕面船場阪大前

大阪府箕面市船場東3丁目

3分

4,180万円

RC

30階建 / 6階

1SLDK

31.97m²

中古マンション

2025年1月(築1年未満)

おすすめPOINT管理人日勤

間取図

  • とりあえず保存
  • お問い合わせ
交通

北大阪急行 箕面船場阪大前駅 徒歩3分

その他の交通

北大阪急行 千里中央駅 徒歩20分

所在地 大阪府箕面市船場東3丁目
物件種目 中古マンション
価格 4,180万円 平米単価 130.75万円
管理費等 9,020円 修繕積立金 3,300円
借地期間・地代(月額) 権利金
敷金または保証金 - / - 維持費等
その他一時金 なし    
間取り 1SLDK(LDK8、洋3.5、S0.6) 専有面積 31.97m²(壁芯)
階建 / 階 30階建 / 6階 バルコニー 7.58m²
築年月 2025年1月(築1年未満) 建物構造 RC
駐車場 総戸数 397戸
駐輪場 バイク置き場
ペット    
土地権利 所有権 敷地面積
管理形態/管理員の勤務形態 全部委託/日勤 国土法届出
建物名・部屋番号 ブリリアタワー箕面船場 6F
リフォーム履歴
リノベーション履歴
瑕疵保証
瑕疵保険
評価・証明書
備考
主要採光面:西向き
施工会社:(株)竹中工務店
用途地域:商業地域
エネルギー消費性能
断熱性能
目安光熱費
バス・トイレ
キッチン
設備・サービス 都市ガス、インターネット対応
その他
条件等 現況 空家
引渡可能時期 即時 物件番号 1148021914
情報公開日 2025年9月29日 次回更新予定日 2025年10月28日
ケータイ用バーコード

QRコード

スマートフォンでこの物件を見る
スマートフォンからもこの物件をご覧になれます。
※「-」と表示されている項目については、情報提供会社にご確認ください。

クイックお問い合わせ

ここから簡単にお問い合わせをすることができます。
(SSLでの暗号化での送信を希望されるお客さまは こちら よりお問い合わせください)

お問い合わせ内容(必須)
お名前(必須) 姓  名 
メールアドレス(必須)
※携帯電話のメールアドレスをご入力される方はこちらをご確認ください
電話番号(必須)
- -

※入力いただいた電話番号へSMSまたは音声でパスワードをご連絡します。

携帯電話の番号をご入力の方へ

携帯電話の番号をご入力の方へ
確認画面にて送信ボタンをクリックするとSMSが携帯電話に届きます。
そのSMSに記載のパスワード(認証番号)を入力し、お問い合わせを完了してください。
尚、SMSの送信者番号は 0005 202 760 となります。
これはアットホームの固定番号です。

備考欄 希望条件、物件案内希望日、質問などがございましたらご記入ください。
お問い合わせを行う前に「個人情報の取り扱いについて」を必ずお読みください。
「個人情報の取り扱いについて」に同意いただいた場合は「上記にご同意の上 確認画面へ進む」のボタンをクリックしてください。

個人情報の取り扱いについて

皆さまが送付された個人情報はアットホーム(株)のサーバを経由し、お問い合わせ先の不動産会社にメールまたはFAXにて転送されるためアットホーム(株)にも保管されます。アットホーム(株)で保管された個人情報の取り扱いについては、【こちら】をご覧ください。
また、本画面でご記入いただいた個人情報は、お問い合わせ先の不動産会社でも保管します。 お問い合わせ先の不動産会社が保管する個人情報の取り扱いについては、不動産会社に直接お問い合わせください。

情報提供会社

情報提供会社

タワーマンション専門TOWERZ (株)ES&Company

国土交通大臣免許(1)第10312号

交通:
地下鉄御堂筋線/本町駅 徒歩3分
大阪府大阪市中央区淡路町3丁目6-3 御堂筋MTRビル1階
TEL:
06-6684-9636
FAX:
06-6684-9637
所属団体:
(公社)全日本不動産協会会員
(公社)近畿地区不動産公正取引協議会加盟

取引態様:一般媒介

  • 会社情報
  • 50102588
スマートフォンで
この不動産会社を見る
QRコード
  • とりあえず保存
  • お問い合わせ
  • 提携サイト等より掲載されている物件情報につきましては、不動産会社詳細情報にリンクされていないものがあります。
  • 物件に関するお問合せは、物件詳細ページの「情報提供会社」に表示されている不動産会社へ直接お願いいたします。
  • 間取図は、現況を優先させていただきます。
  • 映像は物件の一部を撮影したものです。物件の契約にあたっての最終判断はご自身の判断に基づいて行ってください。
  • 仲介手数料について仲介手数料

アットホームは物件情報の適正化に努めております。 内容に誤りがある場合にはこちらへご連絡ください。

【埼玉住まい情報】では、日本全国の物件から賃貸マンションや賃貸アパート・賃貸一戸建て等の賃貸住宅情報、新築マンション・分譲マンションや中古マンション等の売買マンション情報、新築一戸建てや中古一戸建てなどの戸建住宅、 土地など、総合的な不動産住宅情報検索サービスを提供致します。
【埼玉住まい情報】から、選りすぐりの不動産物件を探してみましょう。

【免責事項】
このコーナーの運営はアットホーム株式会社(https://www.athome.co.jp/)が行っています。
このコーナーに掲載している物件情報は、「アットホーム不動産情報ネットワーク」に加盟する不動産会社等(情報提供元)から提供されています。信頼性の高い情報提供が行えるよう、最大限の努力をしておりますが、その内容を保証するものではありません。 利用者のみなさまと各情報提供元との取引に起因する損害および情報が掲載されたことに起因する損害等については、株式会社イーシティ埼玉、およびアットホームは一切責任を負いません。
各物件情報の内容や画像等はすべて現況を優先させていただきます。
お取引等(お取引の準備、資金調達等を含みます)の際には、内容や契約条件等について、各情報提供元より十分な説明を受け、ご自身でご確認の上、判断してください。
このコーナーへの物件情報のご掲載、その他不動産業務ソリューション等についての不動産会社様のお問合せはこちらからお願いいたします。

物件画像: