福岡県北九州市八幡西区里中3丁目(永犬丸駅)の中古マンション・新築マンション・分譲マンション:物件詳細
交通 所在地 |
駅徒歩 |
価格 |
構造 階建/階 |
間取り 専有面積 |
物件種目 築年月 |
|
筑豊電気鉄道/永犬丸
福岡県北九州市八幡西区里中3丁目
|
5分
|
1,680万円
|
SRC
11階建 / 9階
|
4LDK
84.84m²
|
中古マンション
2002年8月(築23年3ヶ月)
|
|
ペット相談、楽器相談、角部屋、3面採光、24時間換気システム
|
|
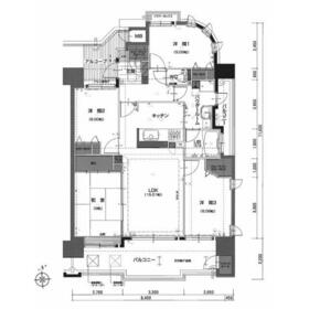
間取図
●4LDK専有面積84.84㎡●バルコニー面積19.75㎡●アルコープ面積6.99㎡ 合計面積111.58㎡(33.75坪)
|
外観
|
<
その他の画像
>
|
| 交通 | 筑豊電気鉄道 永犬丸駅 徒歩5分 |
|---|
| その他の交通 | 筑豊電気鉄道 三ヶ森駅 徒歩10分 筑豊電気鉄道 今池駅 徒歩10分 |
| 所在地 |
福岡県北九州市八幡西区里中3丁目
|
| 物件種目 |
中古マンション |
| 価格 |
1,680万円 |
平米単価 |
19.81万円 |
| 管理費等 |
6,610円 |
修繕積立金 |
15,270円 |
| 借地期間・地代(月額) |
- |
権利金 |
- |
| 敷金または保証金 |
- / - |
維持費等 |
- |
| その他一時金 |
なし |
|
|
| 間取り |
4LDK(LDK15、和6、洋5、5、6) |
専有面積 |
84.84m² |
| 階建 / 階 |
11階建 / 9階 |
バルコニー |
19.75m² |
| 築年月 |
2002年8月(築23年3ヶ月)
|
建物構造 |
SRC |
| 駐車場 |
有 7,000円/月 |
総戸数 |
30戸 |
| 駐輪場 |
有 |
バイク置き場 |
無 |
| ペット |
小型犬可・ 猫可 |
|
|
| 土地権利 |
所有権 |
敷地面積 |
- |
| 管理形態/管理員の勤務形態 |
全部委託/不在 |
国土法届出 |
- |
| アピールポイント |
筑豊電鉄「永犬丸」駅から徒歩5分。
永犬丸小学校・永犬丸中学校まで歩いて通える距離だから、毎日の通学も安心です。
築23年の分譲マンションは、落ち着いた雰囲気の住環境にあり、管理体制もしっかり。お子さまのいるご家庭にも安心しておすすめできます。
ペットの飼育も可能なので、お子さまと一緒にペットと暮らしたいご家族にもぴったり。
近くには金山川沿いの散歩道があり、休日には家族でお散歩や遊びに出かけるのにも最適なロケーションです。
通勤・通学・子育て環境、すべてがバランスよく整った、永犬丸エリアで新しい暮らしを始めませんか、空き家となっていますので内覧が可能です。 |
| 建物名・部屋番号 |
リヴィエール黒崎西 |
| リフォーム履歴 |
- |
| リノベーション履歴 |
- |
| 瑕疵保証 |
- |
| 瑕疵保険 |
- |
| 評価・証明書 |
- |
| 備考 |
主要採光面:南東向き
施工会社:福屋建設(株)
用途地域:1種中高
筑豊電鉄「永犬丸」駅から徒歩5分。 永犬丸小学校・永犬丸中学校まで歩いて通える距離だから、毎日の通学も安心です。 築23年の分譲マンションは、落ち着いた雰囲気の住環境にあり、管理体制もしっかり。お子さまのいるご家庭にも安心しておすすめできます。ペットの飼育も可能なので、お子さまと一緒にペットと暮らしたいご家族にもぴったり。 近くには金山川沿いの散歩道があり、休日には家族でお散歩や遊びに出かけるのにも最適なロケーションです。 通勤・通学・子育て環境、すべてがバランスよく整った、永犬丸エリアで新しい暮らしを始めませんか。
日当たりのいい南のバルコニーに面して3室を配置した角住戸設計。北側の洋間は川の眺望が広がるアール状の空間デザインになっています。キッチンから洗面台、勝手口、バルコニーの家事動線も良いです。近くにはローソン 永犬丸五丁目店(徒歩3分)がありちょっとした買い物に便利です。アップライトピアノ可、ペット飼育可、公共交通機関では永犬丸駅徒歩5分の物件です。
|
| エネルギー消費性能 |
- |
| 断熱性能 |
- |
| 目安光熱費 |
- |
| バス・トイレ |
オートバス、追焚機能、温水洗浄便座 |
| キッチン |
カウンターキッチン、システムキッチン、浄水器、3口以上コンロ |
| 設備・サービス |
モニター付オートロック、ウォークインクローゼット、三面バルコニー、収納スペース、室内洗濯機置場、トランクルーム、クローゼット、オートロック、モニター付インターホン、ディンプルキー、防犯カメラ、洗濯機置場、給湯、アルコーブ、都市ガス、駐輪場 |
| その他 |
宅配BOX、来客用駐車場、エレベーター |
| 条件等 |
- |
現況 |
空家 |
| 引渡可能時期 |
相談 |
物件番号 |
1148347314 |
| 情報公開日 |
2025年10月4日 |
次回更新予定日 |
2025年11月6日 |
| ケータイ用バーコード |
- スマートフォンでこの物件を見る
- スマートフォンからもこの物件をご覧になれます。
|
※「-」と表示されている項目については、情報提供会社にご確認ください。
| 周辺施設 |
八幡みなみ幼稚園 |
| 距離 |
454m |
写真を見る |
| 周辺施設 |
永犬丸小学校 |
| 距離 |
574m |
写真を見る |
| 周辺施設 |
永犬丸中学校 |
| 距離 |
482m |
写真を見る |
| 周辺施設 |
スターバックス八幡永犬丸店 |
| 距離 |
380m |
写真を見る |
| 周辺施設 |
ほっともっと永犬丸店 |
| 距離 |
381m |
写真を見る |
| 周辺施設 |
セリア 永犬丸店 |
| 距離 |
371m |
写真を見る |
| 周辺施設 |
ローソン 八幡里中三丁目店 |
| 距離 |
286m |
写真を見る |
ここから簡単にお問い合わせをすることができます。
(SSLでの暗号化での送信を希望されるお客さまは
こちら
よりお問い合わせください)
お問い合わせを行う前に
「個人情報の取り扱いについて」を必ずお読みください。
「個人情報の取り扱いについて」に同意いただいた場合は「上記にご同意の上 確認画面へ進む」のボタンをクリックしてください。
個人情報の取り扱いについて
皆さまが送付された個人情報はアットホーム(株)のサーバを経由し、お問い合わせ先の不動産会社にメールまたはFAXにて転送されるためアットホーム(株)にも保管されます。アットホーム(株)で保管された個人情報の取り扱いについては、【こちら】をご覧ください。
また、本画面でご記入いただいた個人情報は、お問い合わせ先の不動産会社でも保管します。 お問い合わせ先の不動産会社が保管する個人情報の取り扱いについては、不動産会社に直接お問い合わせください。
福岡県知事免許(1)第20997号 |
|---|
- 交通:
- 筑豊電気鉄道/三ヶ森駅 徒歩7分
- 福岡県北九州市八幡西区永犬丸5丁目2-20
- TEL:
- 093-695-1238
- 所属団体:
- (公社)福岡県宅地建物取引業協会会員(一社)九州不動産公正取引協議会加盟
取引態様:専任媒介  - 80508664
|
- スマートフォンで
この不動産会社を見る

|
- 提携サイト等より掲載されている物件情報につきましては、不動産会社詳細情報にリンクされていないものがあります。
- 物件に関するお問合せは、物件詳細ページの「情報提供会社」に表示されている不動産会社へ直接お願いいたします。
- 間取図は、現況を優先させていただきます。
- 映像は物件の一部を撮影したものです。物件の契約にあたっての最終判断はご自身の判断に基づいて行ってください。
- 仲介手数料について

アットホームは物件情報の適正化に努めております。
内容に誤りがある場合にはこちらへご連絡ください。