大阪府大阪市浪速区湊町2丁目(JR難波駅)の中古マンション・新築マンション・分譲マンション:物件詳細
交通 所在地 |
駅徒歩 |
価格 |
構造 階建/階 |
間取り 専有面積 |
物件種目 築年月 |
JR関西本線/JR難波
大阪府大阪市浪速区湊町2丁目
|
1分
|
8,880万円
|
RC
地上25階地下1階建 / 22階
|
2LDK
72.44m²
|
中古マンション
2014年9月(築11年2ヶ月)
|
ペット相談、常時ゴミ出し可能、24時間セキュリティー、免震構造、100年コンクリート、閑静な住宅街、管理人常駐
|
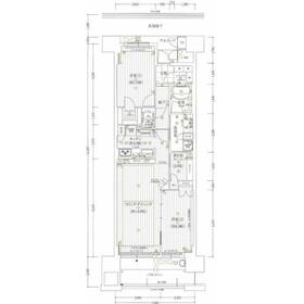
間取図
【間取り】22階・2LDK西向き住戸☆高層階のため眺望良好!
|
外観
【外観】「JR難波」駅前に、板状型タワーと自然(リバーガーデン)が融合した超高層レジデンス☆
|
<
その他の画像
>
|
交通 | JR関西本線 JR難波駅 徒歩1分 |
---|
その他の交通 | 地下鉄四つ橋線 なんば駅 徒歩4分 近鉄奈良線 大阪難波駅 徒歩5分 |
所在地 |
大阪府大阪市浪速区湊町2丁目
|
物件種目 |
中古マンション |
価格 |
8,880万円 |
平米単価 |
122.59万円 |
管理費等 |
6,670円 |
修繕積立金 |
7,240円 |
借地期間・地代(月額) |
- |
権利金 |
- |
敷金または保証金 |
- / - |
維持費等 |
- |
その他一時金 |
なし |
|
|
間取り |
2LDK(LDK17.2、洋7、6.3、他2) |
専有面積 |
72.44m²(壁芯) |
階建 / 階 |
地上25階地下1階建 / 22階 |
バルコニー |
11.20m² |
築年月 |
2014年9月(築11年2ヶ月)
|
建物構造 |
RC |
駐車場 |
- |
総戸数 |
553戸 |
駐輪場 |
有 |
バイク置き場 |
有 |
ペット |
相談 |
|
|
土地権利 |
所有権 |
敷地面積 |
- |
管理形態/管理員の勤務形態 |
全部委託/常駐 |
国土法届出 |
- |
アピールポイント |
☆お部屋POINT―――
〇リビングダイニング
約17.2帖のLDK☆
〇キッチン
ディスポーザー付きで家事軽減に役立ちます☆
〇浴室
ミストサウナ完備!
〇収納
各部屋に収納あり◎
☆共用施設―――
1階
〇車寄せ
〇エントランスホール×2
〇サイクルシェアリング
2階
〇ヒーリングラウンジ
〇ゲストルーム×2
〇エグゼクティブルーム
☆特徴・詳細―――
〇お買い物施設
ライフセントラルスクエアなんば店 徒歩5分
スーパーオオカワ桜川店 徒歩8分 |
建物名・部屋番号 |
なんばセントラルプラザリバーガーデン 22F |
リフォーム履歴 |
- |
リノベーション履歴 |
- |
瑕疵保証 |
- |
瑕疵保険 |
- |
評価・証明書 |
- |
備考 |
主要採光面:西向き
施工会社:リバー建設(株)
用途地域:商業地域
|
エネルギー消費性能 |
- |
断熱性能 |
- |
目安光熱費 |
- |
バス・トイレ |
サウナ、ミストサウナ、浴室乾燥機、オートバス、追焚機能、温水洗浄便座 |
キッチン |
オープンキッチン、システムキッチン、浄水器、ディスポーザー、3口以上コンロ、2口コンロ |
設備・サービス |
全居室収納、ウォークインクローゼット、床暖房、バイク置き場、収納スペース、室内洗濯機置場、クローゼット、オートロック、防犯カメラ、洗濯機置場、給湯、全居室フローリング、都市ガス、駐輪場、複層ガラス |
その他 |
宅配BOX、ペット用施設、キッズルーム、エレベーター2基以上、共用ゲストルーム、エレベーター |
条件等 |
- |
現況 |
空家 |
引渡可能時期 |
相談 |
物件番号 |
1148456114 |
情報公開日 |
2025年10月6日 |
次回更新予定日 |
2025年10月31日 |
ケータイ用バーコード |
- スマートフォンでこの物件を見る
- スマートフォンからもこの物件をご覧になれます。
|
※「-」と表示されている項目については、情報提供会社にご確認ください。
周辺施設 |
高島屋大阪店 |
距離 |
886m |
写真を見る |
ここから簡単にお問い合わせをすることができます。
(SSLでの暗号化での送信を希望されるお客さまは
こちら
よりお問い合わせください)
お問い合わせを行う前に
「個人情報の取り扱いについて」を必ずお読みください。
「個人情報の取り扱いについて」に同意いただいた場合は「上記にご同意の上 確認画面へ進む」のボタンをクリックしてください。
個人情報の取り扱いについて
皆さまが送付された個人情報はアットホーム(株)のサーバを経由し、お問い合わせ先の不動産会社にメールまたはFAXにて転送されるためアットホーム(株)にも保管されます。アットホーム(株)で保管された個人情報の取り扱いについては、【こちら】をご覧ください。
また、本画面でご記入いただいた個人情報は、お問い合わせ先の不動産会社でも保管します。 お問い合わせ先の不動産会社が保管する個人情報の取り扱いについては、不動産会社に直接お問い合わせください。
国土交通大臣免許(1)第10312号 |
---|
- 交通:
- 地下鉄御堂筋線/本町駅 徒歩3分
- 大阪府大阪市中央区淡路町3丁目6-3 御堂筋MTRビル1階
- TEL:
- 06-6684-9636
- FAX:
- 06-6684-9637
- 所属団体:
- (公社)全日本不動産協会会員(公社)近畿地区不動産公正取引協議会加盟
取引態様:媒介  - 50102588
|
- スマートフォンで
この不動産会社を見る

|
- 提携サイト等より掲載されている物件情報につきましては、不動産会社詳細情報にリンクされていないものがあります。
- 物件に関するお問合せは、物件詳細ページの「情報提供会社」に表示されている不動産会社へ直接お願いいたします。
- 間取図は、現況を優先させていただきます。
- 映像は物件の一部を撮影したものです。物件の契約にあたっての最終判断はご自身の判断に基づいて行ってください。
- 仲介手数料について

アットホームは物件情報の適正化に努めております。
内容に誤りがある場合にはこちらへご連絡ください。