東京都渋谷区南平台町(渋谷駅)の中古マンション・新築マンション・分譲マンション:物件詳細
交通 所在地 |
駅徒歩 |
価格 |
構造 階建/階 |
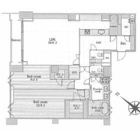
間取り 専有面積 |
物件種目 築年月 |
JR山手線/渋谷
東京都渋谷区南平台町
|
9分
|
59,800万円
|
RC
地上4階地下1階建 / 1階
|
2LDK
141.49m²
|
中古マンション
2008年4月(築17年7ヶ月)
|
ペット相談、24時間セキュリティー、バス1坪以上、管理人日勤
|
間取図
|
外観
|
その他の画像
|
交通 | JR山手線 渋谷駅 徒歩9分 |
---|
その他の交通 | 京王井の頭線 神泉駅 徒歩8分 東急東横線 代官山駅 徒歩11分 |
所在地 |
東京都渋谷区南平台町
|
物件種目 |
中古マンション |
価格 |
59,800万円 |
平米単価 |
422.65万円 |
管理費等 |
74,990円 |
修繕積立金 |
11,320円 |
借地期間・地代(月額) |
- |
権利金 |
- |
敷金または保証金 |
- / - |
維持費等 |
テレビ共使用料設備:630円/月、町会費:500円/月 |
その他一時金 |
なし |
|
|
間取り |
2LDK(LDK30、洋12.5、9.3) |
専有面積 |
141.49m²(壁芯) |
階建 / 階 |
地上4階地下1階建 / 1階 |
バルコニー |
6.45m² |
築年月 |
2008年4月(築17年7ヶ月)
|
建物構造 |
RC |
駐車場 |
空無 |
総戸数 |
43戸 |
駐輪場 |
- |
バイク置き場 |
- |
ペット |
小型犬可・ 猫可 |
|
|
土地権利 |
所有権 |
敷地面積 |
- |
管理形態/管理員の勤務形態 |
全部委託/日勤 |
国土法届出 |
- |
アピールポイント |
◆気軽にお問い合わせください◆
■各線「渋谷」駅徒歩9分。高台の邸宅地・南平台の低層レジデンスです。
■高級志向の4階建てレジデンス1階部分。専有面積141平米の広々2LDKです。
■LDKはなんと約30帖。主寝室も12帖以上の広さを確保しています。
■2か所のWIC、シューズインクロゼット、トランクルームなど収納豊富です。
■安心の24時間有人管理。コンシェルジュサービスなど共用サービスも充実。
■2025年8月にリフォーム工事が完了し室内美麗です。
「渋谷」駅徒歩9分。渋谷は最先端のファッションやカルチャーを牽引する若者の街として知られていますが、駅から少し離れると打って変わって落ち着いた緑豊かな住宅街が広がります。
【無料】お車送迎サービスを実施しております。 |
建物名・部屋番号 |
グランツオーベル南平台 |
リフォーム履歴 |
■水回り:2025年8月 キッチン、浴室、トイレ ■内装:2025年8月 床(フローリング等)、壁・天井(クロス・塗装等) キッチン新規設置、浴室新規設置、洗面台交換、トイレ交換、床暖房交換、床フローリング貼替、フロアタイル貼替、ウォークインクロゼット、既存換気設備クリーニング、給湯器交換等 ■その他:2025年8月 内装(キッチン 浴室 トイレ 壁 床 全室 キッチン新規設置、浴室新規設置、洗面台交換、トイレ交換、床暖房交換、床フローリング貼替、フロアタイル貼替、ウォークインクロゼット、既存換気設備クリーニング、給湯 ※実施年月は最も古い履歴を表示 |
リノベーション履歴 |
2025年8月 キッチン新規設置 浴室新規設置 洗面台交換 トイレ交換 床暖房交換 床フローリング張替 フロアタイル張替 ウォークインクローゼット 既存換気設備クリーニング 給湯器交換 ※実施年月は最も古い履歴を表示 |
瑕疵保証 |
- |
瑕疵保険 |
- |
評価・証明書 |
- |
備考 |
主要採光面:北西向き
施工会社:東急建設(株)
用途地域:2種低層
|
エネルギー消費性能 |
- |
断熱性能 |
- |
目安光熱費 |
- |
バス・トイレ |
浴室乾燥機、追焚機能、温水洗浄便座 |
キッチン |
システムキッチン、独立型キッチン、3口以上コンロ |
設備・サービス |
モニター付オートロック、全居室収納、ウォークインクローゼット、床暖房、収納スペース、室内洗濯機置場、トランクルーム、クローゼット、オートロック、モニター付インターホン、防犯カメラ、洗濯機置場、給湯、都市ガス |
その他 |
エレベーター |
条件等 |
- |
現況 |
空家 |
引渡可能時期 |
相談 |
物件番号 |
1148590614 |
情報公開日 |
2025年10月10日 |
次回更新予定日 |
2025年10月31日 |
ケータイ用バーコード |
- スマートフォンでこの物件を見る
- スマートフォンからもこの物件をご覧になれます。
|
※「-」と表示されている項目については、情報提供会社にご確認ください。
周辺施設 |
ローソン 渋谷南平台店 |
距離 |
182m |
写真を見る |
周辺施設 |
市川崑記念室 |
距離 |
248m |
写真を見る |
周辺施設 |
渋谷警察署 鉢山交番 |
距離 |
144m |
写真を見る |
周辺施設 |
佐藤内科クリニック |
距離 |
202m |
写真を見る |
周辺施設 |
セブン-イレブン 渋谷鶯谷町店 |
距離 |
264m |
写真を見る |
周辺施設 |
ウガンダ共和国大使館 |
距離 |
211m |
写真を見る |
周辺施設 |
渋谷区立桜丘公園 |
距離 |
243m |
写真を見る |
周辺施設 |
カトリック渋谷教会 |
距離 |
327m |
写真を見る |
ここから簡単にお問い合わせをすることができます。
(SSLでの暗号化での送信を希望されるお客さまは
こちら
よりお問い合わせください)
お問い合わせを行う前に
「個人情報の取り扱いについて」を必ずお読みください。
「個人情報の取り扱いについて」に同意いただいた場合は「上記にご同意の上 確認画面へ進む」のボタンをクリックしてください。
個人情報の取り扱いについて
皆さまが送付された個人情報はアットホーム(株)のサーバを経由し、お問い合わせ先の不動産会社にメールまたはFAXにて転送されるためアットホーム(株)にも保管されます。アットホーム(株)で保管された個人情報の取り扱いについては、【こちら】をご覧ください。
また、本画面でご記入いただいた個人情報は、お問い合わせ先の不動産会社でも保管します。 お問い合わせ先の不動産会社が保管する個人情報の取り扱いについては、不動産会社に直接お問い合わせください。
東京都知事免許(4)第91707号 |
---|
- 交通:
- 京王井の頭線/神泉駅 徒歩6分
- 東京都渋谷区松濤2丁目7-12
- TEL:
- 03-5790-9204
- 所属団体:
- (公社)全日本不動産協会会員(一社)全国住宅産業協会会員(公社)首都圏不動産公正取引協議会加盟
取引態様:媒介  - 00272473
|
- スマートフォンで
この不動産会社を見る

|
- 提携サイト等より掲載されている物件情報につきましては、不動産会社詳細情報にリンクされていないものがあります。
- 物件に関するお問合せは、物件詳細ページの「情報提供会社」に表示されている不動産会社へ直接お願いいたします。
- 間取図は、現況を優先させていただきます。
- 映像は物件の一部を撮影したものです。物件の契約にあたっての最終判断はご自身の判断に基づいて行ってください。
- 仲介手数料について

アットホームは物件情報の適正化に努めております。
内容に誤りがある場合にはこちらへご連絡ください。