埼玉県越谷市蒲生東町(南越谷駅)の中古マンション・新築マンション・分譲マンション:物件詳細
交通 所在地 |
駅徒歩 |
価格 |
構造 階建/階 |
間取り 専有面積 |
物件種目 築年月 |
|
JR武蔵野線/南越谷
埼玉県越谷市蒲生東町
|
17分
|
2,480万円
|
RC
6階建 / 2階
|
3LDK
68.05m²
|
中古マンション
1995年11月(築30年4ヶ月)
|
|
南向き、管理人日勤
|
|
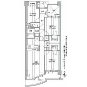
間取図
2階・南向きバルコニーで陽当り良好!家具付きの3LDK・WIC×2か所付き!2025年5月リフォーム済みです!オー
|
外観
コンフォート南越谷
|
<
その他の画像
>
|
| 交通 | JR武蔵野線 南越谷駅 徒歩17分 |
|---|
| その他の交通 | 東武伊勢崎線 新越谷駅 徒歩17分 東武伊勢崎線 蒲生駅 徒歩20分 |
| 所在地 |
埼玉県越谷市蒲生東町
|
| 物件種目 |
中古マンション |
| 価格 |
2,480万円 |
平米単価 |
36.45万円 |
| 管理費等 |
13,400円 |
修繕積立金 |
10,900円 |
| 借地期間・地代(月額) |
- |
権利金 |
- |
| 敷金または保証金 |
- / - |
維持費等 |
- |
| その他一時金 |
なし |
|
|
| 間取り |
3LDK(LDK13.9、洋6、5.6、4.3) |
専有面積 |
68.05m²(壁芯) |
| 階建 / 階 |
6階建 / 2階 |
バルコニー |
8.32m² |
| 築年月 |
1995年11月(築30年4ヶ月)
|
建物構造 |
RC |
| 駐車場 |
空無 |
総戸数 |
38戸 |
| 駐輪場 |
- |
バイク置き場 |
- |
| ペット |
-
|
|
|
| 土地権利 |
所有権 |
敷地面積 |
- |
| 管理形態/管理員の勤務形態 |
全部委託/日勤 |
国土法届出 |
- |
| アピールポイント |
◎お得に住宅購入 仲介手数料無料!
掲載している新築住宅の95%は仲介手数料0円で購入可能です!諸費用の負担を抑えてマイホームの購入をお手伝いします!
●当社のホームページをご覧ください!埼玉相互住宅で検索!
未公開情報やお得なキャンペーン情報を随時更新しています!
〇埼玉相互住宅は住宅ローンに強い会社です!
自己資金が少ない、勤務年数が短い、他に借り入れがある等、他社で断られた方も諦めずに当社にご相談ください!
住宅ローン専門スタッフが銀行窓口となり、様々な事例から適切なサポートをお約束します!
土地のみの購入及び事業用ローンについては別途ご相談ください!
◇◆ ホットハート紹介制度実施中 ◆◇
お知り合いの方を新たにご紹介いただき、ご契約になりますと素敵な特典を差し上げます。 ご紹介者様には10万円(当社規定によります)、ご契約者様にはダイソンサイクロン掃除機等をプレゼント (特典は当社一定基準を設けております。詳しくはお問い合わせください)
|
| 建物名・部屋番号 |
コンフォート南越谷 |
| リフォーム履歴 |
■水回り:2025年5月 キッチン、浴室、トイレ ■内装:2025年5月 床(フローリング等)、壁・天井(クロス・塗装等) ハウスクリーニング、等 ■その他:2025年5月 内装(キッチン 浴室 トイレ 壁 床 ハウスクリーニング、等) ※実施年月は最も古い履歴を表示 |
| リノベーション履歴 |
- |
| 瑕疵保証 |
- |
| 瑕疵保険 |
- |
| 評価・証明書 |
- |
| 備考 |
主要採光面:南向き
・伝達事項有 ・施設空き状況は都度要確認
2階・南向きバルコニーで陽当り良好!家具付きの3LDK・WIC×2か所付き!2025年5月リフォーム済みです!オートロックの安心マンション!食洗機・浴室乾燥機付き!お気軽にお問い合わせください!
|
| エネルギー消費性能 |
- |
| 断熱性能 |
- |
| 目安光熱費 |
- |
| バス・トイレ |
浴室乾燥機、追焚機能、温水洗浄便座 |
| キッチン |
カウンターキッチン、システムキッチン、食器洗浄乾燥機、浄水器 |
| 設備・サービス |
モニター付オートロック、全居室収納、ウォークインクローゼット、収納スペース、室内洗濯機置場、クローゼット、オートロック、モニター付インターホン、洗濯機置場、全居室フローリング |
| その他 |
エレベーター |
| 条件等 |
- |
現況 |
空家 |
| 引渡可能時期 |
相談 |
物件番号 |
1148761914 |
| 情報公開日 |
2025年10月13日 |
次回更新予定日 |
2026年2月10日 |
| ケータイ用バーコード |
- スマートフォンでこの物件を見る
- スマートフォンからもこの物件をご覧になれます。
|
※「-」と表示されている項目については、情報提供会社にご確認ください。
| 周辺施設 |
越谷市立蒲生小学校 |
| 距離 |
764m |
写真を見る |
ここから簡単にお問い合わせをすることができます。
(SSLでの暗号化での送信を希望されるお客さまは
こちら
よりお問い合わせください)
お問い合わせを行う前に
「個人情報の取り扱いについて」を必ずお読みください。
「個人情報の取り扱いについて」に同意いただいた場合は「上記にご同意の上 確認画面へ進む」のボタンをクリックしてください。
個人情報の取り扱いについて
皆さまが送付された個人情報はアットホーム(株)のサーバを経由し、お問い合わせ先の不動産会社にメールまたはFAXにて転送されるためアットホーム(株)にも保管されます。アットホーム(株)で保管された個人情報の取り扱いについては、【こちら】をご覧ください。
また、本画面でご記入いただいた個人情報は、お問い合わせ先の不動産会社でも保管します。 お問い合わせ先の不動産会社が保管する個人情報の取り扱いについては、不動産会社に直接お問い合わせください。
埼玉県知事免許(14)第6157号 |
|---|
- 交通:
- 東武伊勢崎線/越谷駅 徒歩34分
- 埼玉県越谷市東越谷3丁目17-4
- TEL:
- 048-964-1400
- FAX:
- 048-964-1366
- 所属団体:
- (公社)埼玉県宅地建物取引業協会会員(公社)首都圏不動産公正取引協議会加盟
取引態様:媒介  - 00213433
|
- スマートフォンで
この不動産会社を見る

|
- 提携サイト等より掲載されている物件情報につきましては、不動産会社詳細情報にリンクされていないものがあります。
- 物件に関するお問合せは、物件詳細ページの「情報提供会社」に表示されている不動産会社へ直接お願いいたします。
- 間取図は、現況を優先させていただきます。
- 映像は物件の一部を撮影したものです。物件の契約にあたっての最終判断はご自身の判断に基づいて行ってください。
- 仲介手数料について

アットホームは物件情報の適正化に努めております。
内容に誤りがある場合にはこちらへご連絡ください。