兵庫県西宮市堀切町(香櫨園駅)の中古マンション・新築マンション・分譲マンション:物件詳細
交通 所在地 |
駅徒歩 |
価格 |
構造 階建/階 |
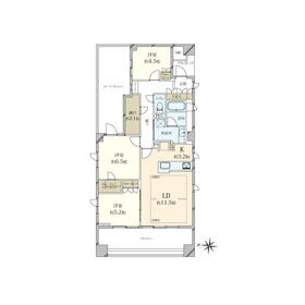
間取り 専有面積 |
物件種目 築年月 |
|
阪神本線/香櫨園
兵庫県西宮市堀切町
|
11分
|
5,080万円
|
RC
5階建 / 4階
|
3SLDK
76.29m²
|
中古マンション
2016年2月(築9年11ヶ月)
|
|
ペット相談、角部屋、24時間セキュリティー、24時間換気システム、バリアフリー、外観タイル張り、管理人日勤
|
|
間取図
間取図
|
外観
外観
|
<
その他の画像
>
|
| 交通 | 阪神本線 香櫨園駅 徒歩11分 |
| 所在地 |
兵庫県西宮市堀切町
|
| 物件種目 |
中古マンション |
| 価格 |
5,080万円 |
平米単価 |
66.59万円 |
| 管理費等 |
13,650円 |
修繕積立金 |
9,460円 |
| 借地期間・地代(月額) |
- |
権利金 |
- |
| 敷金または保証金 |
- / - |
維持費等 |
ルーフバルコニー使用料:320円/月 |
| その他一時金 |
- |
|
|
| 間取り |
3SLDK |
専有面積 |
76.29m²(壁芯) |
| 階建 / 階 |
5階建 / 4階 |
バルコニー |
14.00m² |
| 築年月 |
2016年2月(築9年11ヶ月)
|
建物構造 |
RC |
| 駐車場 |
- |
総戸数 |
45戸 |
| 駐輪場 |
- |
バイク置き場 |
- |
| ペット |
相談 |
|
|
| 土地権利 |
所有権 |
敷地面積 |
- |
| 管理形態/管理員の勤務形態 |
全部委託/日勤 |
国土法届出 |
- |
| アピールポイント |
【おすすめポイント】
■2016年2月建築
■ペット可(規約制限有)
■メンテナンス性に優れた二重床・二重天井設計
■結露やカビ等の発生を抑制する複層ガラス
■野村不動産パートナーズ(株)管理
【間取り・お部屋の特徴】
■リビングダイニングは南と西の二面採光
■床暖房2面あり
■隣住戸とは独立した構造・上階に住戸なし
■約12.85m2のルーフバルコニー
■全居室フローリング
■全居室に窓・収納あり
■約3.2帖のカウンターキッチン~換気窓あり~
■廊下に約2.1帖の納戸あり
■浴室に窓あり |
| 建物名・部屋番号 |
プラウド香櫨園 |
| リフォーム履歴 |
- |
| リノベーション履歴 |
- |
| 瑕疵保証 |
- |
| 瑕疵保険 |
- |
| 評価・証明書 |
- |
| 備考 |
主要採光面:西向き
施工会社:西武建設株式会社
用途地域:1種中高
●S=納戸
●ペット飼育可(規約制限有)●駐車場・駐輪場は有償になります。
●徒歩分数は80mを1分として算出した概算で、実際とは多少異なる場合があります。/ルーフバルコニー:12.85m2
|
| エネルギー消費性能 |
- |
| 断熱性能 |
- |
| 目安光熱費 |
- |
| バス・トイレ |
ミストサウナ、浴室乾燥機、オートバス、追焚機能、シャワー付洗面化粧台、温水洗浄便座 |
| キッチン |
カウンターキッチン、システムキッチン、食器洗浄乾燥機、浄水器 |
| 設備・サービス |
全居室収納、ウォークインクローゼット、床暖房、オートロック、モニター付インターホン、ディンプルキー、防犯カメラ、二重床、全居室フローリング、都市ガス、ワイドバルコニー、ルーフバルコニー、複層ガラス |
| その他 |
宅配BOX、エレベーター |
| 条件等 |
- |
現況 |
所有者居住中 |
| 引渡可能時期 |
相談 |
物件番号 |
1149294213 |
| 情報公開日 |
2025年10月31日 |
次回更新予定日 |
2025年12月15日 |
| ケータイ用バーコード |
- スマートフォンでこの物件を見る
- スマートフォンからもこの物件をご覧になれます。
|
※「-」と表示されている項目については、情報提供会社にご確認ください。
| 周辺施設 |
阪神本線「香櫨園」駅 |
| 距離 |
880m |
写真を見る |
| 周辺施設 |
西宮市立香櫨園小学校 |
| 距離 |
380m |
写真を見る |
| 周辺施設 |
西宮市立浜脇中学校 |
| 距離 |
1150m |
写真を見る |
| 周辺施設 |
西宮市立中央図書館(教育文化センター) |
| 距離 |
670m |
写真を見る |
| 周辺施設 |
西宮市大谷記念美術館 |
| 距離 |
220m |
写真を見る |
| 周辺施設 |
スーパーマーケットKOHYO芦屋南宮店 |
| 距離 |
500m |
| 周辺施設 |
グランフィットネス芦屋24 |
| 距離 |
500m |
ここから簡単にお問い合わせをすることができます。
(SSLでの暗号化での送信を希望されるお客さまは
こちら
よりお問い合わせください)
お問い合わせを行う前に
「個人情報の取り扱いについて」を必ずお読みください。
「個人情報の取り扱いについて」に同意いただいた場合は「上記にご同意の上 確認画面へ進む」のボタンをクリックしてください。
個人情報の取り扱いについて
皆さまが送付された個人情報はアットホーム(株)のサーバを経由し、お問い合わせ先の不動産会社にメールまたはFAXにて転送されるためアットホーム(株)にも保管されます。アットホーム(株)で保管された個人情報の取り扱いについては、【こちら】をご覧ください。
また、本画面でご記入いただいた個人情報は、お問い合わせ先の不動産会社でも保管します。 お問い合わせ先の不動産会社が保管する個人情報の取り扱いについては、不動産会社に直接お問い合わせください。
国土交通大臣免許(5)第6101号 |
|---|
- 交通:
- 阪急神戸線/西宮北口駅 徒歩4分
- 兵庫県西宮市高松町4-37 中林ビル西宮1階
- TEL:
- 0120-952-313
- FAX:
- 0798-64-1175
- 所属団体:
- (一社)不動産流通経営協会会員(公社)首都圏不動産公正取引協議会加盟
取引態様:一般媒介  - 00781798
|
- スマートフォンで
この不動産会社を見る

|
- 提携サイト等より掲載されている物件情報につきましては、不動産会社詳細情報にリンクされていないものがあります。
- 物件に関するお問合せは、物件詳細ページの「情報提供会社」に表示されている不動産会社へ直接お願いいたします。
- 間取図は、現況を優先させていただきます。
- 映像は物件の一部を撮影したものです。物件の契約にあたっての最終判断はご自身の判断に基づいて行ってください。
- 仲介手数料について

アットホームは物件情報の適正化に努めております。
内容に誤りがある場合にはこちらへご連絡ください。