神奈川県川崎市多摩区宿河原2丁目(向ヶ丘遊園駅)の中古マンション・新築マンション・分譲マンション:物件詳細
交通 所在地 |
駅徒歩 |
価格 |
構造 階建/階 |
間取り 専有面積 |
物件種目 築年月 |
|
小田急小田原線/向ヶ丘遊園
神奈川県川崎市多摩区宿河原2丁目
|
8分
|
4,790万円
|
RC
5階建 / 3階
|
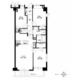
3LDK
60.96m²
|
中古マンション
1995年10月(築30年1ヶ月)
|
|
ペット相談、角部屋、外観タイル張り、管理人日勤
|
|
間取図
|
外観
2025年6月撮影
|
その他の画像
|
| 交通 | 小田急小田原線 向ヶ丘遊園駅 徒歩8分 |
|---|
| その他の交通 | JR南武線 登戸駅 徒歩12分 小田急小田原線 登戸駅 徒歩12分 |
| 所在地 |
神奈川県川崎市多摩区宿河原2丁目
|
| 物件種目 |
中古マンション |
| 価格 |
4,790万円 |
平米単価 |
78.58万円 |
| 管理費等 |
13,700円 |
修繕積立金 |
24,200円 |
| 借地期間・地代(月額) |
- |
権利金 |
- |
| 敷金または保証金 |
- / - |
維持費等 |
町会費:200円/月 |
| その他一時金 |
なし |
|
|
| 間取り |
3LDK |
専有面積 |
60.96m²(壁芯) |
| 階建 / 階 |
5階建 / 3階 |
バルコニー |
6.00m² |
| 築年月 |
1995年10月(築30年1ヶ月)
|
建物構造 |
RC |
| 駐車場 |
空無 |
総戸数 |
24戸 |
| 駐輪場 |
空無 |
バイク置き場 |
空無 |
| ペット |
相談 |
|
|
| 土地権利 |
所有権 |
敷地面積 |
- |
| 管理形態/管理員の勤務形態 |
全部委託/日勤 |
国土法届出 |
- |
| アピールポイント |
◆弊社売主のため仲介手数料無料◆
【物件のポイント】
○オートロック・宅配ボックス付きマンション 、重厚感のある佇まい♪
○犬・猫2匹まで飼育可(細則あり)
○白を基調とした室内に、ブラックの建具が映える内装
○全居室に収納を完備!LDKにも棚と物入があり整理しやすい室内です♪
○ショッピングセンター「クロス向ヶ丘」まで徒歩5分、スーパーの他、家電量販店など専門店も充実!
リノベーション内容(2025年10月完了)
■システムキッチン
■ユニットバス(追焚機能付)
■洗面化粧台
■トイレ(温水洗浄便座)
■フローリング
■壁、天井クロス
■給水・給湯管(一部)、他 |
| 建物名・部屋番号 |
コスモ向ヶ丘遊園ラフィネ |
| リフォーム履歴 |
■水回り:2025年10月 キッチン、浴室、トイレ ■内装:2025年10月 床(フローリング等)、壁・天井(クロス・塗装等) 給排水管 ■その他:2025年10月 内装(キッチン 浴室 トイレ 壁 床 全室 給排水管) ※実施年月は最も古い履歴を表示 |
| リノベーション履歴 |
- |
| 瑕疵保証 |
- |
| 瑕疵保険 |
- |
| 評価・証明書 |
- |
| 備考 |
主要採光面:西向き
法令等制限:室外機置場面積:1.0平米
用途地域:1種中高
|
| エネルギー消費性能 |
- |
| 断熱性能 |
- |
| 目安光熱費 |
- |
| バス・トイレ |
浴室乾燥機、オートバス、追焚機能、シャワー付洗面化粧台、温水洗浄便座 |
| キッチン |
カウンターキッチン、システムキッチン、浄水器、3口以上コンロ、グリル |
| 設備・サービス |
モニター付オートロック、全居室収納、ウォークインクローゼット、バイク置き場、収納スペース、クローゼット、オートロック、モニター付インターホン、防犯カメラ、給湯、全居室フローリング、駐輪場、人感センサー付照明、照明器具、インターネット対応 |
| その他 |
宅配BOX、エレベーター |
| 条件等 |
- |
現況 |
空家 |
| 引渡可能時期 |
相談 |
物件番号 |
1149341214 |
| 情報公開日 |
2025年10月27日 |
次回更新予定日 |
2025年11月10日 |
| ケータイ用バーコード |
- スマートフォンでこの物件を見る
- スマートフォンからもこの物件をご覧になれます。
|
※「-」と表示されている項目については、情報提供会社にご確認ください。
ここから簡単にお問い合わせをすることができます。
(SSLでの暗号化での送信を希望されるお客さまは
こちら
よりお問い合わせください)
お問い合わせを行う前に
「個人情報の取り扱いについて」を必ずお読みください。
「個人情報の取り扱いについて」に同意いただいた場合は「上記にご同意の上 確認画面へ進む」のボタンをクリックしてください。
個人情報の取り扱いについて
皆さまが送付された個人情報はアットホーム(株)のサーバを経由し、お問い合わせ先の不動産会社にメールまたはFAXにて転送されるためアットホーム(株)にも保管されます。アットホーム(株)で保管された個人情報の取り扱いについては、【こちら】をご覧ください。
また、本画面でご記入いただいた個人情報は、お問い合わせ先の不動産会社でも保管します。 お問い合わせ先の不動産会社が保管する個人情報の取り扱いについては、不動産会社に直接お問い合わせください。
国土交通大臣免許(4)第7356号 |
|---|
- 交通:
- 東京メトロ日比谷線/人形町駅 徒歩4分
- 東京都中央区日本橋小舟町8-1 ヒューリック小舟町ビル6F
- TEL:
- 03-5652-8343
- FAX:
- 03-5652-9330
- 所属団体:
- (一社)不動産流通経営協会会員
取引態様:売主  - 00016406
|
- スマートフォンで
この不動産会社を見る

|
- 提携サイト等より掲載されている物件情報につきましては、不動産会社詳細情報にリンクされていないものがあります。
- 物件に関するお問合せは、物件詳細ページの「情報提供会社」に表示されている不動産会社へ直接お願いいたします。
- 間取図は、現況を優先させていただきます。
- 映像は物件の一部を撮影したものです。物件の契約にあたっての最終判断はご自身の判断に基づいて行ってください。
- 仲介手数料について

アットホームは物件情報の適正化に努めております。
内容に誤りがある場合にはこちらへご連絡ください。