埼玉県朝霞市根岸台3丁目(朝霞駅)の中古マンション・新築マンション・分譲マンション:物件詳細
交通 所在地 |
駅徒歩 |
価格 |
構造 階建/階 |
間取り 専有面積 |
物件種目 築年月 |
|
東武東上線/朝霞
埼玉県朝霞市根岸台3丁目
|
23分
|
3,880万円
|
SRC
8階建 / 6階
|
3LDK
70.76m²
|
中古マンション
2021年1月(築5年2ヶ月)
|
|
ペット相談、管理人日勤
|
|
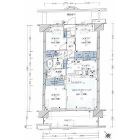
間取図
3LDK
|
外観
大切なペットと一緒に暮らせます
|
<
その他の画像
>
|
| 交通 | 東武東上線 朝霞駅 徒歩23分 |
|---|
| その他の交通 | JR武蔵野線 北朝霞駅 【バス】 15分 宮台 停歩3分 東京メトロ有楽町線 和光市駅 【バス】 16分 ふたば公園 停歩18分 |
| 所在地 |
埼玉県朝霞市根岸台3丁目
|
| 物件種目 |
中古マンション |
| 価格 |
3,880万円 |
平米単価 |
54.84万円 |
| 管理費等 |
14,920円 |
修繕積立金 |
7,080円 |
| 借地期間・地代(月額) |
- |
権利金 |
- |
| 敷金または保証金 |
- / - |
維持費等 |
インターネット利用料:1,045円/月 |
| その他一時金 |
なし |
|
|
| 間取り |
3LDK(LDK14.8、洋5.3、6、5) |
専有面積 |
70.76m²(壁芯) |
| 階建 / 階 |
8階建 / 6階 |
バルコニー |
13.15m² |
| 築年月 |
2021年1月(築5年2ヶ月)
|
建物構造 |
SRC |
| 駐車場 |
空無 |
総戸数 |
212戸 |
| 駐輪場 |
- |
バイク置き場 |
- |
| ペット |
相談 |
|
|
| 土地権利 |
所有権 |
敷地面積 |
- |
| 管理形態/管理員の勤務形態 |
全部委託/日勤 |
国土法届出 |
- |
| アピールポイント |
【営業時間 10:00~18:00】
この時間帯はお電話でのお問い合わせがスムーズです。
住み替えをご希望の方は自社買取保証付売却プランがございます。お気軽にお問い合わせください。
●朝霞駅徒歩23分
●ペット飼育可(細則有)
●ウォークインクローゼット
●住環境良好
◇当社の強みは
(1)リフォーム(当社でも再販事業を行っている為、お客様に最適なプランをご提供できます。)
(2)注文住宅のご紹介(提携ハウスメーカー7社を保有しておりますので、ご予算・ご希望に合ったプランをご紹介できます。)
◇ふじみ野市、川越市、富士見市周辺に限らず東武東上線・川越線・越生線全域の売買情報など、住まいに関する不動産情報を豊富に取り揃えております。またリフォームの相談も承ります。不動産情報をお探しなら、東武住販までお気軽にお問合せください。 |
| 建物名・部屋番号 |
ハイムスイート朝霞 |
| リフォーム履歴 |
- |
| リノベーション履歴 |
- |
| 瑕疵保証 |
- |
| 瑕疵保険 |
- |
| 評価・証明書 |
- |
| 備考 |
主要採光面:南西向き
用途地域:1種中高
ペット飼育可(細則有)
ペット飼育可(細則有)
|
| エネルギー消費性能 |
- |
| 断熱性能 |
- |
| 目安光熱費 |
- |
| バス・トイレ |
- |
| キッチン |
カウンターキッチン、3口以上コンロ |
| 設備・サービス |
全居室収納、ウォークインクローゼット、収納スペース、室内洗濯機置場、クローゼット、洗濯機置場、全居室フローリング、都市ガス |
| その他 |
- |
| 条件等 |
- |
現況 |
所有者居住中 |
| 引渡可能時期 |
相談 |
物件番号 |
1150410414 |
| 情報公開日 |
2026年2月5日 |
次回更新予定日 |
2026年2月19日 |
| ケータイ用バーコード |
- スマートフォンでこの物件を見る
- スマートフォンからもこの物件をご覧になれます。
|
※「-」と表示されている項目については、情報提供会社にご確認ください。
| 周辺施設 |
朝霞市立朝霞第九小学校 |
| 距離 |
626m |
写真を見る |
| 周辺施設 |
朝霞市立朝霞第二中学校 |
| 距離 |
1729m |
写真を見る |
| 周辺施設 |
イトーヨーカドー朝霞店 |
| 距離 |
333m |
写真を見る |
| 周辺施設 |
セブンイレブン 朝霞田島1丁目店 |
| 距離 |
585m |
写真を見る |
| 周辺施設 |
ドラッグセイムス 花の木店 |
| 距離 |
748m |
写真を見る |
| 周辺施設 |
あさか内科クリニック |
| 距離 |
553m |
写真を見る |
| 周辺施設 |
城山通りどうぶつ病院 |
| 距離 |
1408m |
写真を見る |
| 周辺施設 |
埼玉縣信用金庫朝霞支店 |
| 距離 |
1670m |
写真を見る |
ここから簡単にお問い合わせをすることができます。
(SSLでの暗号化での送信を希望されるお客さまは
こちら
よりお問い合わせください)
お問い合わせを行う前に
「個人情報の取り扱いについて」を必ずお読みください。
「個人情報の取り扱いについて」に同意いただいた場合は「上記にご同意の上 確認画面へ進む」のボタンをクリックしてください。
個人情報の取り扱いについて
皆さまが送付された個人情報はアットホーム(株)のサーバを経由し、お問い合わせ先の不動産会社にメールまたはFAXにて転送されるためアットホーム(株)にも保管されます。アットホーム(株)で保管された個人情報の取り扱いについては、【こちら】をご覧ください。
また、本画面でご記入いただいた個人情報は、お問い合わせ先の不動産会社でも保管します。 お問い合わせ先の不動産会社が保管する個人情報の取り扱いについては、不動産会社に直接お問い合わせください。
埼玉県知事免許(3)第22166号 |
|---|
- 交通:
- 東武東上線/上福岡駅 徒歩5分
- 埼玉県ふじみ野市上福岡1丁目15-7
- TEL:
- 049-256-7142
- FAX:
- 049-256-7143
- 所属団体:
- (公社)全日本不動産協会会員(公社)首都圏不動産公正取引協議会加盟
取引態様:媒介  - 00980743
|
- スマートフォンで
この不動産会社を見る

|
- 提携サイト等より掲載されている物件情報につきましては、不動産会社詳細情報にリンクされていないものがあります。
- 物件に関するお問合せは、物件詳細ページの「情報提供会社」に表示されている不動産会社へ直接お願いいたします。
- 間取図は、現況を優先させていただきます。
- 映像は物件の一部を撮影したものです。物件の契約にあたっての最終判断はご自身の判断に基づいて行ってください。
- 仲介手数料について

アットホームは物件情報の適正化に努めております。
内容に誤りがある場合にはこちらへご連絡ください。