不動産 賃貸 マンション等の住宅情報:埼玉住まい情報


大阪府大阪市北区紅梅町(南森町駅)の中古マンション・新築マンション・分譲マンション:物件詳細

  • 物件詳細
  • 情報の見方
  • 印刷用画面
交通
所在地
駅徒歩 価格 構造
階建/階
間取り
専有面積
物件種目
築年月

地下鉄谷町線/南森町 新着

大阪府大阪市北区紅梅町

3分

8,000万円

SRC

11階建 / 11階

2LDK

56.48m²

中古マンション

2023年8月(築2年5ヶ月)

おすすめPOINTペット相談、常時ゴミ出し可能、角部屋、最上階、24時間セキュリティー、24時間換気システム、オール電化、外観タイル張り、管理人日勤

おすすめコメント

こだわりで選ぶ方も多い築浅のお部屋。地上11階建てなので、開放感もあります。機能的で使いやすいシステムキッチン付きなので、お料理を楽しめます。南西向きなら夕方になってもお部屋が暗くなりません。24時間ゴミ

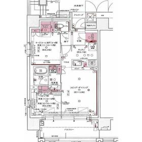
間取図

間取図

外観

外観

その他の画像
  • エントランス
    • とりあえず保存
    • お問い合わせ
    交通

    地下鉄谷町線 南森町駅 徒歩3分

    その他の交通

    JR東西線 大阪天満宮駅 徒歩4分

    地下鉄堺筋線 扇町駅 徒歩8分

    所在地 大阪府大阪市北区紅梅町
    物件種目 中古マンション
    価格 8,000万円 平米単価 141.65万円
    管理費等 20,200円 修繕積立金 6,300円
    借地期間・地代(月額) 権利金
    敷金または保証金 - / - 維持費等 インターネット使用料:2,189円/月
    その他一時金 なし    
    間取り 2LDK(洋5.5、4.5) 専有面積 56.48m²(壁芯)
    階建 / 階 11階建 / 11階 バルコニー 10.35m²
    築年月 2023年8月(築2年5ヶ月) 建物構造 SRC
    駐車場 総戸数 20戸
    駐輪場 バイク置き場
    ペット 相談    
    土地権利 所有権 敷地面積
    管理形態/管理員の勤務形態 全部委託/日勤 国土法届出
    建物名・部屋番号 シエリア大阪紅梅町 1101
    リフォーム履歴
    リノベーション履歴
    瑕疵保証
    瑕疵保険
    評価・証明書
    備考
    主要採光面:南西向き
    施工会社:(株)昭和工務店
    用途地域:商業地域
    最上階角部屋!セキュリティ充実しており宅配BOXございます!
    56.48平米程の専有面積でスペースも十分。システムキッチンは必要な物が組み込まれているため、すぐ調理できます。こちらは11階建ての建物です。徒歩3分の場所に駅があります。オートロック設備が付いており、防犯性が高いです。家族での生活にもぴったりな2LDKで落ち着いた生活。きれいな中古マンションで住み心地にも充実しています。その他周辺の物件、不動産の購入・売却・住宅ローンについては、日本不動産パートナーズ㈱真成エステートまでご相談くださいませ。
    エネルギー消費性能
    断熱性能
    目安光熱費
    バス・トイレ 浴室乾燥機、オートバス、追焚機能
    キッチン カウンターキッチン、システムキッチン、食器洗浄乾燥機、浄水器、3口以上コンロ
    設備・サービス モニター付オートロック、ウォークインクローゼット、バイク置き場、収納スペース、シューズインクローゼット、クローゼット、オートロック、モニター付インターホン、ディンプルキー、ダブルロックドア、防犯カメラ、アルコーブ、駐輪場、人感センサー付照明
    その他 宅配BOX、エレベーター
    条件等 現況 所有者居住中
    引渡可能時期 相談 物件番号 1150701514
    情報公開日 2025年12月21日 次回更新予定日 2026年1月4日
    ケータイ用バーコード

    QRコード

    スマートフォンでこの物件を見る
    スマートフォンからもこの物件をご覧になれます。
    ※「-」と表示されている項目については、情報提供会社にご確認ください。

    クイックお問い合わせ

    ここから簡単にお問い合わせをすることができます。
    (SSLでの暗号化での送信を希望されるお客さまは こちら よりお問い合わせください)

    お問い合わせ内容(必須)
    お名前(必須) 姓  名 
    メールアドレス(必須)
    ※携帯電話のメールアドレスをご入力される方はこちらをご確認ください
    電話番号(必須)
    - -

    ※入力いただいた電話番号へSMSまたは音声でパスワードをご連絡します。

    携帯電話の番号をご入力の方へ

    携帯電話の番号をご入力の方へ
    確認画面にて送信ボタンをクリックするとSMSが携帯電話に届きます。
    そのSMSに記載のパスワード(認証番号)を入力し、お問い合わせを完了してください。
    尚、SMSの送信者番号は 0005 202 760 となります。
    これはアットホームの固定番号です。

    備考欄 希望条件、物件案内希望日、質問などがございましたらご記入ください。
    お問い合わせを行う前に「個人情報の取り扱いについて」を必ずお読みください。
    「個人情報の取り扱いについて」に同意いただいた場合は「上記にご同意の上 確認画面へ進む」のボタンをクリックしてください。

    個人情報の取り扱いについて

    皆さまが送付された個人情報はアットホーム(株)のサーバを経由し、お問い合わせ先の不動産会社にメールまたはFAXにて転送されるためアットホーム(株)にも保管されます。アットホーム(株)で保管された個人情報の取り扱いについては、【こちら】をご覧ください。
    また、本画面でご記入いただいた個人情報は、お問い合わせ先の不動産会社でも保管します。 お問い合わせ先の不動産会社が保管する個人情報の取り扱いについては、不動産会社に直接お問い合わせください。

    情報提供会社

    情報提供会社

    (株)真成エステート

    大阪府知事免許(3)第57656号

    交通:
    JR大阪環状線/桜ノ宮駅 徒歩10分
    大阪府大阪市都島区中野町2丁目14-17 
    TEL:
    06-6809-2539
    FAX:
    06-6809-2513
    所属団体:
    (一社)大阪府宅地建物取引業協会会員
    (公社)近畿地区不動産公正取引協議会加盟

    取引態様:媒介

    • 会社情報
    • 50108922
    スマートフォンで
    この不動産会社を見る
    QRコード
    • とりあえず保存
    • お問い合わせ
    • 提携サイト等より掲載されている物件情報につきましては、不動産会社詳細情報にリンクされていないものがあります。
    • 物件に関するお問合せは、物件詳細ページの「情報提供会社」に表示されている不動産会社へ直接お願いいたします。
    • 間取図は、現況を優先させていただきます。
    • 映像は物件の一部を撮影したものです。物件の契約にあたっての最終判断はご自身の判断に基づいて行ってください。
    • 仲介手数料について仲介手数料

    アットホームは物件情報の適正化に努めております。 内容に誤りがある場合にはこちらへご連絡ください。

    【埼玉住まい情報】では、日本全国の物件から賃貸マンションや賃貸アパート・賃貸一戸建て等の賃貸住宅情報、新築マンション・分譲マンションや中古マンション等の売買マンション情報、新築一戸建てや中古一戸建てなどの戸建住宅、 土地など、総合的な不動産住宅情報検索サービスを提供致します。
    【埼玉住まい情報】から、選りすぐりの不動産物件を探してみましょう。

    【免責事項】
    このコーナーの運営はアットホーム株式会社(https://www.athome.co.jp/)が行っています。
    このコーナーに掲載している物件情報は、「アットホーム不動産情報ネットワーク」に加盟する不動産会社等(情報提供元)から提供されています。信頼性の高い情報提供が行えるよう、最大限の努力をしておりますが、その内容を保証するものではありません。 利用者のみなさまと各情報提供元との取引に起因する損害および情報が掲載されたことに起因する損害等については、株式会社イーシティ埼玉、およびアットホームは一切責任を負いません。
    各物件情報の内容や画像等はすべて現況を優先させていただきます。
    お取引等(お取引の準備、資金調達等を含みます)の際には、内容や契約条件等について、各情報提供元より十分な説明を受け、ご自身でご確認の上、判断してください。
    このコーナーへの物件情報のご掲載、その他不動産業務ソリューション等についての不動産会社様のお問合せはこちらからお願いいたします。

    物件画像: