北海道札幌市中央区南二条西23丁目(円山公園駅)の中古マンション・新築マンション・分譲マンション:物件詳細
交通 所在地 |
駅徒歩 |
価格 |
構造 階建/階 |
間取り 専有面積 |
物件種目 築年月 |
|
札幌市東西線/円山公園
北海道札幌市中央区南二条西23丁目
|
5分
|
1,150万円
|
RC
10階建 / 3階
|
1LDK
44.27m²
|
中古マンション
オーナーチェンジ
1987年6月(築38年7ヶ月)
|
|
角部屋、2面採光、管理人日勤
|
|
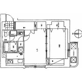
間取図
間取り
|
外観
外観
|
<
その他の画像
>
|
| 交通 | 札幌市東西線 円山公園駅 徒歩5分 |
|---|
| その他の交通 | 札幌市東西線 西18丁目駅 徒歩9分 札幌市東西線 西28丁目駅 徒歩14分 |
| 所在地 |
北海道札幌市中央区南二条西23丁目
|
| 物件種目 |
中古マンション |
| 価格 |
1,150万円 |
平米単価 |
25.98万円 |
| 管理費等 |
10,180円 |
修繕積立金 |
6,860円 |
| 借地期間・地代(月額) |
- |
権利金 |
- |
| 敷金または保証金 |
- / - |
維持費等 |
- |
| その他一時金 |
なし |
|
|
| 間取り |
1LDK(LDK10、和7) |
専有面積 |
44.27m²(壁芯) |
| 階建 / 階 |
10階建 / 3階 |
バルコニー |
3.15m² |
| 築年月 |
1987年6月(築38年7ヶ月)
|
建物構造 |
RC |
| 駐車場 |
- |
総戸数 |
49戸 |
| 駐輪場 |
有 |
バイク置き場 |
- |
| ペット |
-
|
|
|
| 土地権利 |
所有権 |
敷地面積 |
- |
| 管理形態/管理員の勤務形態 |
全部委託/日勤 |
国土法届出 |
- |
| 建物名・部屋番号 |
チサンマンション円山裏参道 |
| リフォーム履歴 |
- |
| リノベーション履歴 |
- |
| 瑕疵保証 |
- |
| 瑕疵保険 |
- |
| 評価・証明書 |
- |
| 備考 |
主要採光面:南西向き
施工会社:西松建設(株)
用途地域:近隣商業
利回り:6.05%
年間予定賃料収入:69.57万円
室内には家具家電を設置、角部屋です。交通買物の便が良いです。現在、賃貸中です。2026年4月迄 賃料管理費込みで58,000円管理費等を差し引いた手取りは月額40,960円 利回り4.27%
◆管理費・積立金 所有者負担 ◆外壁タイル貼 ◆オートロック ◆浴・トイレ別 ◆家具家電付き ベッド、冷蔵庫、洗濯機、TV、テーブル、椅子、他 ◆南向きバルコニー ◆南西角部屋 ◆人気の円山裏参道に面しています ◆リフォーム済 ◆灯油FF暖房
|
| エネルギー消費性能 |
- |
| 断熱性能 |
- |
| 目安光熱費 |
- |
| バス・トイレ |
温水洗浄便座 |
| キッチン |
システムキッチン、3口以上コンロ |
| 設備・サービス |
収納スペース、室内洗濯機置場、クローゼット、オートロック、防犯カメラ、冷蔵庫、洗濯機置場、給湯、都市ガス、FF暖房、暖房、駐輪場、照明器具、火災警報器(報知機)、インターネット対応、ケーブルTV、BS端子、複層ガラス |
| その他 |
エレベーター |
| 条件等 |
オーナーチェンジ |
現況 |
賃貸中 |
| 引渡可能時期 |
相談 |
物件番号 |
1151204414 |
| 情報公開日 |
2025年12月8日 |
次回更新予定日 |
2025年12月22日 |
| ケータイ用バーコード |
- スマートフォンでこの物件を見る
- スマートフォンからもこの物件をご覧になれます。
|
※「-」と表示されている項目については、情報提供会社にご確認ください。
| 周辺施設 |
札幌医科大学付属病院 |
| 距離 |
640m |
写真を見る |
| 周辺施設 |
NTT東日本札幌病院 診療案内 |
| 距離 |
1000m |
写真を見る |
| 周辺施設 |
マックスバリュ マルヤマクラス店 |
| 距離 |
380m |
写真を見る |
| 周辺施設 |
Sapporo Food Center(フードセンター) 円山店 |
| 距離 |
160m |
写真を見る |
| 周辺施設 |
北海道立近代美術館 |
| 距離 |
950m |
写真を見る |
| 周辺施設 |
北海道立札幌医科大学 |
| 距離 |
800m |
写真を見る |
ここから簡単にお問い合わせをすることができます。
(SSLでの暗号化での送信を希望されるお客さまは
こちら
よりお問い合わせください)
お問い合わせを行う前に
「個人情報の取り扱いについて」を必ずお読みください。
「個人情報の取り扱いについて」に同意いただいた場合は「上記にご同意の上 確認画面へ進む」のボタンをクリックしてください。
個人情報の取り扱いについて
皆さまが送付された個人情報はアットホーム(株)のサーバを経由し、お問い合わせ先の不動産会社にメールまたはFAXにて転送されるためアットホーム(株)にも保管されます。アットホーム(株)で保管された個人情報の取り扱いについては、【こちら】をご覧ください。
また、本画面でご記入いただいた個人情報は、お問い合わせ先の不動産会社でも保管します。 お問い合わせ先の不動産会社が保管する個人情報の取り扱いについては、不動産会社に直接お問い合わせください。
北海道知事免許 石狩(10)第3992号 |
|---|
- 交通:
- 札幌市南北線/中島公園駅 徒歩1分
- 北海道札幌市中央区南九条西4丁目1-12
- TEL:
- 011-513-0007
- FAX:
- 011-513-7779
- 所属団体:
- (公社)北海道宅地建物取引業協会会員(一社)北海道不動産公正取引協議会加盟
取引態様:専属専任媒介  - 10000033
|
- スマートフォンで
この不動産会社を見る

|
- 提携サイト等より掲載されている物件情報につきましては、不動産会社詳細情報にリンクされていないものがあります。
- 物件に関するお問合せは、物件詳細ページの「情報提供会社」に表示されている不動産会社へ直接お願いいたします。
- 間取図は、現況を優先させていただきます。
- 映像は物件の一部を撮影したものです。物件の契約にあたっての最終判断はご自身の判断に基づいて行ってください。
- 仲介手数料について

アットホームは物件情報の適正化に努めております。
内容に誤りがある場合にはこちらへご連絡ください。