愛知県豊橋市前田南町2丁目(柳生橋駅)の中古マンション・新築マンション・分譲マンション:物件詳細
交通 所在地 |
駅徒歩 |
価格 |
構造 階建/階 |
間取り 専有面積 |
物件種目 築年月 |
|
豊橋鉄道渥美線/柳生橋
愛知県豊橋市前田南町2丁目
|
11分
|
1,850万円
|
RC
7階建 / 1階
|
3SLDK
85.77m²
|
中古マンション
2001年10月(築24年5ヶ月)
|
|
ペット相談、角部屋、南向き、バス1坪以上、閑静な住宅街、管理人日勤
|
|
≪オープンルーム/モデルルーム≫【開催期間】2025年12月29日~2028年6月30日 【時間】10:00~19:00 モデルハウス(事前に必ずお問い合わせください) 日程/公開中
|
|
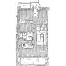
間取図
?3LDK+S/専有面積85.77㎡
|
外観
商業施設の充実! 交通量も少なく低層住宅街なので日当たり、風通しも良好です!
|
その他の画像
|
| 交通 | 豊橋鉄道渥美線 柳生橋駅 徒歩11分 |
|---|
| その他の交通 | 豊橋鉄道渥美線 小池駅 徒歩15分 豊橋鉄道東田本線 新川駅 徒歩21分 |
| 所在地 |
愛知県豊橋市前田南町2丁目
|
| 物件種目 |
中古マンション |
| 価格 |
1,850万円 |
平米単価 |
21.57万円 |
| 管理費等 |
14,400円 |
修繕積立金 |
18,000円 |
| 借地期間・地代(月額) |
- |
権利金 |
- |
| 敷金または保証金 |
- / - |
維持費等 |
- |
| その他一時金 |
なし |
|
|
| 間取り |
3SLDK(LDK14、和6、洋6.5、5.7、S5.2) |
専有面積 |
85.77m²(内法) |
| 階建 / 階 |
7階建 / 1階 |
バルコニー |
7.50m² |
| 築年月 |
2001年10月(築24年5ヶ月)
|
建物構造 |
RC |
| 駐車場 |
有 無料 |
総戸数 |
- |
| 駐輪場 |
有 |
バイク置き場 |
有 |
| ペット |
相談 |
|
|
| 土地権利 |
所有権 |
敷地面積 |
- |
| 管理形態/管理員の勤務形態 |
全部委託/日勤 |
国土法届出 |
- |
| 建物名・部屋番号 |
ダイヤパレス向山緑地 |
| リフォーム履歴 |
- |
| リノベーション履歴 |
- |
| 瑕疵保証 |
- |
| 瑕疵保険 |
- |
| 評価・証明書 |
- |
| 備考 |
主要採光面:南向き
用途地域:2種住居
|
| エネルギー消費性能 |
- |
| 断熱性能 |
- |
| 目安光熱費 |
- |
| バス・トイレ |
- |
| キッチン |
カウンターキッチン、システムキッチン、浄水器、2口コンロ |
| 設備・サービス |
ウォークインクローゼット、バイク置き場、収納スペース、室内洗濯機置場、クローゼット、モニター付インターホン、洗濯機置場、都市ガス、ワイドバルコニー、駐輪場 |
| その他 |
エレベーター |
| 条件等 |
- |
現況 |
所有者居住中 |
| 引渡可能時期 |
相談 |
物件番号 |
1152109314 |
| 情報公開日 |
2026年1月29日 |
次回更新予定日 |
2026年2月12日 |
| ケータイ用バーコード |
- スマートフォンでこの物件を見る
- スマートフォンからもこの物件をご覧になれます。
|
※「-」と表示されている項目については、情報提供会社にご確認ください。
| 周辺施設 |
松山小学校 |
| 距離 |
1507m |
写真を見る |
| 周辺施設 |
中部中学校 |
| 距離 |
1829m |
写真を見る |
ここから簡単にお問い合わせをすることができます。
(SSLでの暗号化での送信を希望されるお客さまは
こちら
よりお問い合わせください)
お問い合わせを行う前に
「個人情報の取り扱いについて」を必ずお読みください。
「個人情報の取り扱いについて」に同意いただいた場合は「上記にご同意の上 確認画面へ進む」のボタンをクリックしてください。
個人情報の取り扱いについて
皆さまが送付された個人情報はアットホーム(株)のサーバを経由し、お問い合わせ先の不動産会社にメールまたはFAXにて転送されるためアットホーム(株)にも保管されます。アットホーム(株)で保管された個人情報の取り扱いについては、【こちら】をご覧ください。
また、本画面でご記入いただいた個人情報は、お問い合わせ先の不動産会社でも保管します。 お問い合わせ先の不動産会社が保管する個人情報の取り扱いについては、不動産会社に直接お問い合わせください。
愛知県知事免許(1)第25821号 |
|---|
- 交通:
- 東海道本線/豊橋駅 徒歩25分
- 愛知県豊橋市前田南町2丁目25-3 KSビル1階2号
- TEL:
- 0532-55-1555
- FAX:
- 0532-55-1556
- 所属団体:
- (公社)愛知県宅地建物取引業協会会員東海不動産公正取引協議会加盟
取引態様:一般媒介  - 40411747
|
- スマートフォンで
この不動産会社を見る

|
- 提携サイト等より掲載されている物件情報につきましては、不動産会社詳細情報にリンクされていないものがあります。
- 物件に関するお問合せは、物件詳細ページの「情報提供会社」に表示されている不動産会社へ直接お願いいたします。
- 間取図は、現況を優先させていただきます。
- 映像は物件の一部を撮影したものです。物件の契約にあたっての最終判断はご自身の判断に基づいて行ってください。
- 仲介手数料について

アットホームは物件情報の適正化に努めております。
内容に誤りがある場合にはこちらへご連絡ください。