福岡県大牟田市山上町(新栄町駅)の中古マンション・新築マンション・分譲マンション:物件詳細
交通 所在地 |
駅徒歩 |
価格 |
構造 階建/階 |
間取り 専有面積 |
物件種目 築年月 |
|
西鉄天神大牟田線/新栄町
福岡県大牟田市山上町
|
10分
|
1,400万円
|
SRC
15階建 / 13階
|
3LDK
71.50m²
|
中古マンション
2001年3月(築24年8ヶ月)
|
|
管理人日勤
|
|
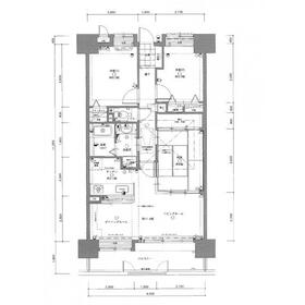
間取図
|
外観
|
<
その他の画像
>
|
| 交通 | 西鉄天神大牟田線 新栄町駅 徒歩10分 |
|---|
| その他の交通 | JR鹿児島本線 大牟田駅 徒歩12分 西鉄天神大牟田線 大牟田駅 徒歩12分 |
| 所在地 |
福岡県大牟田市山上町
|
| 物件種目 |
中古マンション |
| 価格 |
1,400万円 |
平米単価 |
19.59万円 |
| 管理費等 |
6,000円 |
修繕積立金 |
9,400円 |
| 借地期間・地代(月額) |
- |
権利金 |
- |
| 敷金または保証金 |
- / - |
維持費等 |
- |
| その他一時金 |
- |
|
|
| 間取り |
3LDK |
専有面積 |
71.50m²(壁芯) |
| 階建 / 階 |
15階建 / 13階 |
バルコニー |
11.70m² |
| 築年月 |
2001年3月(築24年8ヶ月)
|
建物構造 |
SRC |
| 駐車場 |
有 5,390円/月 |
総戸数 |
105戸 |
| 駐輪場 |
- |
バイク置き場 |
- |
| ペット |
-
|
|
|
| 土地権利 |
所有権 |
敷地面積 |
- |
| 管理形態/管理員の勤務形態 |
全部委託/日勤 |
国土法届出 |
- |
| アピールポイント |
【不動産売買専門 Y.コーポレーション】中央小学校、宅峰中学校!平成13年築の人気マンションです!眺望良好です!13階のお部屋からの景色は、まさに毎日が特等席。開放感たっぷりの暮らしをお楽しみいただけます!3LDKで間取りも面積もファミリーのお客様にぴったり!リビングは陽当りも良く開放的です。立地環境は、大牟田駅まで徒歩10分!電車通勤、通学にもおすすめです。更にゆめタウン大牟田まで徒歩12分、コンビニも徒歩圏内等暮らしに便利な施設が徒歩圏内の好立地!現在、居住中のため内覧をご希望の際は事前にお問合せください。お問合せをお待ちしております!ナビ検索:大牟田市山上町4-1 |
| 建物名・部屋番号 |
コアマンション山上倶楽部1303号 |
| リフォーム履歴 |
- |
| リノベーション履歴 |
- |
| 瑕疵保証 |
- |
| 瑕疵保険 |
- |
| 評価・証明書 |
- |
| 備考 |
主要採光面:南東向き
用途地域:商業地域
【不動産売買専門 Y.コーポレーション】中央小学校、宅峰中学校!平成13年築の人気マンションです!眺望良好です!13階のお部屋からの景色は、まさに毎日が特等席。開放感たっぷりの暮らしをお楽しみいただけます!3LDKで間取りも面積もファミリーのお客様にぴったり!リビングは陽当りも良く開放的です。立地環境は、大牟田駅まで徒歩10分!電車通勤、通学にもおすすめです。更にゆめタウン大牟田まで徒歩12分、コンビニも徒歩圏内等暮らしに便利な施設が徒歩圏内の好立地!現在、居住中のため内覧をご希望の際は事前にお問合せください。お問合せをお待ちしております!ナビ検索:大牟田市山上町4-1
|
| エネルギー消費性能 |
- |
| 断熱性能 |
- |
| 目安光熱費 |
- |
| バス・トイレ |
- |
| キッチン |
- |
| 設備・サービス |
クローゼット、オートロック |
| その他 |
- |
| 条件等 |
- |
現況 |
空家 |
| 引渡可能時期 |
即時 |
物件番号 |
1164782507 |
| 情報公開日 |
2025年8月11日 |
次回更新予定日 |
2025年11月3日 |
| ケータイ用バーコード |
- スマートフォンでこの物件を見る
- スマートフォンからもこの物件をご覧になれます。
|
※「-」と表示されている項目については、情報提供会社にご確認ください。
| 周辺施設 |
セブンイレブン大牟田築町店 |
| 距離 |
373m |
| 周辺施設 |
ドラッグストアモリ 大牟田東新町店 |
| 距離 |
1201m |
| 周辺施設 |
大牟田市立大牟田中央小学校 |
| 距離 |
877m |
ここから簡単にお問い合わせをすることができます。
(SSLでの暗号化での送信を希望されるお客さまは
こちら
よりお問い合わせください)
お問い合わせを行う前に
「個人情報の取り扱いについて」を必ずお読みください。
「個人情報の取り扱いについて」に同意いただいた場合は「上記にご同意の上 確認画面へ進む」のボタンをクリックしてください。
個人情報の取り扱いについて
皆さまが送付された個人情報はアットホーム(株)のサーバを経由し、お問い合わせ先の不動産会社にメールまたはFAXにて転送されるためアットホーム(株)にも保管されます。アットホーム(株)で保管された個人情報の取り扱いについては、【こちら】をご覧ください。
また、本画面でご記入いただいた個人情報は、お問い合わせ先の不動産会社でも保管します。 お問い合わせ先の不動産会社が保管する個人情報の取り扱いについては、不動産会社に直接お問い合わせください。
国土交通大臣免許(1)第9905号 |
|---|
- 交通:
- JR鹿児島本線/大牟田駅 徒歩25分
- 福岡県大牟田市通町1丁目10-4
- TEL:
- 0120-12-1313
- FAX:
- 0944-57-6800
- 所属団体:
- (公社)福岡県宅地建物取引業協会会員(一社)九州不動産公正取引協議会加盟
取引態様:専任媒介  - 80502236
|
- スマートフォンで
この不動産会社を見る

|
- 提携サイト等より掲載されている物件情報につきましては、不動産会社詳細情報にリンクされていないものがあります。
- 物件に関するお問合せは、物件詳細ページの「情報提供会社」に表示されている不動産会社へ直接お願いいたします。
- 間取図は、現況を優先させていただきます。
- 映像は物件の一部を撮影したものです。物件の契約にあたっての最終判断はご自身の判断に基づいて行ってください。
- 仲介手数料について

アットホームは物件情報の適正化に努めております。
内容に誤りがある場合にはこちらへご連絡ください。