長崎県西彼杵郡長与町嬉里郷(長与駅)の中古マンション・新築マンション・分譲マンション:物件詳細
交通 所在地 |
駅徒歩 |
価格 |
構造 階建/階 |
間取り 専有面積 |
物件種目 築年月 |
|
JR長崎本線/長与
長崎県西彼杵郡長与町嬉里郷
|
9分
|
3,550万円
|
RC
12階建 / 10階
|
2SLDK
72.52m²
|
中古マンション
2024年7月(築1年4ヶ月)
|
|
二重床・二重天井、24時間換気システム、管理人日勤
|
|
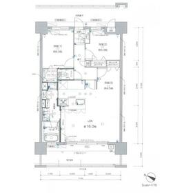
間取図
|
外観
|
<
その他の画像
>
|
| 交通 | JR長崎本線 長与駅 徒歩9分 |
| 所在地 |
長崎県西彼杵郡長与町嬉里郷
|
| 物件種目 |
中古マンション |
| 価格 |
3,550万円 |
平米単価 |
48.96万円 |
| 管理費等 |
6,500円 |
修繕積立金 |
6,500円 |
| 借地期間・地代(月額) |
- |
権利金 |
- |
| 敷金または保証金 |
- / - |
維持費等 |
- |
| その他一時金 |
- |
|
|
| 間取り |
2SLDK(LDK16 洋6.5 洋5) |
専有面積 |
72.52m²(壁芯) |
| 階建 / 階 |
12階建 / 10階 |
バルコニー |
14.20m² |
| 築年月 |
2024年7月(築1年4ヶ月)
|
建物構造 |
RC |
| 駐車場 |
有 6,000円/月 |
総戸数 |
110戸 |
| 駐輪場 |
- |
バイク置き場 |
- |
| ペット |
-
|
|
|
| 土地権利 |
所有権 |
敷地面積 |
- |
| 管理形態/管理員の勤務形態 |
全部委託/日勤 |
国土法届出 |
- |
| アピールポイント |
間取り:2SLDK
専有面積:72.52m2
構造:12階建ての10階部分(上階住戸なし)
築年数:築1年
●おすすめポイント●
築浅だから「とにかく綺麗」!
高層階10階部分につき 景観良好&開放感
上階に住戸がなく、静かな住環境
イオンタウンまで徒歩8分・長与駅徒歩9分の便利な立地
徒歩2分にスーパーあり、生活利便性◎
平坦地で移動もラクラク
ペットと暮らせるマンション
貴重な高層階ならではの眺望と静けさを楽しめる住環境。
ご見学は随時可能です。お気軽にお問い合わせください! |
| 建物名・部屋番号 |
ファーネスト長与レジデンス |
| リフォーム履歴 |
- |
| リノベーション履歴 |
- |
| 瑕疵保証 |
- |
| 瑕疵保険 |
- |
| 評価・証明書 |
- |
| 備考 |
主要採光面:南西向き
用途地域:近隣商業
|
| エネルギー消費性能 |
- |
| 断熱性能 |
- |
| 目安光熱費 |
- |
| バス・トイレ |
浴室暖房、浴室乾燥機、追焚機能、温水洗浄便座 |
| キッチン |
システムキッチン、食器洗浄乾燥機、2WAYキッチン、3口以上コンロ、グリル |
| 設備・サービス |
モニター付オートロック、全居室収納、ウォークインクローゼット、室内洗濯機置場、クローゼット、オートロック、モニター付インターホン、ダブルロックドア、省エネ給湯器、給湯、全居室フローリング、都市ガス、火災警報器(報知機) |
| その他 |
宅配BOX、エレベーター2基以上、エレベーター |
| 条件等 |
- |
現況 |
所有者居住中 |
| 引渡可能時期 |
相談 |
物件番号 |
1165142907 |
| 情報公開日 |
2025年9月15日 |
次回更新予定日 |
2025年10月30日 |
| ケータイ用バーコード |
- スマートフォンでこの物件を見る
- スマートフォンからもこの物件をご覧になれます。
|
※「-」と表示されている項目については、情報提供会社にご確認ください。
ここから簡単にお問い合わせをすることができます。
(SSLでの暗号化での送信を希望されるお客さまは
こちら
よりお問い合わせください)
お問い合わせを行う前に
「個人情報の取り扱いについて」を必ずお読みください。
「個人情報の取り扱いについて」に同意いただいた場合は「上記にご同意の上 確認画面へ進む」のボタンをクリックしてください。
個人情報の取り扱いについて
皆さまが送付された個人情報はアットホーム(株)のサーバを経由し、お問い合わせ先の不動産会社にメールまたはFAXにて転送されるためアットホーム(株)にも保管されます。アットホーム(株)で保管された個人情報の取り扱いについては、【こちら】をご覧ください。
また、本画面でご記入いただいた個人情報は、お問い合わせ先の不動産会社でも保管します。 お問い合わせ先の不動産会社が保管する個人情報の取り扱いについては、不動産会社に直接お問い合わせください。
長崎県知事免許(7)第2818号 |
|---|
- 交通:
- 【バス】 溝川バス停 停歩1分
- 長崎県西彼杵郡時津町西時津郷64-34
- TEL:
- 095-881-0295
- FAX:
- 095-881-0347
- 所属団体:
- (公社)長崎県宅地建物取引業協会会員(一社)九州不動産公正取引協議会加盟
取引態様:専任媒介  - 80800077
|
- スマートフォンで
この不動産会社を見る

|
- 提携サイト等より掲載されている物件情報につきましては、不動産会社詳細情報にリンクされていないものがあります。
- 物件に関するお問合せは、物件詳細ページの「情報提供会社」に表示されている不動産会社へ直接お願いいたします。
- 間取図は、現況を優先させていただきます。
- 映像は物件の一部を撮影したものです。物件の契約にあたっての最終判断はご自身の判断に基づいて行ってください。
- 仲介手数料について

アットホームは物件情報の適正化に努めております。
内容に誤りがある場合にはこちらへご連絡ください。