東京都調布市国領町3丁目(国領駅)の中古マンション・新築マンション・分譲マンション:物件詳細
交通 所在地 |
駅徒歩 |
価格 |
構造 階建/階 |
間取り 専有面積 |
物件種目 築年月 |
京王線/国領
東京都調布市国領町3丁目
|
4分
|
5,280万円
|
SRC
14階建 / 4階
|
2LDK
64.51m²
|
中古マンション
1996年7月(築29年4ヶ月)
|
ペット相談、常時ゴミ出し可能、24時間換気システム、閑静な住宅街、管理人日勤
|
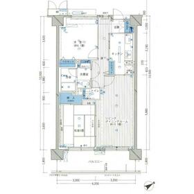
間取図
南東向き64平米の明るいお部屋です。
|
外観
ルネ調布国領モア・クレスト 京王線「国領」駅徒歩5分です。
|
その他の画像
|
交通 | 京王線 国領駅 徒歩4分 |
---|
その他の交通 | 京王線 布田駅 徒歩16分 京王線 調布駅 徒歩21分 |
所在地 |
東京都調布市国領町3丁目
|
物件種目 |
中古マンション |
価格 |
5,280万円 |
平米単価 |
81.85万円 |
管理費等 |
8,736円 |
修繕積立金 |
8,390円 |
借地期間・地代(月額) |
- |
権利金 |
- |
敷金または保証金 |
- / - |
維持費等 |
- |
その他一時金 |
- |
|
|
間取り |
2LDK(LD10.9 和6 洋6.7) |
専有面積 |
64.51m²(壁芯) |
階建 / 階 |
14階建 / 4階 |
バルコニー |
10.56m² |
築年月 |
1996年7月(築29年4ヶ月)
|
建物構造 |
SRC |
駐車場 |
有 14,000円/月 |
総戸数 |
209戸 |
駐輪場 |
- |
バイク置き場 |
有 1,000円/月 |
ペット |
相談 |
|
|
土地権利 |
所有権 |
敷地面積 |
- |
管理形態/管理員の勤務形態 |
全部委託/日勤 |
国土法届出 |
- |
建物名・部屋番号 |
ルネ調布国領モア・クレスト |
リフォーム履歴 |
- |
リノベーション履歴 |
- |
瑕疵保証 |
- |
瑕疵保険 |
- |
評価・証明書 |
- |
備考 |
主要採光面:南東向き
用途地域:1種中高
【ルネ調布国領モア・クレスト4階部分】
〇オススメポイント〇
・嬉しい南東向き住戸
・新宿駅まで乗り換え1回約28分
・ペット飼育可(細則あり)
・駐車場、バイク置き場空き有り。
・徒歩5分圏内に大型スーパー2件有り。
|
エネルギー消費性能 |
- |
断熱性能 |
- |
目安光熱費 |
- |
バス・トイレ |
浴室乾燥機、追焚機能 |
キッチン |
システムキッチン、3口以上コンロ、グリル |
設備・サービス |
モニター付オートロック、全居室収納、バイク置き場、室内洗濯機置場、クローゼット、オートロック、モニター付インターホン、ディンプルキー、防犯カメラ、都市ガス、マルチメディアコンセント |
その他 |
宅配BOX、エレベーター2基以上、エレベーター |
条件等 |
- |
現況 |
所有者居住中 |
引渡可能時期 |
相談 |
物件番号 |
1165419907 |
情報公開日 |
2025年10月9日 |
次回更新予定日 |
2025年10月23日 |
ケータイ用バーコード |
- スマートフォンでこの物件を見る
- スマートフォンからもこの物件をご覧になれます。
|
※「-」と表示されている項目については、情報提供会社にご確認ください。
周辺施設 |
ココスクエア |
距離 |
220m |
写真を見る |
周辺施設 |
調布市 市民プラザあくろす |
距離 |
345m |
写真を見る |
ここから簡単にお問い合わせをすることができます。
(SSLでの暗号化での送信を希望されるお客さまは
こちら
よりお問い合わせください)
お問い合わせを行う前に
「個人情報の取り扱いについて」を必ずお読みください。
「個人情報の取り扱いについて」に同意いただいた場合は「上記にご同意の上 確認画面へ進む」のボタンをクリックしてください。
個人情報の取り扱いについて
皆さまが送付された個人情報はアットホーム(株)のサーバを経由し、お問い合わせ先の不動産会社にメールまたはFAXにて転送されるためアットホーム(株)にも保管されます。アットホーム(株)で保管された個人情報の取り扱いについては、【こちら】をご覧ください。
また、本画面でご記入いただいた個人情報は、お問い合わせ先の不動産会社でも保管します。 お問い合わせ先の不動産会社が保管する個人情報の取り扱いについては、不動産会社に直接お問い合わせください。
国土交通大臣免許(2)第9692号 |
---|
- 交通:
- JR山手線/有楽町駅 徒歩3分
- 東京都中央区銀座2丁目2-17 龍保険ビル2F
- TEL:
- 03-6820-8658
- FAX:
- 03-3538-1516
- 所属団体:
- (公社)全日本不動産協会会員(公社)首都圏不動産公正取引協議会加盟
取引態様:媒介  - 00162928
|
- スマートフォンで
この不動産会社を見る

|
- 提携サイト等より掲載されている物件情報につきましては、不動産会社詳細情報にリンクされていないものがあります。
- 物件に関するお問合せは、物件詳細ページの「情報提供会社」に表示されている不動産会社へ直接お願いいたします。
- 間取図は、現況を優先させていただきます。
- 映像は物件の一部を撮影したものです。物件の契約にあたっての最終判断はご自身の判断に基づいて行ってください。
- 仲介手数料について

アットホームは物件情報の適正化に努めております。
内容に誤りがある場合にはこちらへご連絡ください。