埼玉県川口市上青木1丁目(西川口駅)の中古マンション・新築マンション・分譲マンション:物件詳細
交通 所在地 |
駅徒歩 |
価格 |
構造 階建/階 |
間取り 専有面積 |
物件種目 築年月 |
|
JR京浜東北線/西川口
埼玉県川口市上青木1丁目
|
17分
|
2,480万円
|
SRC
9階建 / 4階
|
3LDK
86.40m²
|
中古マンション
1975年9月(築50年4ヶ月)
|
|
24時間換気システム、バリアフリー、閑静な住宅街、区画整理地内、管理人日勤
|
|
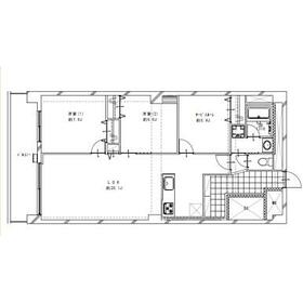
間取図
心地の良い空間に生まれ変わりました。
|
外観
堂々とした佇まいが、住む者に満足感と安心感を与えてくれます。
|
<
その他の画像
>
|
|
|
- VR/パノラマで内見する
-
その場で物件を内見しているように見ることができます。
左のQRコードをスマートフォンで読み取って、再生されるVR画像をVRゴーグルでごらんください。
|
| 交通 | JR京浜東北線 西川口駅 徒歩17分 |
|---|
| その他の交通 | 埼玉高速鉄道 南鳩ヶ谷駅 徒歩25分 JR京浜東北線 川口駅 【バス】 13分 青木公園入口 停歩4分 |
| 所在地 |
埼玉県川口市上青木1丁目
|
| 物件種目 |
中古マンション |
| 価格 |
2,480万円 |
平米単価 |
28.71万円 |
| 管理費等 |
12,300円 |
修繕積立金 |
12,800円 |
| 借地期間・地代(月額) |
- |
権利金 |
- |
| 敷金または保証金 |
- / - |
維持費等 |
- |
| その他一時金 |
- |
|
|
| 間取り |
3LDK |
専有面積 |
86.40m²(壁芯) |
| 階建 / 階 |
9階建 / 4階 |
バルコニー |
9.90m² |
| 築年月 |
1975年9月(築50年4ヶ月)
|
建物構造 |
SRC |
| 駐車場 |
- |
総戸数 |
95戸 |
| 駐輪場 |
- |
バイク置き場 |
- |
| ペット |
-
|
|
|
| 土地権利 |
所有権 |
敷地面積 |
- |
| 管理形態/管理員の勤務形態 |
全部委託/日勤 |
国土法届出 |
- |
| アピールポイント |
◇◇ まずは、お気軽にお問合せ下さい ◇◇
★ティーケーハウジングのお薦め住宅ローン・変動金利35年・0.59%~・頭金0円でも購入可能です。さらに諸費用もローン借入可能です。
★ティーケーハウジングは住宅ローンに強い!
1. 自営業の方
2. 転職されて間もない方
3. シングルマザーの方
4. ローン返済中の方
5. 自己資金の無い方
6. ご自宅を売却して次のお住まいの購入資金に充てたい方
など『新しい家は欲しいけど住宅ローンの審査に通るのかな?』
そんな不安で一歩前に踏み出せない方もお気軽にお電話下さい。
ティーケーハウジングなら、いままでお住まい購入を諦めていた
皆様の期待にお応え出来ます!
★即日のご案内も可能です。
★お仕事帰りのご主人様、平日奥様のみのご見学にも対応いたします。
★一番安い金利をご紹介します
★お住まいの購入総額と、毎月の返済額を初めにしっかりご提示します。
★リフォームしたい、自宅を売りたい、土地から家を建てたい・・・etc
★お住まいに関するコトなんでもお気軽にご相談ください!
◇◇ まずは、お気軽にお電話下さい ◇◇ |
| 建物名・部屋番号 |
ハイストンハイツ |
| リフォーム履歴 |
■水回り:2025年10月 キッチン、浴室、トイレ、洗面所、給排水管、給湯器 ■内装:2025年10月 内装全面(床・壁・天井・建具) ※実施年月は最も古い履歴を表示 |
| リノベーション履歴 |
- |
| 瑕疵保証 |
瑕疵保証(不動産会社独自)付 |
| 瑕疵保険 |
- |
| 評価・証明書 |
- |
| 備考 |
-
|
| エネルギー消費性能 |
- |
| 断熱性能 |
- |
| 目安光熱費 |
- |
| バス・トイレ |
浴室暖房、浴室乾燥機、オートバス、追焚機能、シャワー付洗面化粧台、温水洗浄便座 |
| キッチン |
カウンターキッチン、システムキッチン、食器洗浄乾燥機、浄水器、3口以上コンロ |
| 設備・サービス |
全居室収納、収納スペース、室内洗濯機置場、シューズインクローゼット、クローゼット、モニター付インターホン、防犯カメラ、洗濯機置場、給湯、全居室フローリング、ワイドバルコニー、人感センサー付照明、火災警報器(報知機)、インターネット対応 |
| その他 |
エレベーター2基以上、エレベーター |
| 条件等 |
- |
現況 |
空家 |
| 引渡可能時期 |
即時 |
物件番号 |
1165761807 |
| 情報公開日 |
2025年11月11日 |
次回更新予定日 |
2025年12月26日 |
| ケータイ用バーコード |
- スマートフォンでこの物件を見る
- スマートフォンからもこの物件をご覧になれます。
|
※「-」と表示されている項目については、情報提供会社にご確認ください。
| 周辺施設 |
まいばすけっと 川口中青木5丁目店 |
| 距離 |
85m |
| 周辺施設 |
ビッグ・エー 川口上青木西2丁目店 |
| 距離 |
646m |
| 周辺施設 |
コープみらい ミニコープ天神橋店 |
| 距離 |
792m |
| 周辺施設 |
セブン-イレブン 川口青木5丁目店 |
| 距離 |
110m |
| 周辺施設 |
ミニストップ 川口上青木店 |
| 距離 |
414m |
| 周辺施設 |
ファミリーマート 川口中青木五丁目店 |
| 距離 |
463m |
| 周辺施設 |
ドラッグセイムス 川口天神橋店 |
| 距離 |
778m |
ここから簡単にお問い合わせをすることができます。
(SSLでの暗号化での送信を希望されるお客さまは
こちら
よりお問い合わせください)
お問い合わせを行う前に
「個人情報の取り扱いについて」を必ずお読みください。
「個人情報の取り扱いについて」に同意いただいた場合は「上記にご同意の上 確認画面へ進む」のボタンをクリックしてください。
個人情報の取り扱いについて
皆さまが送付された個人情報はアットホーム(株)のサーバを経由し、お問い合わせ先の不動産会社にメールまたはFAXにて転送されるためアットホーム(株)にも保管されます。アットホーム(株)で保管された個人情報の取り扱いについては、【こちら】をご覧ください。
また、本画面でご記入いただいた個人情報は、お問い合わせ先の不動産会社でも保管します。 お問い合わせ先の不動産会社が保管する個人情報の取り扱いについては、不動産会社に直接お問い合わせください。
埼玉県知事免許(3)第22422号 |
|---|
- 交通:
- JR京浜東北線/蕨駅 徒歩23分
- 埼玉県川口市芝下2丁目3-8
- TEL:
- 048-458-3339
- 所属団体:
- (公社)全日本不動産協会会員(公社)首都圏不動産公正取引協議会加盟
取引態様:媒介  - 00263289
|
- スマートフォンで
この不動産会社を見る

|
- 提携サイト等より掲載されている物件情報につきましては、不動産会社詳細情報にリンクされていないものがあります。
- 物件に関するお問合せは、物件詳細ページの「情報提供会社」に表示されている不動産会社へ直接お願いいたします。
- 間取図は、現況を優先させていただきます。
- 映像は物件の一部を撮影したものです。物件の契約にあたっての最終判断はご自身の判断に基づいて行ってください。
- 仲介手数料について

アットホームは物件情報の適正化に努めております。
内容に誤りがある場合にはこちらへご連絡ください。